PTS-NATULT2-04.pdf - 第47页
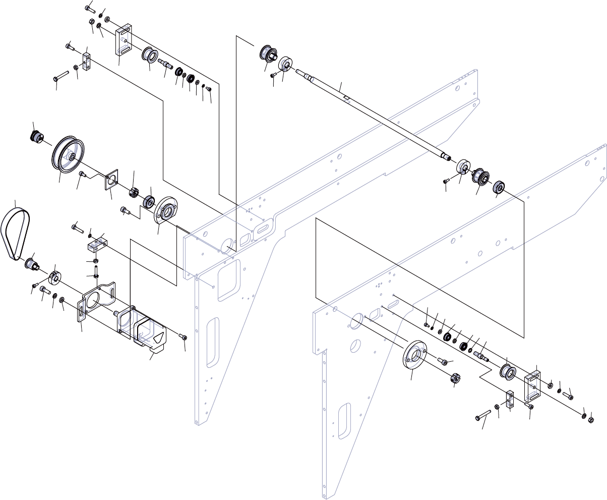
SHUTTLE /3 シャト ル /3 2AGTTH000309 No. Drg.No. & Code No. QTY Description Rating Remarks 番号 図番 & コード 番号 個数 品名 規格 備考 1 2MGTTH0 05901 1 SHAF T シャフト 2 PM7235 1 2 COLL AR カラー 3 H5275 A 2 B OLT, HEX SOCKET ボルト 六角穴 M03X…

6
7
8
9
10
11
12
12
13
14
15
16
17
18
19
20
21
22
30
1
2
3
4
2
3
4
5
23
24
25
26
27
29
31
32
33
34
35
42
44
28
37
38
39
40
41
43
45
13
36
46
48
49
53
54
55
56
57
58
59
60
60
61
62
63
47
50
51
52
64
65
SHUTTLE 3/
ࢩࣕࢺࣝ
2AGTTH000309
46
PTS- NATULT2- 04

SHUTTLE /3
シャトル /3
2AGTTH000309
No. Drg.No. & Code No. QTY Description Rating Remarks
番号 図番 & コード番号 個数 品名 規格 備考
1 2MGTTH005901 1 SHAFT
シャフト
2 PM72351 2 COLLAR
カラー
3 H5275A 2 BOLT, HEX SOCKET
ボルト 六角穴
M03X008
4 XP00573 2 PULLEY
プーリ
5 H4130E 1 BEARING
ベアリング
608ZZMC3E
6 2MGTTH006401 1 BLOCK, LEVELING
ブロック レベリング
7 H5289R 2 BOLT, HEX SOCKET
ボルト 六角穴
M04X014(3カ シロ)
8 W1106D 2 WASHER, LOCK
ワッシャ スプリング
4M/M(3カ シロ)
9 W1043C 2 WASHER, FLAT
ワッシャ 平
4W- 4(3カシロ)
10 PM58661 1 PULLEY
プーリ
11 PM28012 1 SHAFT
シャフト
12 H4449A 2 BEARING, MINIATURE
ベアリング ミニチュア
LF-1360ZZ
13 PM14263 1 COLLAR
カラー
14 N1079C 1 NUT, HEX
ナット 六角
M05 P=0.8 1シュ(3カシロ)
15 W1106E 1 WASHER, LOCK
ワッシャ スプリング
5M/M(3カ シロ)
16 H54251 1 BOLT, HEX SOCKET
ボルト 六角穴
M03X006(3カ シロ)
17 W1106C 1 WASHER, LOCK
ワッシャ スプリング
3M/M(3カ シロ)
18 W1108D 1 WASHER, FLAT
ワッシャ 平
4W-3(3カ シロ)
19 2MHFTG008500 1 BLOCK
ブロック
20 H5289R 2 BOLT, HEX SOCKET
ボルト 六角穴
M04X014(3カ シロ)
21 H70454 1 BOLT, HEX
ボルト 六角
M04X030ゼンネジ(3カ シロ)
22 N1079B 1 NUT, HEX
ナット 六角
M04 P=0.7 1シュ(3カシロ)
23 2MGTTH006201 1 HOLDER, BEARING
ホルダ ベアリング
24 H5427B 2 BOLT, HEX SOCKET
ボルト 六角穴
M05X012(3カシロ)
25 H4130E 1 BEARING
ベアリング
608ZZMC3E
26 N60743 1 NUT, LOCK
ナット ロック
MRZ8x0.75P
27 PB19642 1 RETAINER, BEARING
押え ベアリング
28 H5426K 2 BOLT, HEX SOCKET
ボルト 六角穴
M04X008(3カ シロ)
29 2MHFTG015801 1 PULLEY
プーリ
30 H30712 1 BUSHING
ブシュ
PL006X017KE
31 2MGTTH006101 1 BLOCK
ブロック
32 H5426T 2 BOLT, HEX SOCKET
ボルト 六角穴
M04X020(3カ シロ)
33 W1011A 2 WASHER, CONICAL
ワッシャ 皿
M-4-L
34 H70453 1 BOLT, HEX
ボルト 六角
M04X020 ゼンネジ(3カ シロ)
35 N1079B 1 NUT, HEX
ナット 六角
M04 P=0.7 1シュ(3カシロ)
36 2MGTSF005100 1 MOTOR, AC SERVO
モータ ACサーボ
37 H5426L 2 BOLT, HEX SOCKET
ボルト 六角穴
M04X010(3カ シロ)
38 2MGTTH006001 1 BKT, MOTOR
BKT モータ
39 H5427C 2 BOLT, HEX SOCKET
ボルト 六角穴
M05X015(3カ シロ)
40 W1106E 2 WASHER, LOCK
ワッシャ スプリング
5M/M(3カ シロ)
41 W1108E 2 WASHER, FLAT
ワッシャ 平
4W-5(3カ シロ)
42 PM08422 1 COLLAR
カラー
43 H5275A 1 BOLT, HEX SOCKET
ボルト 六角穴
M03X008
44 XP00711 1 PULLEY
プーリ
45 H4520C 1 BELT, TIMING
ベルト タイミング
254-2GT-12
46 2MGTTH006301 1 HOLDER, BEARING
ホルダ ベアリング
47 H5427B 2 BOLT, HEX SOCKET
ボルト 六角穴
M05X012(3カシロ)
48 N60743 1 NUT, LOCK
ナット ロック
MRZ8x0.75P
49 2MGTTH006401 1 BLOCK, LEVELING
ブロック レベリング
50 H5289R 2 BOLT, HEX SOCKET
ボルト 六角穴
M04X014(3カ シロ)
51 W1106D 2 WASHER, LOCK
ワッシャ スプリング
4M/M(3カ シロ)
47
PTS- NATULT2- 04

SHUTTLE /3
シャトル /3
2AGTTH000309
No. Drg.No. & Code No. QTY Description Rating Remarks
番号 図番 & コード番号 個数 品名 規格 備考
52 W1043C 2 WASHER, FLAT
ワッシャ 平
4W- 4(3カシロ)
53 2MHFTG008500 1 BLOCK
ブロック
54 H70454 1 BOLT, HEX
ボルト 六角
M04X030ゼンネジ(3カ シロ)
55 N1079B 1 NUT, HEX
ナット 六角
M04 P=0.7 1シュ(3カシロ)
56 H5289R 2 BOLT, HEX SOCKET
ボルト 六角穴
M04X014(3カ シロ)
57 PM58661 1 PULLEY
プーリ
58 PM28012 1 SHAFT
シャフト
59 PM14263 1 COLLAR
カラー
60 H4449A 2 BEARING, MINIATURE
ベアリング ミニチュア
LF-1360ZZ
61 H54251 1 BOLT, HEX SOCKET
ボルト 六角穴
M03X006(3カ シロ)
62 W1106C 1 WASHER, LOCK
ワッシャ スプリング
3M/M(3カ シロ)
63 W1108D 1 WASHER, FLAT
ワッシャ 平
4W-3(3カ シロ)
64 N1079C 1 NUT, HEX
ナット 六角
M05 P=0.8 1シュ(3カシロ)
65 W1106E 1 WASHER, LOCK
ワッシャ スプリング
5M/M(3カ シロ)
48
PTS- NATULT2- 04