JX-300LED_维修调整要领书.pdf - 第197页
Rev 1.0 维修调整要领书 14-9 14-8-3 . 同时装有 IN/OUT 缓冲时 A B 2 A (传送规格 / 左→右) 1 1 2 B (传送规格 / 右→左) 图 14-8-3 货号 品名 ① 40065488 BU PIN S ENSOR DOG ② SM4030501SN SCREW M3 L=5

Rev 1.0
维修调整要领书
14-8
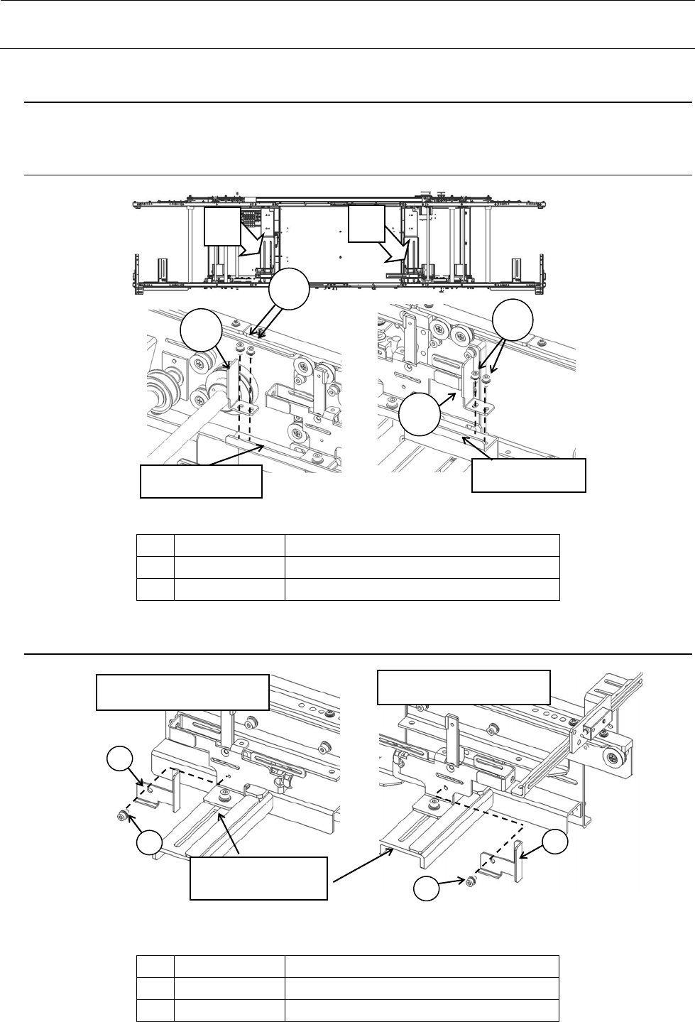
14-8.支撑销探测头的安装
按照下图将部品安装到制动器组。
14-8-1.限动器托架用的DOG
A
B
图14-8-1
货号 品名
① 40135493 STOPPER_C_AWC_SENS_DOG
② SL6030692TN SCREW M3 L=6
14-8-2.限动器座架用的DOG
图14-8-2
货号 品名
① 40135494 STOPPER_1200_AWC_SENS_DOG
② SL6030692TN SCREW M3 L=6
1
1
限动器托架L
2
2
限动器托架R
B(传送规格/右→左)
A(传送规格/左→右)
1
限动器座架
1
2
2

Rev 1.0
维修调整要领书
14-9
14-8-3.同时装有IN/OUT缓冲时
A
B
2
A(传送规格/左→右)
1
1
2
B(传送规格/右→左)
图14-8-3
货号 品名
① 40065488 BU PIN SENSOR DOG
② SM4030501SN SCREW M3 L=5

Rev 1.0
维修调整要领书
15-1
为了防止突然的起动造成事故,请关掉电源之后再进行操作。
危险
15 供料器部位标尺(FPI)
15-1.FPI(前)的拆卸
如下图所示,挂到Y轴机架(两侧)固定的FPI侧支架的钩上,用M6×12螺丝cap固定。
卸下 2 个螺丝,向上滑动即可拆卸。
FPI侧支架F
螺丝 cap
FPI装配件F
图15-1