NXTIII-IIIC规格书PDFA.PDFA.pdf - 第16页
- 16 - CNT -NXT -3/3c-04S 的元件高度 反面先行贴装 的元件高度 《使用支撑销时 》 《未使用支撑销时》 Max 25.4 mm M ax 50 .8 mm 3 3 2 5 . 4 5 5 3 3 5 0 . 8 2 5 . 4 ※ 夹取侧的盲区为从电路板边缘向内 3mm 的平面。 ※ 搬运面上需要有 50% 以上的接受面积。 另外电路板两端有缺口并且弯曲程度在搬送面以下时, 需要 另外商谈。 ※ 若需解决电路板…

-15- CNT-NXT-3/3c-04S
3.2 搬运轨道
3.2.1 电路板搬运
项 目
规格
电路板搬运方向
左→右, 右→左
搬运高度
900
(
+15,-5
)
mm(950
(
+15,-5
)
mm)
可在订购设备时选择搬运高度。
搬运方式
传送带搬运
运板时间
双搬运轨
连续运转时 0 sec
※
1
M3-3, M3-3c
单搬运轨
2.5sec(M3-3 在各模组间搬运)
※
2
M6-3, M6-3c
单搬运轨
3.4sec(M6-3 在各模组间搬运)
※
2
最大搬运能力
MAX 1.5kg
(MAX 6kg [ M3-3c 为 3lkg ] 为止以滚轮搬运。)
变更搬运轨的宽度
以身前的为基准侧,从属侧可根据马达变更搬运
轨宽度。
※1 使用电路板停止位置补正功能时不会为 0sec。
※2 上述为本公司条件下的搬运时间。
3
.2.2 使用电路板
电路板尺寸
搬运轨类型
单搬运轨
双搬运轨
生产形式
Single
(L)×(W)
Single
(L)×(W)
Double
(L)×(W)
最小
共用
48mm × 48mm
最大
M3(一对)
M6-3
610mm ×
610mm
610mm × 510mm
610mm ×
280mm
M3-3
305mm ×
610mm
305mm × 510mm
305mm ×
280mm
M3-3c
305mm ×
380mm
305mm × 290mm
305mm ×
170mm
M6-3c
610mm ×
380mm
610mm × 290mm
610mm ×
170mm
贴装可能范围
(L)M6:534mm M3:250mm
(W)M6、M3:上述的电路板尺寸减去盲区后的值
盲区
盲区 3mm
电路板厚度
0.4~6mm 选购件对应 0.3mm(薄电路板搬运规格)
电路板材质
环氧树脂玻璃、复合材料、纸苯酚、氧化铝、聚酰亚胺等
(陶瓷电路板需要另外商谈)
电路板的弯曲
MAX 2.0mm 以内
2
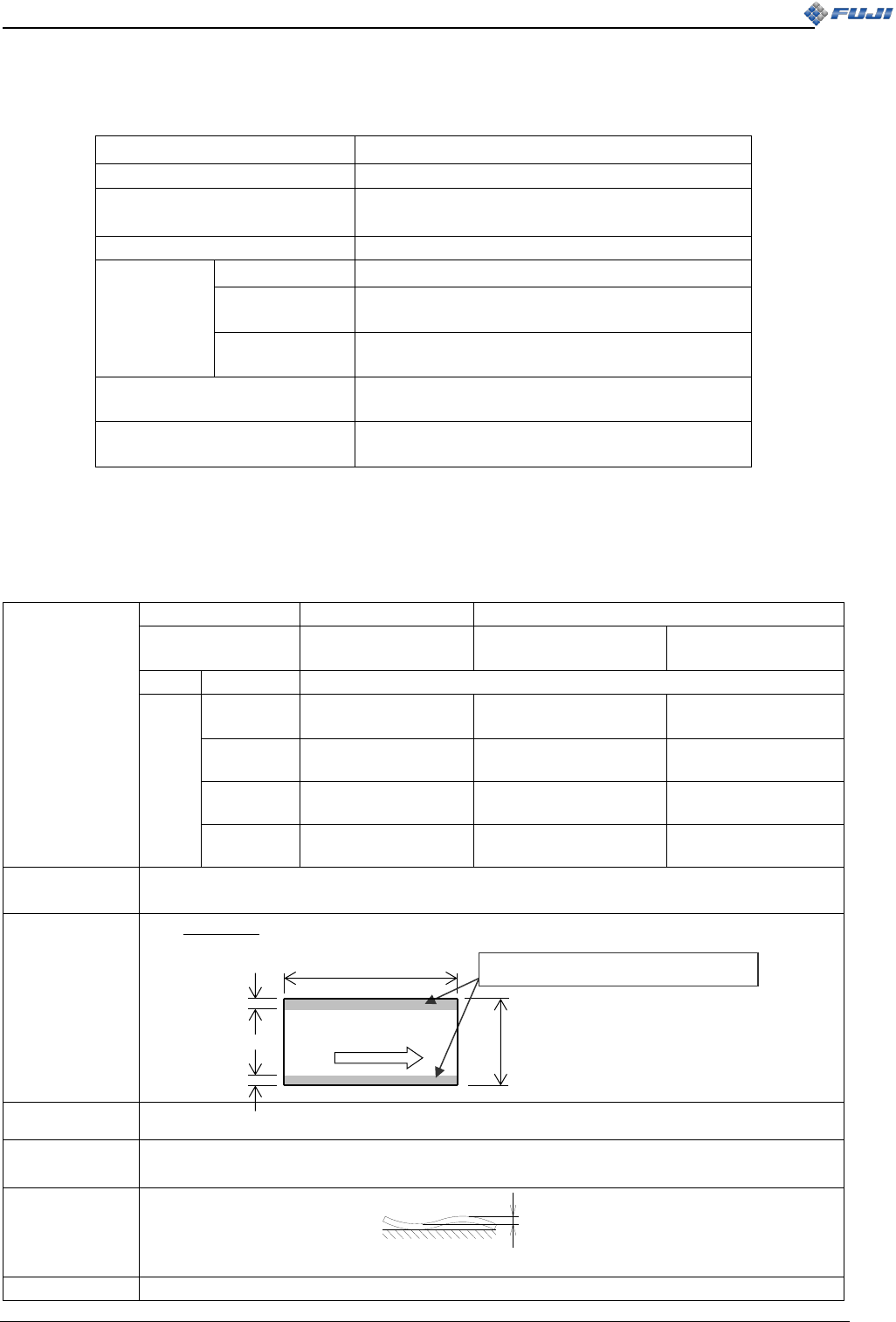
正面先行贴装
根据使用的贴装头的种类变化。 详细内容请参考『3.3 工作头规格』。
3mm
L
送入方向
W
电路板正面、反面的盲区
3mm
JJOC0djO
JJOC0djO
Downloaded at 2017/08/25 12:08:301 by 341B1639 DL#NsNk3jPS

-16- CNT-NXT-3/3c-04S
的元件高度
反面先行贴装
的元件高度
《使用支撑销时》 《未使用支撑销时》
Max 25.4mm Max 50.8mm
33
25 .4
55
3 3
50 .8
25 .4
※夹取侧的盲区为从电路板边缘向内 3mm 的平面。
※搬运面上需要有 50%以上的接受面积。另外电路板两端有缺口并且弯曲程度在搬送面以下时,需要
另外商谈。
※若需解决电路板的支撑问题,请事先与本公司商谈。
3.2.3 其他限制事项
・补正电路板停止位置(电路板边缘)
使用 M6-3/3c 用的低反射板(参照 5.1 单元选购件)时,根据电路板 L 的尺寸,先行贴装的元件高度
有限制。
M3-3/3c 用、M3/M6 共用类型没有限制。
・
使用高精度模式
下表中工作头使用高精度模式时会出现左端的盲区。
电路板 L 尺寸
494mm< L+2a ≤ 534mm
L+2a ≤ 494mm
反面先行贴装元件高度
电路板边缘向内 20mm 的范围内元件的
高度为 18mm 为止
其他区域为 25.4 ㎜
25.4 ㎜
a:电路板停止位置的补正值
M3
M6
H24(G)(S)
H24(G)(S)
G04
标准
250mm
534mm
504mm
高精度模式
247.5mm
531.5mm
501.5mm
JJOC0djO
JJOC0djO
Downloaded at 2017/08/25 12:08:301 by 341B1639 DL#NsNk3jPS

-17- CNT-NXT-3/3c-04S
3.3 工作头规格
3.3.1 工作头一览
高速系列工作头
项 目
H24G
H24
吸嘴数量
24
24
元件尺寸
0201
※
1
~
□
5.0
※
6
03015 ~
□
5.0
※
6
元件高度
2mm
2mm
先行贴装元件高度(表面)
2mm
2mm
元件包装外形
料带
料带
标准模式
生产优先模式
标准模式
生产优先模式
贴装精度
(芯片元件、
小型异形元件)
※
2
Cpk≧1.00
±0.025
※
4
(±0.015)
※
18
±0.038
※
4
±0.025
※
4
(±0.015)
※
18
±0.038
※
4
Cpk≧1.33
±0.034
※
4
±0.050
※
4
±0.034
※
4
±0.050
※
4
产能
※
3
CPH (chip/hour)
M3-3, M3-3c
35000
(22000)
※
19
37500
※
5
35000
(22000)
※
19
37500
※
5
M6-3, M6-3c
35000
(22000)
※
19
37500
※
5
35000
(22000)
※
19
37500
※
5
更换吸嘴
○
○
高速系列工作头
项 目
H24S
吸嘴数量
24
元件尺寸
0201
※
1
~
□
5.0
※
6
元件高度
2mm
先行贴装元件高度(表面)
2mm
元件包装外形
料带
标准模式
生产优先模式
贴装精度
(芯片元件、
小型异形元件)
※
2
Cpk≧1.00
±0.025
※
4
(±0.015)
※
18
±0.038
※
4
Cpk≧1.33
±0.034
※
4
±0.050
※
4
产能
※
3
CPH (chip/hour)
M3-3, M3-3c
35000
(22000)
※
19
42000
(37500)
※
21
M6-3, M6-3c
35000
(22000)
※
19
42000
(37500)
※
21
更换吸嘴
○
JJOC0djO
JJOC0djO
Downloaded at 2017/08/25 12:08:301 by 341B1639 DL#NsNk3jPS