KE-3010_KE-3020V_KE-3020VR-Rev06.pdf - 第28页
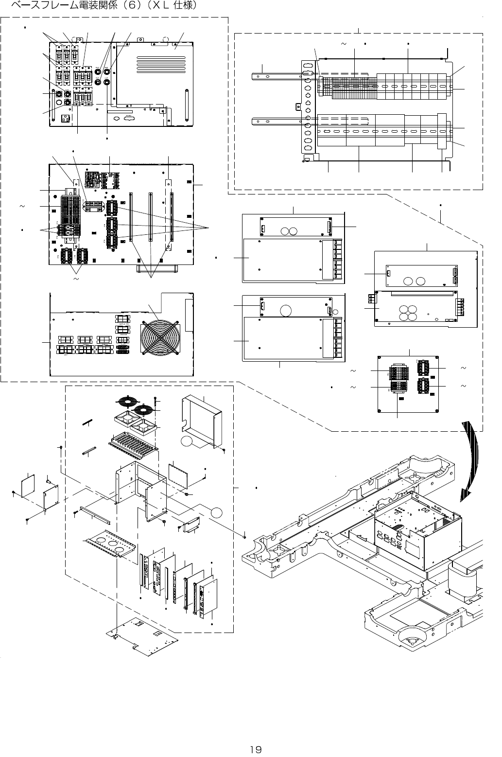
- - 10. BASEFRAME ELECTRICA PPARATUSCOMPONENT S(6)(TY PEXL) MC1 RL 1 CN1 4B CN1 4A CN 1 3 C N1 2 CN 0 1 MONI CP 1 4 CP 1 0 CP 1 2 CP 1 C P1 3 SC 1 RL 1 0 5 4 4 5 1 0 4 0 4 4 3 3 3 5 3 7 2 5 2 8 2 5 2 8 5 4 2 5 1 3…

- -
REF.NO NOTE PARTNO DESCRIPTION Qty
1 401-14751 ATXUNIT 1
2 401-14761 ATXPSUUNIT (1)
3 400-48006 ATXPSU (1)
4 401-14023 ATXBR (1)
5 400-48047 INCHSCREW (4)
6 SL-6040892-TN BOLT (2)
7 HX-0029400-00 FIXEDBASE (2)
8 SL-4030891-SC SCREWM3X8 (4)
9 401-10498 ATXBATTERYUNIT (1)
10 400-48007 BATTERYUNIT (1)
11 401-08561 ATXBATTERYBR (2)
12 400-48047 INCHSCREW (8)
13 E1038-871-000 PLATENLOCKCAMSCREW 2
14 E1038-871-000 PLATENLOCKCAMSCREW 2
15 SL-4030891-SC SCREWM3X8 4
16 SL-4030891-SC SCREWM3X8 4
17 401-14756 STPMOTORDRIVERUNIT 1
18 401-14120 CARRYDRVBR (1)
19 HM-0013200-00 MOTORDRIVER (3)
20 SL-4030691-SC SCREWM3L=6 (6)
21 SL-6030692-TN SCREWM3L=6 (3)
22 401-14806 BASECARRYPCBUNIT 1
23 401-14014 PCBPLATEIO (1)
24 400-71680 BASEIOPCBASM (1)
25 400-47557 ETHER-SLAVEPCBASM (1)
26 HX-0041800-0C SPACER (5)
27 HX-0029400-00 FIXEDBASE (3)
28 SL-4030691-SC SCREWM3L=6 (3)
29 SL-4030691-SC SCREWM3L=6 (19)
30 401-14807 XYRELAYPCBUNIT 1
31 SL-4030691-SC SCREWM3L=6 (3)
32 401-11659 PCBPLATESXY (1)
33 401-06795 S-XYRELAYPCBASM (1)
34 400-47557 ETHER-SLAVEPCBASM (1)
35 HX-0041800-0C SPACER (5)
36 SL-4030691-SC SCREWM3L=6 (19)
37 HX-0029400-00 FIXEDBASE (3)
38 401-14809 FEEDERPCBUNIT 1
39 400-63489 FEEDERPCBPANEL (1)
40 SL-4030891-SC SCREWM3X8 (2)
41 401-14024 FEEDERPCBBOX (1)
42 400-47560 FEEDERPCBASM (1)
43 400-47557 ETHER-SLAVEPCBASM (1)
44 SL-4030691-SC SCREWM3L=6 (16)
45 HX-0041800-0C SPACER (5)

- -
10.BASEFRAMEELECTRICAPPARATUSCOMPONENTS(6)(TYPEXL)
MC1
RL 1
CN1 4B
CN1 4A
CN 1 3
C N1 2
CN 0 1
MONI
CP 1 4
CP 1 0
CP 1 2
CP 1
C P1 3
SC 1
RL 1 0
5 4
4 5
1 0
4 0 4 4
3 3 3 5 3 7
2 5 2 8
2 5 2 8
5
4
2 5
1 3
2 5 2 8
3 1 3 2
3 3 3 9
1 1
1 2 2 9 3 0 3 1 2
1 7
1 5
5 0
1 6
5 2
1 9 2 0 1 8 2 4 2 3 2 2
2 1 2 2
9
6
4 6
7
4 9
4 6 4 7
5 3
4 8
8
6 2
5 8 6 0 6 4 5 6 5 76 1
6 1
6 3
6 3
6 1
6 65 56 76 5
5 1
7 8 7 9
1 0 1
1 0 3
1 0 4
1 0 0
8 4
8 3
8 2
8 1
8 0
9 1
7 7
7 3
7 2
A
7 0
1 0 3
1 0 2
9 9
7 4
9 5
6 8 6 9
7 1
7 5
9 6
8 8 8 9
7 6
A
7 4
8 5 8 6
9 2 9 4
8 7
1 2
1 4
9 0
9 2 9 3
9 8
9 7

- -
REF.NO NOTE PARTNO DESCRIPTION Qty
1 401-13745 POWERUNIT_XL 1
2
#01
401-13746 POWERUNITXL(EN) 1
3
#05
400-34328 MAGNETICCONTACTOR(THERMAL) (1)
4 400-94407 PSU_MAIN_BRACKET (1)
5 400-94408 PSU_SIDE_COVER (1)
6 401-22403 PSU_BRACKET_A_XL (1)
7 400-47070 PSU_BRACKET_B (1)
8 400-94411 PSU_BRACKET_C (1)
9 400-94415 PSU_F_COVER (1)
10 400-94412 RELAY_PLATE (1)
11 400-47075 DIN_RAIL (1)
12 400-00477 PSUSLIDEBAR (2)
13 HX-0002600-0A BASEPARTS (3)
14 HM-0003300-30 FANGUARD (1)
15 HA-0052400-0B CIRCUITPROTECTOR (1)
16 HA-0052400-0E CIRCUITPROTECTOR (1)
17 HA-0052500-00 CIRCUITPROTECTOR (1)
18 HA-0052700-0A CIRCUITPROTECTOR (1)
19 HA-0052700-0E CIRCUITPROTECTOR (2)
20
#01
HA-0052700-0E CIRCUITPROTECTOR (1)
21 HA-0054200-0A CIRCUITPROTECTOR (1)
22
#01
HA-0054200-0A CIRCUITPROTECTOR (2)
23 HA-0054200-0D CIRCUITPROTECTOR (2)
24 HA-0056000-00 CIRCUITPROTECTOR (1)
25 HB-0005800-10 RELAY (8)
26
#01
HB-0005800-10 RELAY (5)
27 HB-0012800-0C RELAY (8)
28
#01
HB-0012800-0C RELAY (5)
29
#05
HB-0011000-00 RELAY (1)
30
#05
HB-0011000-10 RELAYCOVER (1)
31 HB-0015400-00 RELAY (2)
32 HB-0015400-10 RELAY (2)
33 HK-0696500-10 BLOCKTERMINAL (12)
34 HK-0693500-10 BLOCKTERMINAL (6)
35 HK-0696900-00 BLOCKTERMINAL (1)
36 HK-0691900-0B BLOCKTERMINAL (5)
37 HK-0696900-0A BLOCKTERMINAL (1)
38 HK-0696900-0B BLOCKTERMINAL (1)
39 HK-0696900-30 BLOCKTERMINAL (4)
40 HK-0695500-10 BLOCKTERMINAL (14)
41
#01
HK-0695500-10 BLOCKTERMINAL
(17)
42 HK-0695900-00 BLOCKTERMINAL (2)
43 HK-0695900-20 BLOCKTERMINAL (5)
44 HK-0695900-0A BLOCKTERMINAL (2)
45 400-63473 DIN_RAIL (1)
46 HX-0048200-00 SWITCHPOWERSUPPLY(24V/500W) (2)
47
#01
HX-0068800-00 POWERSUPPLY (1)
48 HX-0057700-0A POWERSUPPLY (1)
49 KX-0000001-50 POWERSOURCE6V (1)
50
#01
HA-0052400-00 CIRCUITPROTECTOR (1)
51
#01
HX-0054200-0B POWERSOURCE24V (1)
52 HA-0052700-0C CIRCUITPROTECTOR (2)
53 HX-0054300-0A POWERSUPPLY24V (1)
54
#01
400-94921 SAFETYUNITASSY(EN) 1
55 HA-0063200-00 MAGNETICCONTACTOR (2)
56 HB-0013900-00 RELAY (8)
57 HB-0013900-10 RELAYSOCKET (8)
58 HK-0696500-10 BLOCKTERMINAL (22)
59 HK-0692500-10 BLOCKTERMINAL (4)
60 HK-0691900-00 BLOCKTERMINAL (1)
61 HK-0691900-0B BLOCKTERMINAL (3)
62 400-00488 SLIDERAIL (1)
63 400-00529 CARRIERRAIL350 (2)
64 HK-0696900-00 BLOCKTERMINAL (1)
65 400-94695 SAFETY_UNIT_BR (1)
66 HB-0015800-00 RELAY (1)
67 HA-0063000-00 MAGNETICCONTACTOR (3)
68
#03
400-94715 CTRLUNIT 1
69
#04
401-37760 CTRLUNITXL 1
70 400-94400 CTRL_UNIT_FRAME (1)
71 400-94398 CTRL_BASE_L (1)
72 400-94397 CTRL_BASE_U (1)
73 HX-0002600-00 GUIDERAIL (14)
74 SL-4040891-SC SCREWM4L=8 (8)
75 400-94396 BACK_BORD_BAR (1)
76 SL-4031491-SC SCREWM3X14 (3)
77 400-48002 CPCIBACKBOARD (1)
78
#03
SL-4851091-SC SCREW (26)
79
#04
SL-4851091-SC SCREW (24)
80 HX-0022300-00 ADJUSTABLEBUSH (0.2)
81 SL-4030691-SC SCREWM3L=6 (4)
82 400-92440 BASICFANASM (2)
83 HM-0003300-30 FANGUARD (2)
84 SL-4033091-SC SCREWM3L=30 (4)
85
#03
401-13723 CPUBOARD (1)
86
#04
401-35432 CPUBOARD (1)
87 400-44540 16AXIS2CHSERVOCONTROLLER (1)
88
#03
400-48003 IEEE1394BOARD (1)
89
#04
401-50021 IEEE1394BOARD (1)
90
#03
400-97209 CPUBOARD (1)
91 400-94399 CTRL_REAR_COVER (1)
92
#03
400-32319 BLANKPANELB (2)
93
#04
400-32319 BLANKPANELB (3)
94
#04
401-35433 8-PORTCOMBOARD (1)
95 400-94403 SILICON_DISK_BR (1)
96 SL-4030891-SC SCREWM3X8 (2)
97 401-49647 ETHER-MAINPCBASM (1)
98 400-71300 IPX7ASM (1)
99 E1038-871-000 PLATENLOCKCAMSCREW 2
100 SL-6030892-TN SCREWM3L=8 2
101
#02
400-92460 SCM3PCB 1
102
#02
400-94402 SCM3_BR 1
103
#02
SL-4030891-SC SCREWM3X8 6
104
#02
E1038-871-000 PLATENLOCKCAMSCREW 2