KE-3010_KE-3020V_KE-3020VR-Rev06.pdf - 第82页
- - 37. X-YCO MPONENTS(1) 7 6 8 4 C B 6 6 6 4 6 5 6 9 7 0 5 3 5 4 1 6 5 3 1 7 5 4 5 3 5 2 4 8 4 7 3 6 3 7 3 4 3 3 8 2 3 1 3 2 3 0 2 9 2 5 2 5 2 6 2 6 2 4 2 4 2 1 2 2 2 3 8 1 2 0 6 1 5 8 5 9 5 7 6 0 5 5 5 6 6 3 8 5 8 5…

- -
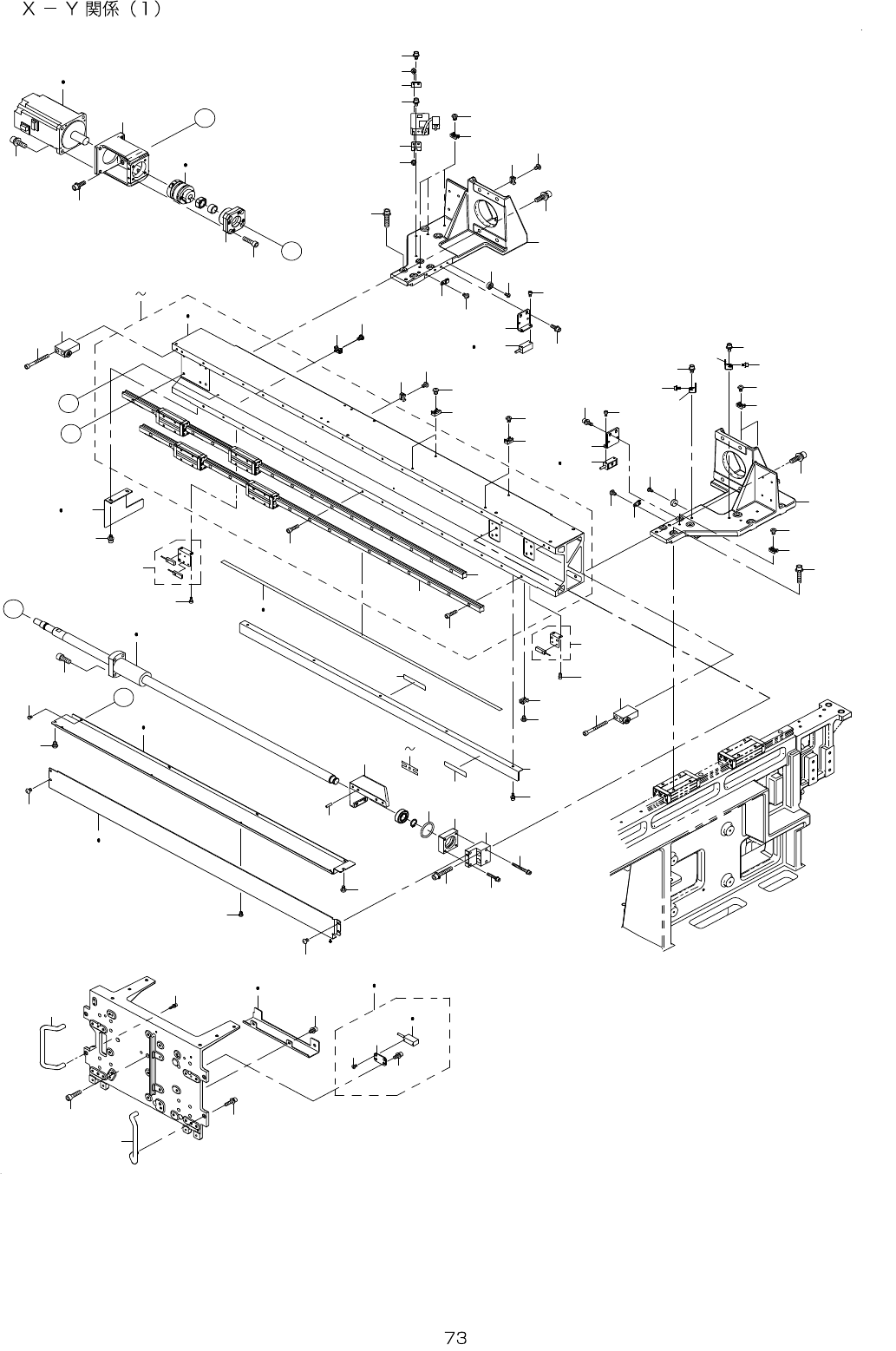
REF.NO NOTE PARTNO DESCRIPTION Qty
1 BT-0600400-EC TUBEHOSE,BLUE 12
2 BT-0800501-EA TUBEHOSE,BLUE 2.5
3 PJ-0252000-03 PLUG 1
4 WP-0841601-SC WASHER8.4X17.4X1.6 2
5 PJ-3050600-04 TEE 2
6 400-54839 SOFTNYLON8 20
7 400-94700 AIRCOMBINATIONASSY 1
8 400-63483 AIRCOMBINATION (1)
9 BT-1000651-EB POLYURETHANETUBE (1.7)
10 PJ-3081000-01 UNIONY (1)
11 SL-6061692-TN BOLT (4)
12 WP-0841601-SC WASHER8.4X17.4X1.6 (4)
13 BT-1200801-EF TUBE (0.45)
14 PJ-3080600-03 YUNION (1)
15 BT-1200801-EF TUBE (1)
16 401-14030 STEPDRVBASE 1
17 HX-0042000-00 5PHASESTEPDRIVER 1
18
#01
HX-0054500-00 5PHASESTEPDRIVER 1
19 SL-4040891-SC SCREWM4X8 3
20 400-00534 BACKUPDRIVPLATE 1
21 HX-0029400-00 FIXEDBASE 3
22 SL-4030691-SC SCREWM3L=6 3
23 E1038-871-000 PLATENLOCKCAMSCREW 1
24 PJ-3010600-03 REDUCER 6
25 PJ-3040600-01 REDUCERELBOW 4
26 PX-9500070-00 PLUG 2
27 PJ-3080600-03 YUNION 2
28 BT-0600400-EC TUBEHOSE,BLUE 8
29 PJ-3080600-03 YUNION (1)
30 PJ-3091200-03 MANIFOLD 1
31 SL-6042092-TN SCREWM4L=20 2
32 PJ-3030600-01 STRAIGHTUNION (4)
33 PJ-0200000-03 PLUGROUND12 1
34
#02
HX-0042000-00 5PHASESTEPDRIVER 1
35
#03
HX-0054500-00 5PHASESTEPDRIVER 1
36
#02
SL-4040891-SC SCREWM4X8 3
37
#02
400-00534 BACKUPDRIVPLATE 1
38
#02
HX-0029400-00 FIXEDBASE 1
39
#02
SL-4030691-SC SCREWM3L=6 1
40
#02
E1038-871-000 PLATENLOCKCAMSCREW 1
41 401-14029 STEPDRVCOVER 1
42 PF-0200040-00 REGULATOR 1
43 SL-6030692-TN SCREWM3L=6 6
44 SL-6040892-TN SCREWM4L=8 3
45 SM-4033001-SC SCREWM3X0.5L=30 2

- -
37.X-YCOMPONENTS(1)
7 6
8 4
C
B
6 6
6 4
6 5
6 9 7 0
5 3
5 4
1 6
5 3
1 7
5 4
5 3
5 2
4 8
4 7
3 6 3 7
3 4
3 3
8 2
3 1 3 2
3 0
2 9
2 5
2 5
2 6
2 6
2 4
2 4
2 1
2 2 2 3
8 1
2 0
6 1
5 8 5 9
5 7
6 0
5 5 5 6
6 3
8 5
8 5
8 4
7 2 7 5
7 1
1 0
1 8 1 9
8 0
6 7
6 8
6 8
6 7
B
C
6 6
6 4
6 5
6 4
6 5
6 4
6 5
6 4
6 5
6 2
2 4
5 3
5 4
1 5
5 4
5 3
5 3
5 2
4 8
4 7
5 0
4 9
4 9
5 0
A
7
A
4 9
4 9
4 5 4 6
4 0 4 1
3 5
4 4
4 3
3 9
3 8
8 3
2 7 2 8
2 5
2 5
2 6
2 6
2 4
8 1
2 0
2 2 2 3
2 1
1 3
1 4
5 1
1 2
5 1
1 1
9
7 9
7 7 7 8
1 4
5 6
7
8
8
6 4
6 5
4 2

- -
REF.NO NOTE PARTNO DESCRIPTION Qty
1
#04
401-13984 XAXISFRAMEASM 1
2
#05
401-13992 XAXISFRAME3010ASM 1
3
#07
401-35700 X_AXIS_FRAME_ASM 1
4
#06
401-35701 X_AXIS_FRAME_3010_ASM 1
5
#02
401-06046 XAXISFRAME (1)
6
#03
401-34565 X_AXIS_FRAME (1)
7 400-71325 XLMGUIDEL (2)
8 SM-6041602-TN SCREWM4X16 (34)
9 SM-6030602-TN SCREWM3X6 2
10 401-13712 XMINUSLMTSENSORASSY 1
11 SM-6030602-TN SCREWM3X6 2
12 400-54881 XMSCGUARD 1
13 401-06022 XFRAMEENDR 1
14 SL-6030892-TN SCREWM3L=8 5
15 SL-6062092-TN SCREWM6L=20 4
16 401-06020 XFRAMEENDL 1
17 SL-6062092-TN SCREWM6L=20 4
18
#02
401-10215 YSENSORDOG 1
19
#03
401-34597 Y_SENSOR_DOG 1
20 401-10216 YMSCBRV2 2
21 SL-6041092-TN SCREWM4L=10 4
22
#02
400-44532 MAGNETICSCALEYSENORUNIT 2
23
#03
401-29630 XYLINEARSCALEHEAD 2
24
#02
400-47390 MSUBRACKET 4
25
#02
SL-6030692-TN SCREWM3L=6 8
26
#02
SL-6040892-TN BOLT 4
27 400-71327 XBALLSCREWL 1
28
#01
400-98047 XBALLSCREWXL 1
29 401-13985 XMOTORFRAMEASM 1
30 SL-6051692-TN SCREWM5L=16 4
31
#02
400-68914 SERVOMOTOR750W 1
32
#03
401-29653 XAXISMOTOR 1
33 400-93855 FIXEDSUPPORTUNIT 1
34 SM-6052002-TN BOLT 4
35 401-08800 XBSNUTFRAME 1
36
#02
400-93862 COUPRINGX 1
37
#03
401-47719 COUPLING_X 1
38 400-93864 ORINGX 1
39 401-10217 XBSFRAME 1
40 401-10220 XOILGUARDUL 1
41
#01
401-08820 XOILGUARDU3010 1
42 SL-6053092-TN SCREW 2
43 SL-6042592-TN SCREW 2
44 SL-6044092-TN SCREW 2
45 401-10221 XOILGUARDFL 1
46
#01
401-08819 XOILGUARDF3010 1
47 400-49671 COVERCUSHION 2
48 SM-4030601-SC SCREWM3X0.5L=6 2
49 SM-3040652-TN SCREWM4L=6 6
50 SM-3030552-TN SCREWM3L=5 8
51 401-05882 KEEPMAGNETAWAYLABEL 2
52 HX-0034400-00 HARNESSPARTS 2
53 SM-4040601-SC SCREWM4X0.7L=6 9
54 HX-0029400-00 FIXEDBASE 7
55
#02
400-50240 X-MSCBRACKETASSY 1
56
#03
401-35702 X-MSCBRACKETASSY 1
57 400-46002 X-MSCBRACKET (1)
58
#02
400-44531 MAGNETICSCALEXSENSORUNIT (1)
59
#03
401-29630 XYLINEARSCALEHEAD (1)
60 SL-6040892-TN SCREWM4L=8 (2)
61 400-52050 SCREWM3X6MEC (2)
62 SM-6061602-TN SCREWM6L=16 4
63 SL-6040892-TN BOLT 2
64 SM-4040601-SC SCREWM4X0.7L=6 14
65 HX-0029400-00 FIXEDBASE 14
66 SL-6052592-TN SCREWM5L=25 16
67 401-13986 XSTOPPERASM 2
68 SM-6044002-TN SCREWM4X0.7L=40 4
69 401-11676 XLMTSENSORDOGV2 1
70
#01
401-08824 XLMTSENSORDOG3010 1
71 PH-0400162-C0 PARALLELPINTYPEB4X16 2
72 E3021-721-000 HAEDCENTERSHIMC 2
73 E3020-721-000 HAEDCENTERSHIMB 2
74 E3019-721-000 HAEDCENTERSHIMA 2
75 E3047-729-000 HEADCENTERSHIMD 2
76 SM-6052002-TN SCREW 2
77 400-44528 MAGNETICSCALEX 1
78
#01
401-13692 MAGNETICSCALE3010X 1
79 401-13711 XPLUSLMTSENSORASSY 1
80 SL-6040892-TN BOLT 2
81 SM-6030502-TN SCREWM3L=5 4
82 SL-6062042-TN BOLT 4
83 400-93863 XBALLSCREWSUPPORT 1
84 400-71571 HANDLE 2
85 SL-6041692-TN SCREWM4L=16 4