CP643规格书.pdf - 第26页
10.1.2 CP-643ME (with Rear Cover) 1755 906 191 362 296 48 920 112 3560 3552 506 670 2 1366 4 850 154 1551 240 2592 2527 1791 370 950 1293 61 1740 PCB coneyance height – 23 – CP-643E/643ME Specifications Edition 3.0

10. Machine Drawings
10.1 Dimensions
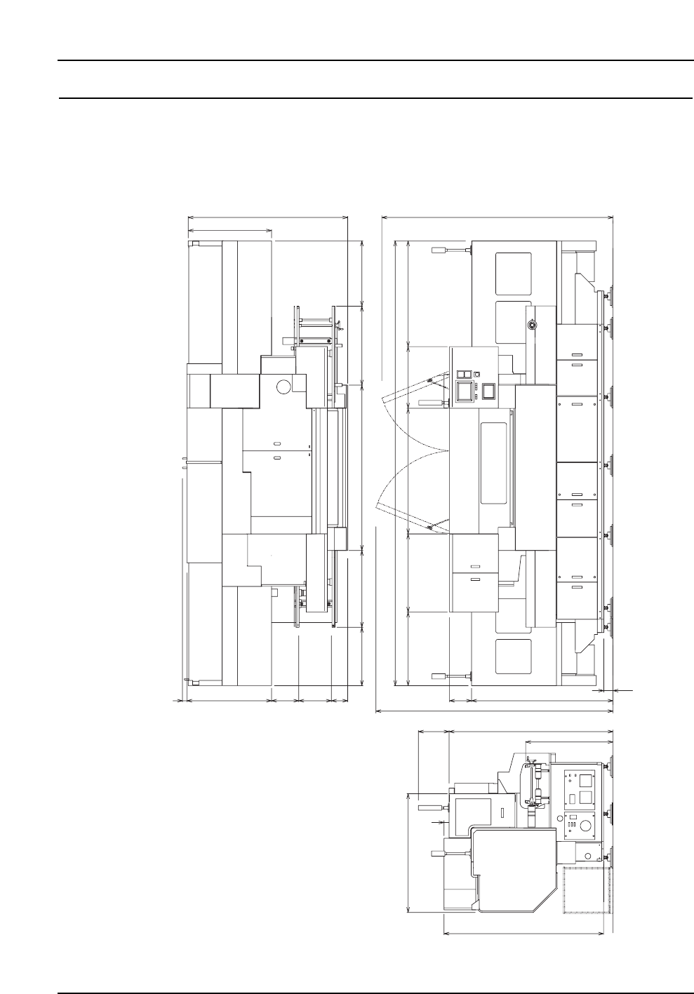
10.1.1 CP-643E (with Rear Cover)
61
2527
2592
1366
2
670
1152
860
1800
840
632
1755
906
240
48
920
296
362
191
1551
850
4
800
4844
712
112
1293
950
370 1791
1740
PCB coneyance height
– 22 –
CP-643E/643ME Specifications
Edition 3.0

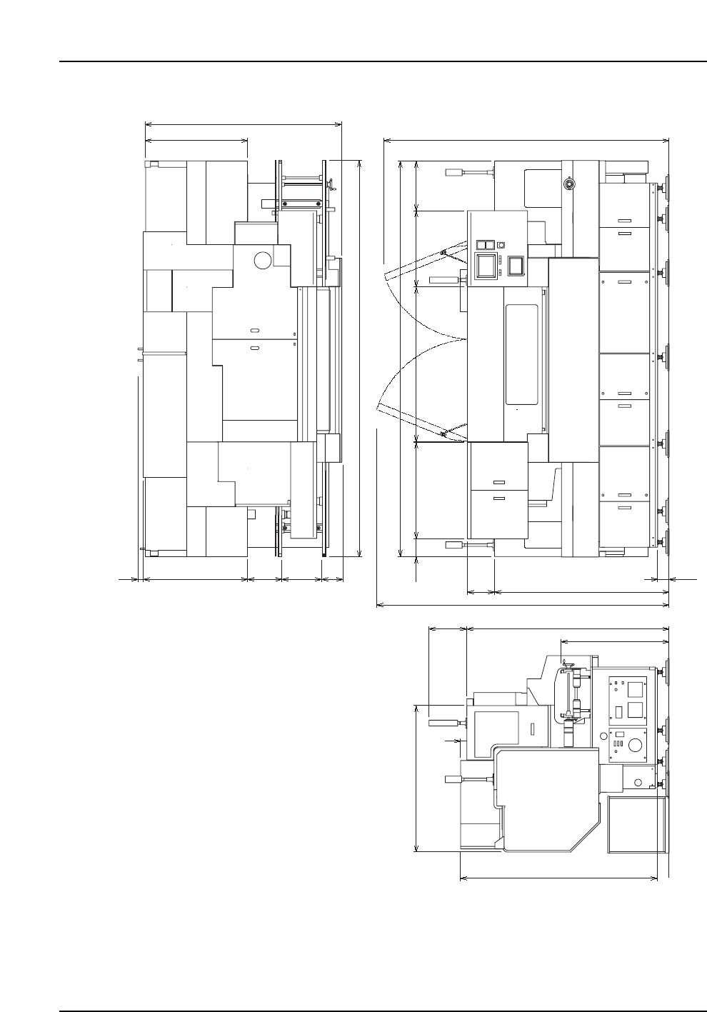
10.1.2 CP-643ME (with Rear Cover)
1755
906
191
362
29648
920
112
3560
3552
506670213664850154
1551240
2592
2527
1791370
950
1293
61
1740
PCB coneyance height
– 23 –
CP-643E/643ME Specifications
Edition 3.0

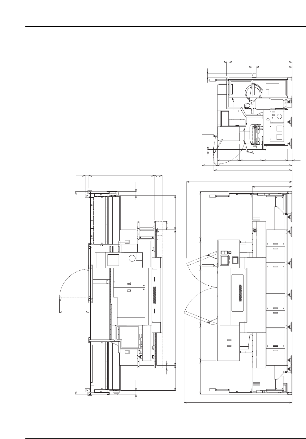
10.1.3 CP-643E (with Fence)
88.5
200
821.5
3240
60
601.5
88.5
4840
2
1366
2
670
1150
950
1558
703
37
357
106
100
56
589560
530
370
112
1791
1879
1516
866
850801
90 191
2527
2592
PCB coneyance height
– 24 –
CP-643E/643ME Specifications
Edition 3.0