CP643规格书.pdf - 第29页
10.2 Location of Leveling Bolts 10.2.1 CP-643E 45 350 755 475 515 45 750 770 1005 50 45 875 770 750 755 50 40 40 475 515 45 Lock nut Leveling bolt Leveling sheet (900) +15 -5 – 26 – CP-643E/643ME Specifications Edition 3…

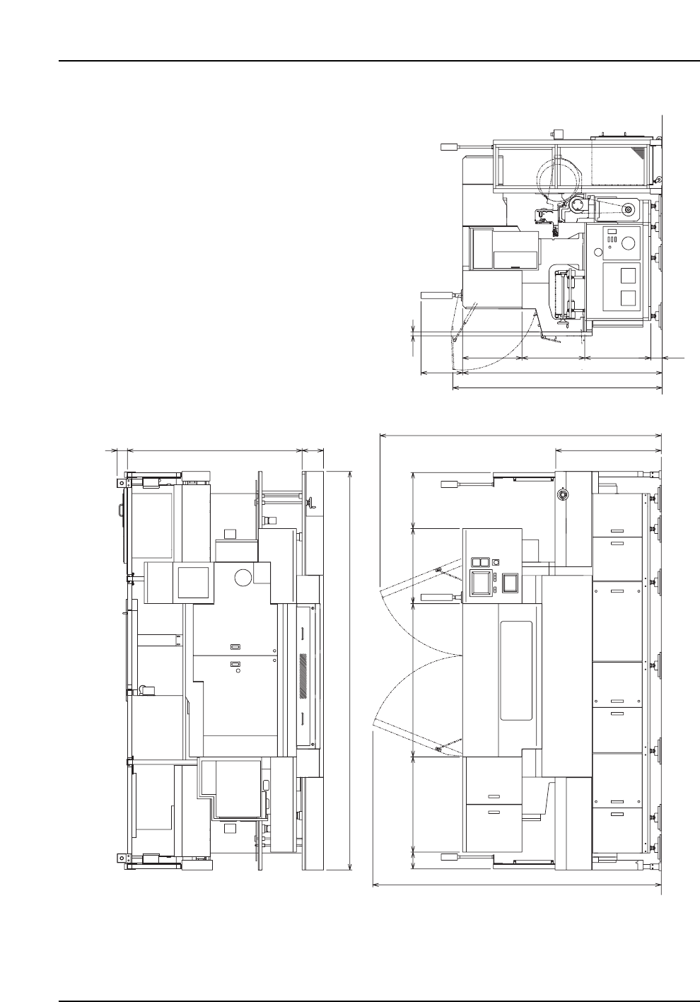
10.1.4 CP-643ME (with Fence)
6702 37
370
530 560 589
3560
1558.590
1366850 2 500150
191
112
1791
1879
2527
950
2592
PCB coneyance height
– 25 –
CP-643E/643ME Specifications
Edition 3.0

10.2 Location of Leveling Bolts
10.2.1 CP-643E
45
350755
475 515
45
750770100550
45 875 770 750 755
50
40
40 475 515 45
Lock nut
Leveling bolt
Leveling sheet
(900)
+15
-5
– 26 –
CP-643E/643ME Specifications
Edition 3.0

10.2.2 CP-643ME
4527519545 515
4527519545 515
750770636.5238.545 516.5 238.5 45
75575087545 45770
Lock nut
Leveling bolt
Leveling sheet
(900)
+15
- 5
– 27 –
CP-643E/643ME Specifications
Edition 3.0