PXH-1 5OM-1321-002_w.pdf - 第72页
2 - 11 Tg 1301 -ID-MD 基板チャック部レイアウト 1 0602 - 001 -(M 831 YE--- 1001 ) 基板チャック部レイアウト 1 Table 5C3 記 号 名 称 B48 基板横クランプ前進限 B49 幅異常検出(投光側)

2-10
Tg1301-ID-MD
スキージヘッド部レイアウト 2
0602-001-(M831YFA--1002)
Table 5C2
記 号 名 称
B01 前ロードセル
B02 後ロードセル
B60 前スキージ上下上限
B61 前スキージ上下中間
B62 後スキージ上下上限
B63 後スキージ上下中間
B64 ペースト高さ検出(オプション)
B311 スクリーン認識 X 軸原点

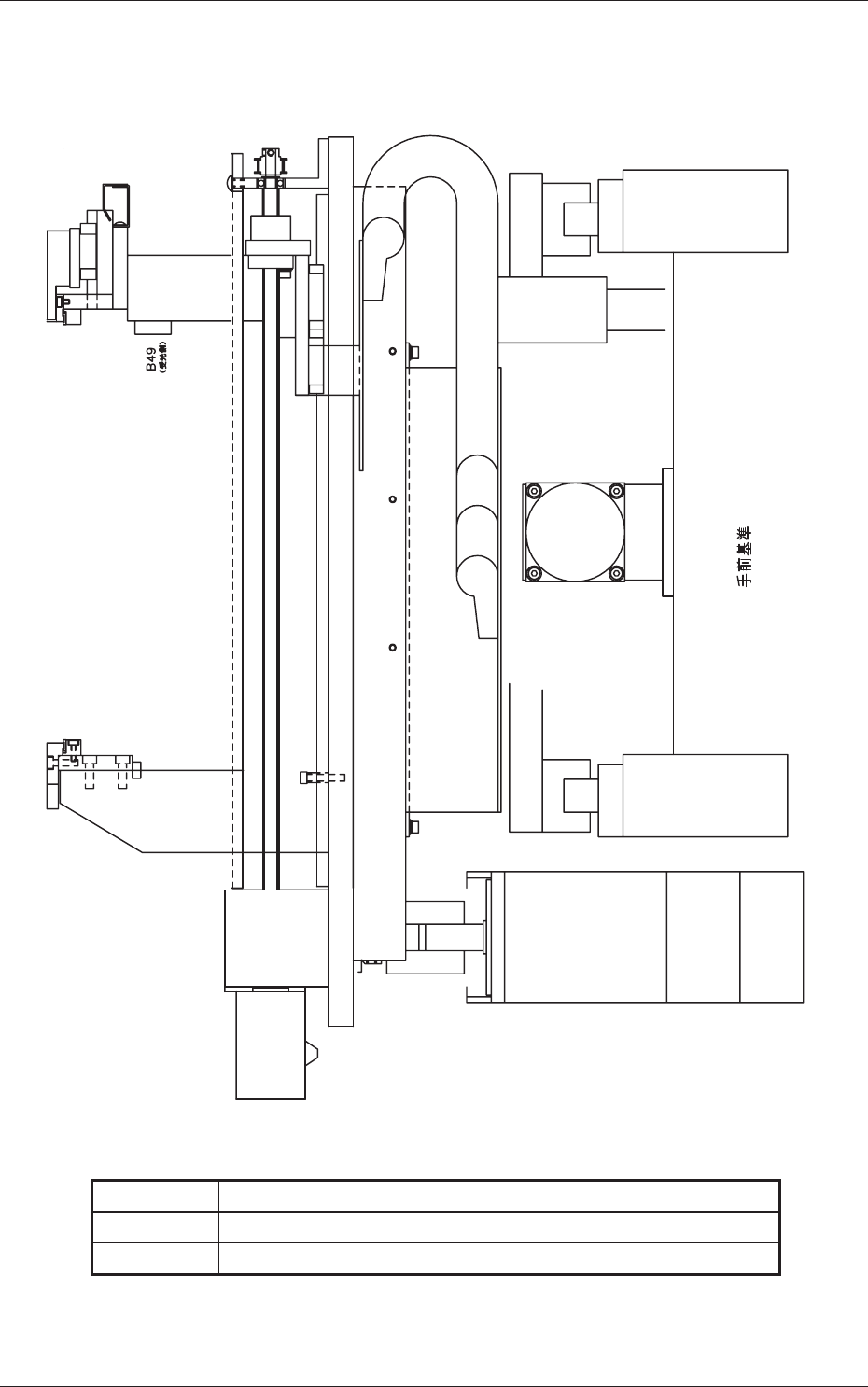
2-11
Tg1301-ID-MD
基板チャック部レイアウト 1
0602-001-(M831YE---1001)
基板チャック部レイアウト 1
Table 5C3
記 号 名 称
B48 基板横クランプ前進限
B49 幅異常検出(投光側)

2-12
Tg1301-ID-MD
基板チャック部レイアウト 2
0602-001-(M831YE---1002)
基板チャック部レイアウト 2
Table 5C4
記 号 名 称
B48 基板横クランプ前進限
B49 幅異常検出(投光側)
B251 レール軸オーバラン(+)