AVK3参考手册.pdf - 第24页
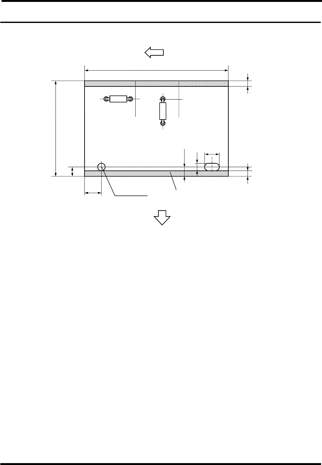
AVK3 参考手册 2.4 印刷线路 板规格 D77RCC-12-040-B0 2.4-1 机器正面 2.4. 印刷线路板设计标准 D77RCC-12-040-B0 2.4.1 印刷线路板规格 = 提示 = 有星号 (*) 的 5 mm 尺寸为标准值。其他尺寸为选购件。 当印刷线路板上有槽口时,请向我们咨询。 不能放置元件的部位 印刷线路板流向 φ 4 + 0.1 0 *5 ± 0.1 50 - 508 5 50 – 381 *…

AVK3
参考手册
2.3 控制系统规格
D77RCC-12-030-A0
2.3-2

AVK3
参考手册
2.4 印刷线路板规格
D77RCC-12-040-B0
2.4-1
机器正面
2.4. 印刷线路板设计标准
D77RCC-12-040-B0
2.4.1 印刷线路板规格
=提示=
有星号(*)的 5 mm 尺寸为标准值。其他尺寸为选购件。
当印刷线路板上有槽口时,请向我们咨询。
不能放置元件的部位
印刷线路板流向
φ
4
+ 0.1
0
*5±0.1
50 - 508
5
50 – 381
*5±0.1
φ4
+ 0.1
0
*5±0.1
3 3
最小 5
最小 5

AVK3
参考手册
2.4 印刷线路板规格
D77RCC-12-040-B0
2.4-2
最大 3
最大 3
2.4.2 插件前印刷线路板的上下限制
( i ) 在插件速度范围内 X-Y 工作台的移动量为 X=30 mm、Y=34 mm 时
( ii ) 在插件速度范围内 X-Y 工作台的移动量为 X=35 mm、Y=39.5 mm 时
*
可以通过显示屏上的多重联锁功能设定进行切换。
印刷线路板
IC
方形销、圆形销等
最大 6
最大 6
1.6