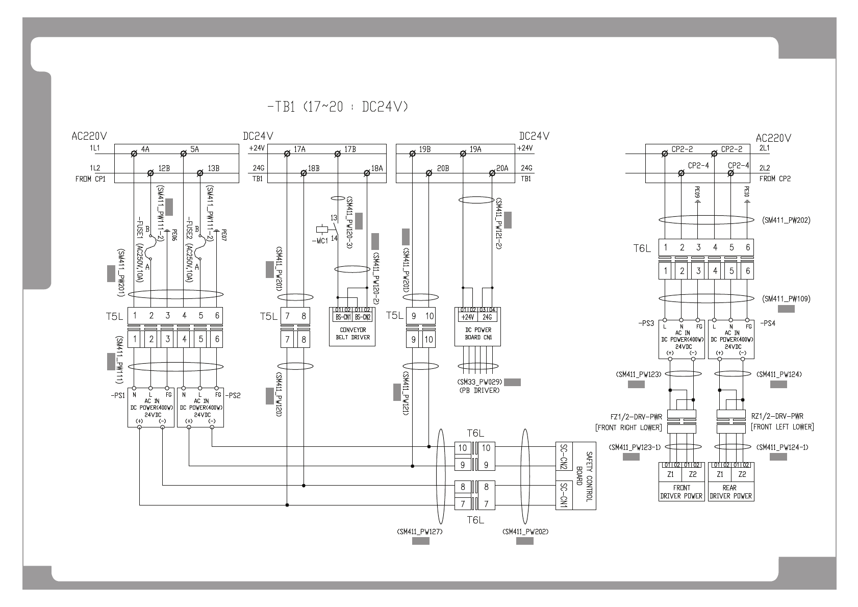
SM411_TRM(Ver12.0_CS16.50).pdf - 第197页
Page HANWHA TECHWIN 185 SM411 Electric Circuit Diagram (3/5) NO. PA R T N O . P ART NAME Q'TY Old No. Sto ck Apply Reference 1 J90834533A US B_HUB_ADAPT OR_CABLEE_ASS Y SM431_PW06 7 1 2 A M03-004883A CABLE ASSY -CON…

Page
HANWHA TECHWIN
184
SM411
Electric Circuit Diagram (3/5)
^4`
^;`
^5` ^6`
^7` ^8`
^9` ^:`
^<`
^43`
^44`

Page
HANWHA TECHWIN
185
SM411
Electric Circuit Diagram (3/5)
NO. PART NO. PART NAME Q'TY Old No. Stock Apply Reference
1 J90834533A USB_HUB_ADAPTOR_CABLEE_ASSY SM431_PW067 1
2 AM03-004883A CABLE ASSY-CONTROL_RACK_PW_EXT 1
3 AM03-004119A CABLE ASSY-CONTROL_RACK_PW 1
4 AM03-004458A CABLE ASSY-FX_FS_F_MOT_PW_T1R 1
5 AM03-004492A CABLE ASSY-F_MONITOR_PW_T1R 1
6 AM03-004460A CABLE ASSY-FY1_RY2_R_MOT_PW_T4L 1
7 AM03-004493A CABLE ASSY-REAR_MONITOR_PW_T4L 1
8 J90831074C FAN_POWER_CABLE_ASSY 1
9 J90833316A FAN_CABLE_ASSY SM-FAN00 1
10 J90831075D SERVO_FAN_POWER_CABLE_ASSY 1
11 J90831088B SERVO_FAN_FG_CABLE_ASSY 1

Page
HANWHA TECHWIN
186
SM411
Electric Circuit Diagram (4/5)
^44`
^4`
^9`
^5`
^6`
^7` ^8`
^:`
^;`
^<`
^43`
^45` ^46`
^47`
^49`^48`
^4;`^4:`