9018-18076.pdf.pdf - 第36页
6-4 Site Preparation 6 Power Requirements Power Requirements • Mains Disconnect • Power Drop • Basic Power Quality Survey • Connecting Power to the PDU Mains Disconnect A mains disconnect — providing over-current and sho…

Power Requirements 6
Site Preparation 6-3
About the PDU
The testhead product number and serial number are located on the rear of the testhead cradle.
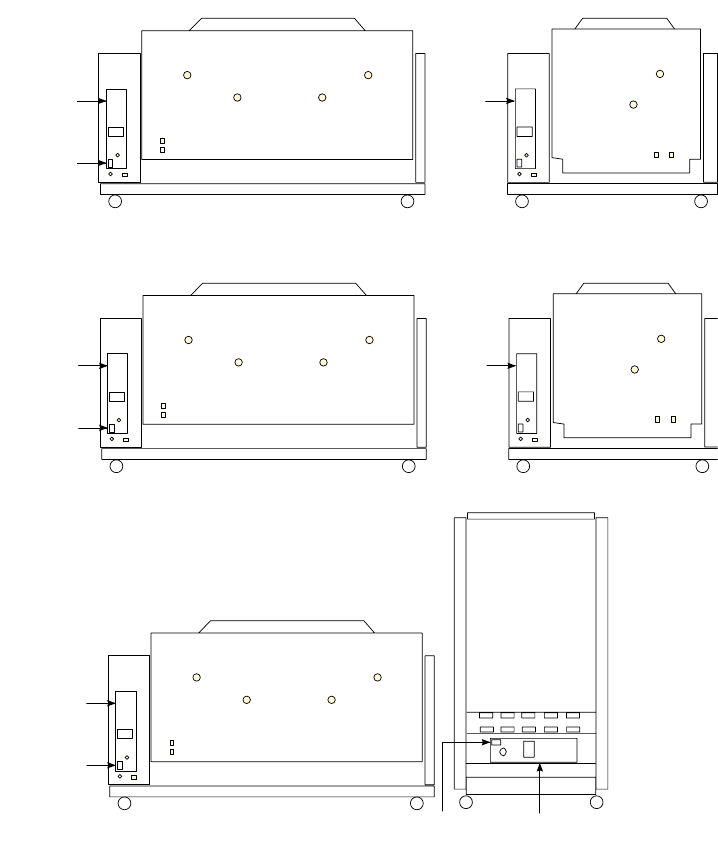
Figure 6-4 and Figure 6-5 show rear views of the systems.
The PDU (Power Distribution Unit) is the device in the system to which you will connect AC power.
The PDU is wired differently for different power configurations. The voltage of the PDU is marked on
the front panel of the PDU. If you install a system in a location in which the actual power does not
match the power configuration of the PDU, you may need to rewire the outlet connections in the PDU
(see Is PDU Re-wiring Necessary? on page 6-9).
Figure 6-4 Rear views of the UnMux system
Figure 6-5 Rear views of the Mux system
PRGXOH7HVWKHDG
3RUW
3RUW
,QXW
3'8
RUPRGXOH7HVWKHDG
0DLQV
'LVFRQQHFW
3RUW
3RUW
3RUW
3RUW
,Q
XW
3'8
3'8%UDQFK
6LQJOHSKDVHRSWLRQVZLWK
SKDVHYROWDJHOHVVWKDQ9
9LHZZLWKUHDU
GRRURSHQ
PRGXOH7HVWKHDGZLWK6XSSRUW%D\
0DLQV
'LVFRQQHFW
3RUW
3RUW
3RUW
3RUW
,Q
XW
3'8
0DLQV
'LVFRQQHFW
PRGXOH7HVWKHDG
3RUW
3RUW
,QXW
3'8
PRGXOH7HVWKHDG
0DLQV
'LVFRQQHFW
3RUW
3RUW
3RUW
3RUW
,Q
XW
3'8

6-4 Site Preparation
6 Power Requirements
Power Requirements
• Mains Disconnect
• Power Drop
• Basic Power Quality Survey
• Connecting Power to the PDU
Mains Disconnect
A mains disconnect — providing over-current and short-circuit protection — must be provided for the
system. It may be a fused disconnect or a circuit breaker (see Figure 6-6).
If a fused disconnect is used, it must:
• Be rated for 30 amps in each phase.
• Open all line conductors and neutral conductors where local code applies, but not the protective
earth conductor.
• Be marked “System Mains Disconnect” or the equivalent in your local language
• Be marked with a “|” for the “On” position or “O” for the “Off” position.
• Be capable of being locked in the “Off” position, but not in the “On” position.
• Be installed within 3 meters of the system, where it can be easily reached by the system operator
without requiring the system to be moved to access the disconnect.
If a circuit breaker is used, it must meet all of the above requirements plus:
• Be rated for a minimum of 10,000 amps interrupting capacity (AIC) if used on a 200–240 volt
circuit, or 14,000 AIC if used on a higher voltage circuit.
Figure 6-6 Wiring diagram
6\VWHP
&LUFXLW
%UHDNHU
RU)XVHV
3'8
$&YROWDJHVRXUFH
3RZHUUHFHSWDFOHDQG
SRZHUFRUGIURP3'8
(OHFWULFLDQ
PXVWGHWHUPLQH
WKHFRQGXFWRUVL]H
&XVWRPHULQVWDOOHGSRZHU
GURSDQGUHFHSWDFOH
0DLQV
'LVFRQQHFW
9ROWDJHPHDVXUHGDWWKH
SRZHUUHFHSWDFOHRU3'8
ZLWKWKHV\VWHPRQPXVWEH
RIQRPLQDO
Power Requirements 6
Site Preparation 6-5
Power Drop
• A dedicated power drop must be provided for the testhead due to its high current requirements.
• Copper wire must be used for the power drop.
• An electrician must determine the wire size for the power drop. The wires must be sized to ensure
that the voltage at the system does not drop below 90 percent of nominal (see Calculating the
Minimum Voltage on page 6-5).
• Convenience outlets should be provided near the system for external equipment such as
programming stations, extra equipment bays, and automation equipment. Locate the outlets
within one meter (three feet) of the rear of the system. See Chapter 2, Planning to plan the
location of convenience outlets. Convenience outlets should supply current protection at 15A or
20A depending on local code requirements at 100–120 volts or current protected at 10A
depending on the local code requirements at 200–240 volts.
Calculating the Minimum Voltage
The voltage at the testhead must be at least 90 percent of nominal. To calculate the minimum rms
voltage multiply the rms voltage by 0.9. To calculate the minimum peak voltage, multiply the rms
voltage by 0.9 and then 1.414. For example:
208 volts rms * 0.9 * 1.414 = 265 volts peak