5OM-1321-005_w.pdf - 第124页
Tg 1301 -ID-MD 3 - 31 R コンベア幅パルスモータ R コンベア幅パルスモータ 0602-001-(M831WBB--1023)

Tg1301-ID-MD
3-30
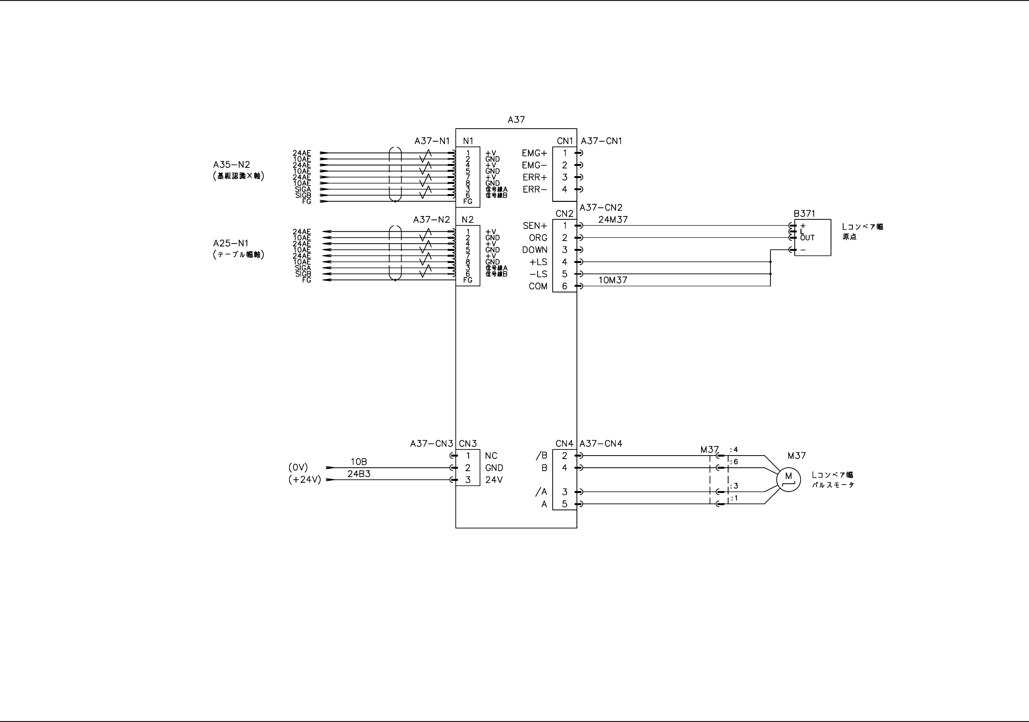
L コンベア幅パルスモータ
L コンベア幅パルスモータ
0602-001-(M831WBB--1022)

Tg1301-ID-MD
3-31
R コンベア幅パルスモータ
R コンベア幅パルスモータ
0602-001-(M831WBB--1023)

Tg1301-ID-MD
3-32
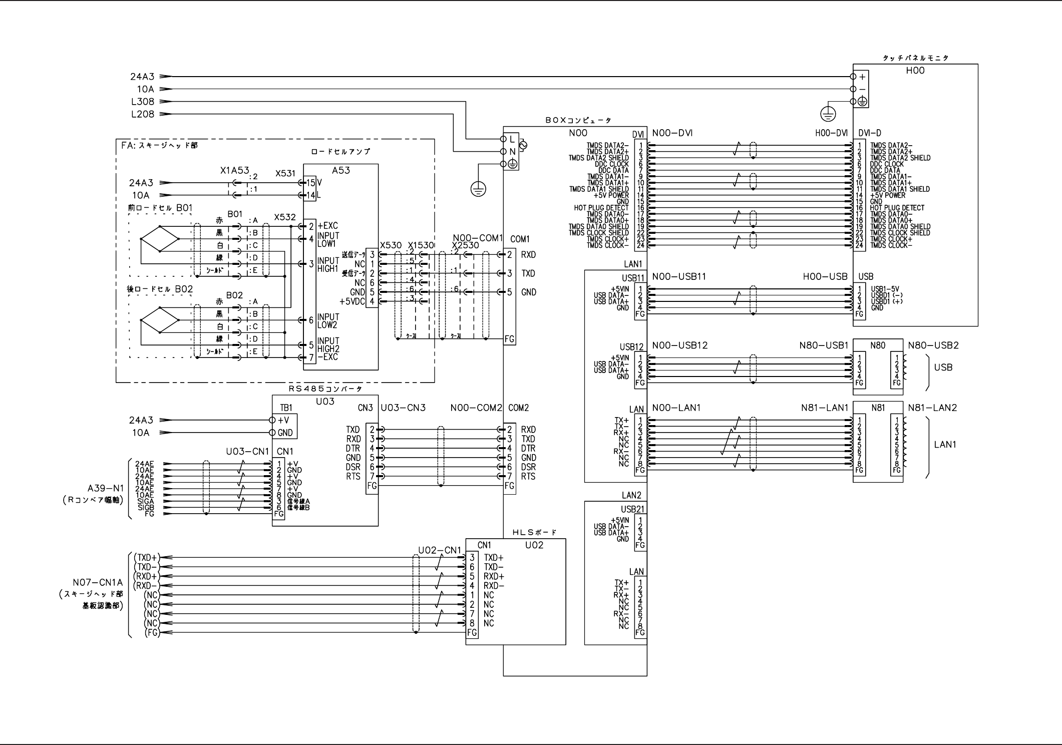
BOX コンピュータ回路図
BOX コンピュータ回路図
0602-001-(M831WC---1001)