FX-2-Rev03.pdf - 第34页

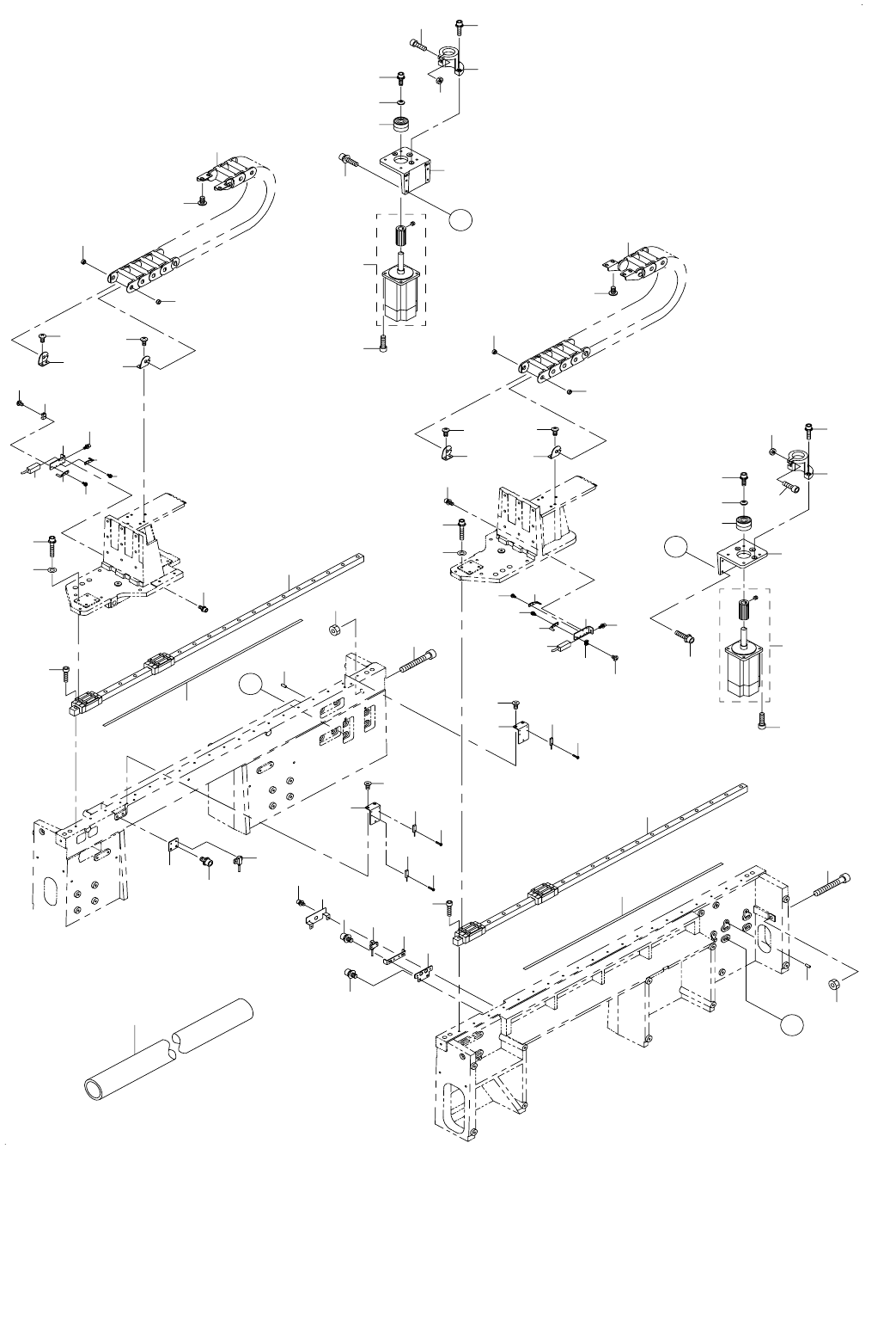
- 29 - 15. X-Y COMPONENTS (2) X−Y関 係 ( 2 ) 1 3 41 42 12 13 16 24 36 37 38 38 32 32 31 33 23 28 29 26 30 19 17 20 20 21 18 21 22 19 20 17 20 21 18 21 22 11 8 42 12 15 16 14 16 A 1 29 4 6 7 5 9 26 30 11 B B 33 31 A 28 25 2…

100%1 / 132
- 28 -
REF.NO NOTE PART NO D E S C R I P T I O N
品 名
Qty
1 400-81644 X BEAM
ビーム
1
2 SL-6062592-TN SCREW
座金付き六角穴ボルト
18
3 400-24223 X BEAM END L
ビームエンド L
1
4 400-24224 X BEAM END R
ビームエンド R
1
5 400-76065 MOUNT BASE
マウントベース
2
6 SM-9062003-SC SCREW M6 L=20
六角穴ボルト M 6 L =20
2
7 NM-6060003-SC NUT M6
六角ナット M
2
8 L130E-321-000 X LINEAR GUIDE
リニアガイド
2
9 SL-6031692-TN SCREW
座金付き六角穴ボルト
4
10 400-76063 XM BASE L
XM ベース
1
11 400-76064 XM BASE R
XM ベース
1
12 L130E-921-000 X STOPPER PLATE L
ストッパプレート
1
13 L131E-021-000 X STOPPER PLATE R
ストッパプレート
1
14 SL-6051292-TN BOLT
座金付き六角穴ボルト
10
15 L131E-221-000 CABLE GUIDE PLATE
ケーブルガイドプレート
1
16 SL-6061492-TN BOLT
座金付き六角穴ボルト
4
17 L131E-321-000 X CABLE BEAR
ケーブルベアー
2
18 L131E-421-000 RUBBER SHEET
ラバーシート
2
19 L131E-521-000 CB SPACER
CB スペーサー
2
20 L131E-621-000 CB BRACKET L
CB ブラケット
2
21 L131E-721-000 CB BRACKET R
CB ブラケット
2
22 L132E-421-000 CB BRACKET PIN X
CB ブラケットピン
4
23 SM-0050801-SC SCREW
トラスねじ M 5 L =8
8
24 SM-0061201-SC SCREW
トラスねじ M 6 L =12
8
25 400-64627 MAGNETIC SCALE X ASM
マグネットスケール
1
26 SL-6051292-TN BOLT
座金付き六角穴ボルト
2
27 400-24234 X SENSOR BRACKET
センサブラケット
2
28 L811E-721-0A0 XL NEAR SENSOR ASM
XL ニアセンサ 組
1
29 L812E-121-0A0 XR PLUS LIMIT SENSOR ASM
XR プラスリミットセンサ 組
1
30 L812E-021-0A0 XR NEAR SENSOR ASM
XR ニアセンサ 組ミ
1
31 SM-4860601-SC SCREW M2.6 L=6 (FX-1)
なべ小ねじ M 2.6 L =6
6
32 SL-4030691-SC SCREW M3X6
なべ小ねじセムス M 0.5 L =6
4
33 L132E-221-000 XC LIMIT SENSOR BRACKET
XC リミットセンサブラケット
1
34 WZ-0541510-KP WASHER 5.4X9.0X0.3
波形座金
11
35 L811E-921-0A0 XC LIMIT SENSOR ASM
XC リミットセンサ組
1
36 SM-4860601-SC SCREW M2.6 L=6
なべ小ねじ M 2.6 L =6
1
37 L132E-321-000 Y CABLE SUPPORT
ケーブル サポート
2
38 SM-0061201-SC SCREW
トラスねじ M 6 L =12
4
39 400-77070 XL LINEAR MOTOR ASM
XL リニアモータ組
1
40 400-77071 XR LINEAR MOTOR ASM
XR リニアモータ組
1
41 SL-6041692-TN SCREW
座金付き六角穴ボルト M 4 L =16
30
42 L901E-121-000 X-AXIS LINEAR SERVO STATOR(2KW)
軸リニアサーボ固定子部(2 KW)
4
43 SL-6062042-TN BOLT
座金付き六角穴ボルト
64
44 L133E-221-000 CAUTION LABEL
注意ラベル
1
45 L132E-521-000 YF SENSOR DOG
YF センサードグ
1
46 L132E-621-000 YR SENSOR DOG
YR センサードグ
1
47 SL-6040892-TN BOLT
座金付き六角穴ボルト
4
48 HX-0029400-00 FIXED BASE
固定ベース
36
49 SM-4040601-SC SCREW M4X0.7 L=6
なべ小ねじ M 0.7 L =6
32
50 SM-4030601-SC SCREW M3 X 6
なべ小ねじ M 0.5 L =6
4
51 HX-0005500-0B RUBBER BUSHING B
ゴムブッシュ
2
52 SM-4031001-SC SCREW M3X0.5 L=10
なべ小ねじ M 0.5 L =10
4
53 SM-6052002-TP SCREW M5 L=20
六角穴ボルト
40
54 HX-0035400-0F BOARD SUPPORT
基板パーツ
4
55 E8616-729-0A0 CARRY SENSOR RELAY BOARD ASM.
キャリーセンサ中継基板組
1
56 HX-0035400-0M STUD
基板 サポート
4
57 400-81697 PWB COVER
PWB カバー
1
58 400-24273 SENS UNIT YB
センサーユニット YB
2
59 400-24237 UNIT BR
ユニット BR
2
60 SL-6030842-TN SCREW M3 L=8
座金付き六角穴ボルト
4
61 SL-6052092-TN SCREW
座金付き六角穴ボルト
48
62 L130E-621-000 X BACK PLATE
X バック プレート
2
63 SL-6061642-TN BOLT
座金付き六角穴ボルト
52
64 L130E-721-000 X BACK BAR
X バック バー
2
65 SM-6052002-TN BOLT
六角穴ボルト
46
66 L130E-821-000 SHOCK ABSORBER
ショック アブソーバ
4
67 SL-6040892-TN BOLT
座金付き六角穴ボルト
4
68 L811E-821-0A0 XL -LIMIT SENSOR ASM
XL マイナスリミットセンサ 組
1
69 400-76066 X LIMIT DOG L
リミットドグ
1
70 400-76067 X LIMIT DOG R
リミットドグ
1
71 400-44531 MAGNETIC SCALE X SENSOR UNIT
マグネチックスケール センサユニット
2
72 400-24225 X SCALE BASE
スケールベース
1
73 400-24226 BASE FIX PLATE
ベース固定板
8
74 L146E-273-000 SCREW M4X12
座金付き六角穴ボルト 黒
16
75 400-24227 BASE BOLT
ベースボルト
11
76 400-24228 BASE FIX BOLT
ベース固定ボルト
1
77 SL-6051692-TN BOLT
座金付き六角穴ボルト
4
78 SL-6040892-TN BOLT
座金付き六角穴ボルト
4
79 MGR-EAS400GA GREASE 400G
グリース
1
80 L132E-721-000 X BEAM HANDLE
ビーム ハンドル
2
81 SM-1051452-TN PLATE SCREW
皿ねじ M 5 L =14
4
82 401-05882 KEEP MAGNET AWAY LABEL
着磁禁止シール
3
83 400-70285 STOPPER CUSHION
ストッパクッション
4
- 29 -
15.X-Y COMPONENTS (2)
X−Y関
1
3
41
42
12
13
16
24
36
37
38
38
32
32
31
33
23
28
29
26
30
19
17
20
20
21
18
21
22
19
20
17
20
21
18
21
22
11
8
42
12
15
16
14
16
A
1
29
4
6
7
5
9
26
30
11
B
B
33
31
A
28
25
27
35
34
39
40
25
27
46
43
43
44
2
2
44
45
55
47
54
55
54
10
10
47
48
49
49
46
50
53
52
53
52
52
51
52
51
- 30 -
REF.NO NOTE PART NO D E S C R I P T I O N
品 名
Qty
1 L140E-021-000 Y LINEAR GUIDE
リニア−ガイド
2
2 WP-0621046-SP WASHER
平座金
16
3 SL-6061292-TN SCREW
座金付き六角穴ボルト
2
4 L141E-821-000 MGS BRACKET R
MGS ブラケット R
1
5 SL-6061292-TN SCREW
座金付き六角穴ボルト
2
6 L141E-621-000 YR ADJUST PLATE
YR 調整プレート
1
7 SL-6040892-TN BOLT
座金付き六角穴ボルト
2
8 L814E-121-0A0 YBL ORG SENSOR ASM.
YBL 原点センサー組
1
9 L814E-321-0A0 YBR ORG SENSOR ASM.
YBR 原点センサー組
1
10 SM-4040601-SC SCREW M4X0.7 L=6
なべ小ねじ M 0.7 L =6
2
11 400-78584 MAGNETIC SCALE YB ASM
マグネットスケール YB
2
12 SM-1051001-SC SCREW M5 L=10
皿小ねじ M 5 L =10
4
13 L811E-321-0A0 YBL +LIMIT SENSOR ASM.
YBL +リミットセンサー組
1
14 L811E-121-0A0 YBL -LIMIT SENSOR ASM.
YBL −リミットセンサー組
1
15 L811E-521-0A0 YB NEAR SENSOR ASM.
YB ニアセンサー組
1
16 SM-4860601-SC SCREW M2.6 L=6
なべ小ねじ M 2.6 L =6
3
17 L140E-321-000 Y CABLE BEAR
ケーブルベアー
2
18 E2439-727-000 CB BRACKET XL
CB ブラケット XL
2
19 E2440-727-000 CB BRACKET XR
CB ブラケット XR
2
20 E2441-727-000 CB BRACKET PIN
CB ブラケットピン
4
21 SM-0050801-SC SCREW
トラスねじ M 5 L =8
8
22 SM-0061001-SC SCREW M6 L=10
トラスねじ M 6 L =10
8
23 L140E-421-000 YB MOTOR BRACKET L
YB モーターブラケット
1
24 L140E-521-000 YB MOTOR BRACKET R
YB モーターブラケット
1
25 L141E-221-000 THRUST COLLAR
スラストカラー
2
26 PH-0600164-C0 PIN
平行ピン
4
27 SL-6051692-TN BOLT
座金付き六角穴ボルト
2
28 SL-6062592-TN SCREW
座金付き六角穴ボルト
8
29 SM-6085502-TS SCREW
ねじ
2
30 NM-6080001-SC NUT M8X1.25
六角ナット M 8 1種
2
31 SB-1150002-00 BEARING
ベアリング
2
32 SM-6032002-TN SCREW M3X0.5 L=20
六角穴ボルト M 0.5 L =20
2
33 SL-6062042-TN BOLT
座金付き六角穴ボルト
8
34 L141E-921-000 MGS COVER
MGS カバー
1
35 SL-6040892-TN BOLT
座金付き六角穴ボルト
2
36 L140E-721-000 YB MOTOR SUPPORT L
YB モーターサポート
1
37 L140E-621-000 YB MOTOR SUPPORT R
YB モーターサポート
1
38 SL-6052092-TN SCREW
座金付き六角穴ボルト
6
39 L142E-221-0A0 YBL MOTOR ASM.
YBL モータ組
1
40 L142E-321-0A0 YBR MOTOR ASM.
YBR モータ組
1
41 L141E-721-000 MGS BRACKET L
MGS ブラケット
1
42 L140E-221-000 Y ORG SENSOR BRACKET
原点 センサーブラケット
2
43 NM-6030001-SC NUT M3
六角ナット M 0.5 1種
2
44 SL-6053092-TN SCREW
座金付き六角穴ボルト
16
45 400-24235 DETECTOR BR L
ディテクタ BR L
1
46 SL-6031292-TN BOLT
座金付き六角穴ボルト
4
47 SL-6030842-TN SCREW M3 L=8
座金付き六角穴ボルト
4
48 400-24236 DETECTOR BR R
ディテクタ BR R
1
49 SM-6052002-TP SCREW M5 L=20
六角穴ボルト
40
50 HX-0060700-00 TUBE
チューブ
1
51 400-27030 SCALE WIPER B
スケールワイパ
2
52 SL-4850691-SC SCREW M2.5X6
なべ小ねじセムス M 2.5
8
53 400-27029 SCALE WIPER A
スケールワイパ
2
54 400-44418 SENSOR_UNIT_PSLH017
センサユニット
2
55 HX-0029400-00 FIXED BASE
固定ベース
2