Aimex3C安装手册.pdf - 第50页
2. 安装 SET-AIMEX3C-L-001S0 38 AIMEX IIIc 安装手册 7. 拧紧电源线固定套使电源线固定 。 注意 )请确实锁定,即使在强行拉电源电缆时也不能拔出。 8. 请按装拆除的盖板和主开 关部。 㓵 30SET -0121Sb 2z7dLQuh 2z7dLQuh Downloaded at 2017/10/30 17:10:229 by 307B1555 DL#vqE538o5 Downloaded at …

SET-AIMEX3C-L-001S0 2. 安装
AIMEX IIIc 安装手册 37
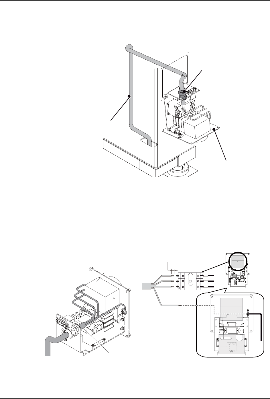
3. 请拆除主开关部,拉出到容易作业的位置。
4. 请将电源线穿过电源接入口并拉至主电源开关附近。布线过程中必需穿过电源线固定
套。
5. 将地线连接到地线端子板。
注意 )请仔细阅读注意 90。
6. 将 3 相电线与主开关连接,以规定力矩将其拧紧。此时,请确认 3 相电源线的每根电线
都已正确地连接好。
·端子螺丝紧固转矩 :2.00N·m
注意 )请定期将端子螺丝拧紧。
30SET-0167Sb
R
A
E
T
B
O
N
D
I
N
G
P
O
I
N
T
H
ѱᔶީ
㓵
⭫Ⓠ⭫㔼
30SET-0008Sc
ѱᔶީ
⭫Ⓠ⭫㔼
ѱᔶީ
ж⅗⭫Ⓠ⭫㔼ተሮᱥ
AWG 12 (3.5 sq)ԛрȾ
൦㓵
12 mm
1 ON
OFF
0
R001
T001
S001
2z7dLQuh
2z7dLQuh
Downloaded at 2017/10/30 17:10:229 by 307B1555 DL#vqE538o5
Downloaded at 2017/10/30 17:10:229 by 307B1555 DL#vqE538o5

2. 安装 SET-AIMEX3C-L-001S0
38 AIMEX IIIc 安装手册
7. 拧紧电源线固定套使电源线固定。
注意 )请确实锁定,即使在强行拉电源电缆时也不能拔出。
8. 请按装拆除的盖板和主开关部。
㓵
30SET-0121Sb
2z7dLQuh
2z7dLQuh
Downloaded at 2017/10/30 17:10:229 by 307B1555 DL#vqE538o5
Downloaded at 2017/10/30 17:10:229 by 307B1555 DL#vqE538o5

SET-AIMEX3C-L-001S0 2. 安装
AIMEX IIIc 安装手册 39
2.5.2 空气管
请将输气管与机器连接并通过空气调节器将气压调到规定值。
连接方法
1. 在Side2侧的气源供应软管的端部安装接头,连接到机器的插头上。
备注 )本机器没有配备输气管。
1. 供气管 3. 栓
2. 存放格
30SET-0236-a
2
1
3
ON
OFF
BALL VALVE
2z7dLQuh
2z7dLQuh
Downloaded at 2017/10/30 17:10:229 by 307B1555 DL#vqE538o5
Downloaded at 2017/10/30 17:10:229 by 307B1555 DL#vqE538o5