5OM-1626-001_w.pdf - 第128页
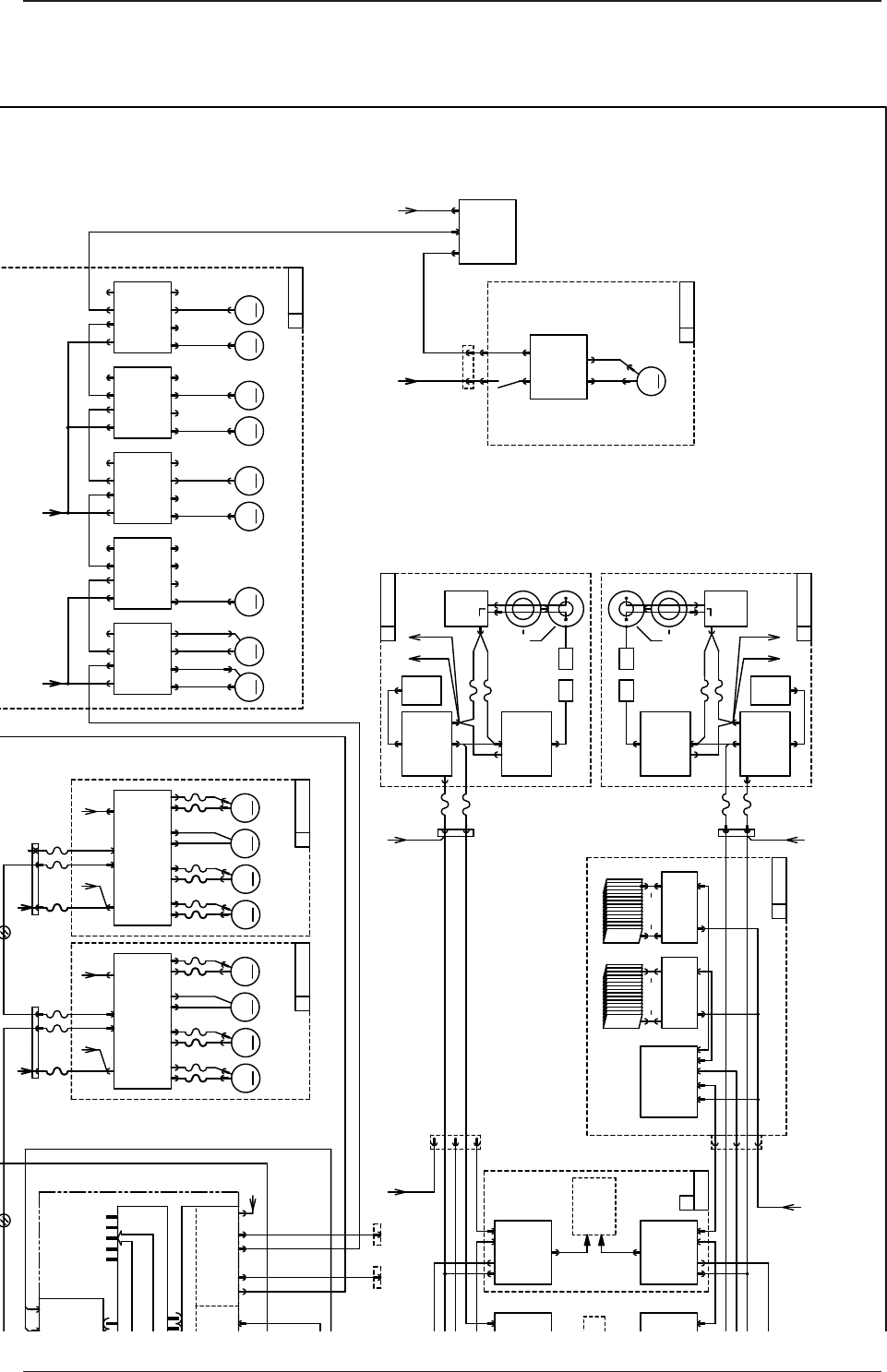
5OM-1610 4-13 091 1-001A(M913WB---0001) Power Supply Section 1 1 2 3 4 5 6 7 8 9 10 11 12 A B C D E F G H (5A) (5A) (5A) Z1 PE L3 L2 L1 Absorber 6 NOISE FIL TER1 4 5 1 2 3 L10 L20 L30 L22 L32 Lightning Surge L12 Q200 L30…

5OM-1610
4-120911-001C(M913WA---0001)
Integrated Block Connection Diagram (Details D)
24F
24F
24F 24F
24F
24F
24G*
24G*
24A2
24B1 24B1
24B1
24B1
24B1
48D3K
48D3H
48D3G
48D3A 48D3B
M MM M
MMMM
MM MMM MMMM
M
RS485
I/O
ID:0
M63F
CT-Axis
U
CU-SRS
CPCI
U
DL-SRS
NA-BAL
M53 M54
NA-BAR
2CH1CH
U181F
CN1 CN4 CN2
A63F
Servo Motor
AMP
CN2CN1
CN3 CN5
CH2
AE_LINK
AE LINK
AE LINK
NA-LB1
M47 M48
NA-LB2
NL-LB1
M45 M46
NL-LB2
NA-W1
M161 M163
NA-W3
NL-LA1
M41 M42
NL-LA2
NA-BBL
M55
A55
CN9
EMG
CN10
PWR
N2
AE
N1
AE
CN5CN1
M56
NA-BBR
CN7CN3
NA-LA1
M43
A162
CN9
EMG
CN10
PWR
N2
AE
N1
AE
CN5CN1
M44
NA-LA2
CN7CN3
NA-W2
M162
A51
CN9
EMG
CN10
PWR
N2
AE
N1
AE
CN5CN1 CN7CN3
NR-LA1
M49
A49
CN9
EMG
CN10
PWR
N2
AE
N1
AE
CN5CN1
M50
NR-LA2
CN7CN3
NR-LB1
M51
A43
CN9
EMG
CN10
PWR
N2
AE
N1
AE
CN5CN1
M52
NR-LB2
CN7CN3
CN4
CN5
CN3
CN4
CN3
CN4
CN1
CN2
CN1
CN2
CN1
CN2
U
SL-SRS
(F)
K52
FB
U69
CN9
CN8
CN6
U
FB-SRS
U68a
X100
Connector PCB
U68b
X100
Connector PCB
FEEDER
FEEDER
NSDD
M32M31
Servo Motor AMP
A31
CNP1
48V/24V
CN1A
SSC
CN3
24V
NSDD
M32M31
A31
Servo Motor AMP
U
HH-SRS(2)
CN1B CNP1
48V/24V
CN1A
SSC
CN3
24V
CN1B
U
HH-SRS(1)
P2A 2A P2B 2B P2C 2C P2D 2D P2A 2A P2B 2B P2C 2C P2D 2D
U25
X1
LINE SENSOR
U03
CN6
CN5
X2
Slip
LINE SENSOR
U03
U147
Conn.
CN1
X1
U25
X2
CN1 CN6
CN5
Rings
U37
Slip
J1
Rings
U37
U04
U04
U
HH-SRS(1)
U
HH-SRS(2)
P.C.B
U147
Conn.
P.C.B
J1
AE LINK
AE LINK
CH2CH1
X18514X18512
(CN5)
CN1
(CN10) (CN13) (CN15)(CN3)(CN14)
2 3 414
U07 U08
U06
CNVR-L
CUT(2)
U14
CNVR-R
Stepping Mot AMP Stepping Mot AMP Stepping Mot AMP Stepping Mot AMP Stepping Mot AMP
M33
NL
M34
HL
M33
NL
M34
HL
SV-NET
(OP)
SSCNET3 (Optic)
SSCNET3 (Optic)
Beam Connector
Relay Panel
Beam Connector
Relay Panel
External Unit Connecting
Bundled Connector (Rear)
External Conver Connection Panel
(Left) (Right)
Each Loads
and Sensor
External Unit Connecting
Bundled Connector (Front)
15 Lane 15 Lane
Beam Connector
Relay Panel
LINE SENSOR
LINE SENSOR
Beam Connector
Relay Panel
Light
Reception
Light
Emission
Light
Emission
Light
Reception
Converter
External Unit Connecting
Bundled Connector
Note 1

5OM-1610
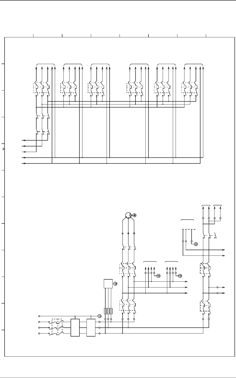
4-130911-001A(M913WB---0001)
Power Supply Section 1
1
2 3 4 5 6 7 8 9 10 11 12
A
B
C
D
E
F
G
H
(5A)
(5A)
(5A)
Z1
PEL3L2L1
Absorber
6
NOISE FILTER1
4
5
1 2 3
L10
L20
L30
L22
L32
Lightning
Surge
L12
Q200
L300
L200
L100
F201
F203
F202
L11
L21
L31
321
5
4
NOISE FILTER2
6
Z2
F200
L115
L215
L315
Q221F
Q223F
Q222F
L313
L213
L113
L314
L214
L114
A22F
L121
L221
L121
L221
L121
L221
L221
L121
L221
L121
L221
L121
A22R
A23R
A21R
L117
L217
L317
L116
L216
L316
Q222R
Q223R
Q221R
Servo Motor AMP(Y1)
Servo Motor AMP(Y2)
Servo Motor AMP(X)
L318
L218
L118
A23F
A21F
[C-/01/2A]
[C-/01/2G]
[C-/02/2A]
[C-/03/2A]
[C-/03/2G]
[C-/04/2A]
Servo Motor AMP(Y1)
Servo Motor AMP(Y2)
Servo Motor AMP(X)
L310L210L110
[B-/01/2G]
Q201
L310
L210
L110
400W
Vacuum Pump
3
M
M66
U
V
W
K29
Q205
65
43
1 2
L331
L231
L131
L330
L230
L130
L310L210L110
[B-/01/8A]
3
5 6
4
2
K33A
1
Q204
Q206
L220L120
[B-/02/1A]
L220
L120
For Power Supply to Control PC
K28
L122
L222
3
1
4
2
L221
L121
5 6
A81
For Power Supply to Operation/Recognition PC
A91
[N-/11/1A]
[R-/01/2A]
L112
L212
L312
L221L121
[B-/01/8A]
L221L121
[B-/01/4H]
CPU1
CPU2
3
5 6
4
2
K33B
1
L111
L211
L311
:1
[D-/12/1B]
[D-/22/1B]
:2
:3
:4
:1
:2
:3
:4
[B-/02/7A]
External Unit Connecting Bundled Connector (Rear)
-X1300B1
-X1300B1
External Unit Connecting Bundled Connector (Front)
[LF/01/2A]
K100
OP : Lead Coplanarity
:1
X:REED-K100
:2
:3
:1
:2
1
2 3 4 5 6 7 8 9 10 11 12
A
B
C
D
E
F
G
H

5OM-1610
4-140911-001D(M913WB---0002)
Power Supply Section 2
10D
48D
L120
L220
L1
L2
FG
DC48V
F13
F14
48D3A
48D3B
G2
(10A)
K38
10D
48D3E
F33
48D2E
1 2
U27
DC24V
(L)
(N)
FG
24G
10G
10G
24G
X2711
:2
:1
[B-/01/3H]
[D-/12/1C]
10H
48H
(L)
(N)
FG
DC48V
G7
48H
10H
[R-/01/12D]
DC24V
FG
DC24V
DC24V
(L)
(N)
DC24V
24A2
24F
24C
G1
F7(6.3A)
24A1
24A0
K1A
4 3
F1(3.15A)
13 14
F2(6.3A)
23 24
K25
4 3
F5(6.3A)
F42(5A)
F52(6.3A)
24A
24B
24B3
24B4
K27
F41(3.15A)
24B2
24A3
24B1
24C
24F
10A
10B
10C
10F
48D3F
(10A)
48D3G
F43
48D2G
5 6
48D3H
4 3
[D-/02/2E]
[MH/01/1B,5B]
L110
U27
K1B
33 34
43 44
24A30
CN2CN1
1
3
:1
:2
:3
:4
1
2
CN2
1
2
CN2
1
2
CN2
1
2
X2702
24A1
G
AUX
48D3J
[D-/12/1B]
(5A)
F29
48D3K
(5A)
F30
[D-/22/1B]
U27
3 4
5 6
K10
1 2
3 4
5 6
L240
L140
CN02
11
12
K15
56
X2708
:1
X2708
:2
U27
10D
10D
10D
10D
10D
10D
10D
(10A)
F34
48D2F
3 4
F44
K50
1 2
(10A)
48D2H
48D2J
48D2K
:1
X2712
:2
X2713
24B1
10B
24B1
10B
24A20
L210
L310
[B-/01/3F]
L3
L340
X:G1
:4
:5
:6
X:G1
-1 -2 -3
HWS1800T
CNT
TOG
X15306
[D-/22/1C]
X15506
:A1
X131P1
:A2
:A1
X231P1
:A2
(Robot Cable)
:1
:2
:A1
:A2
:A1
:A2
:A3:A3
:A4
(Robot Cable)
:A3:A3
:A4
10
9
8
7
6
5
4
3
2
1
REF
PV
COM
PC
-S
-V
+S
+V
PF
TOG
(SLOT1,2)
(SLOT3)
(SLOT4)
(SLOT5)
X7201-2
X7201-1
X7201A-2
X7201A-1
:2
:1
X:REED-G04
[LF/01/2D]
F70,71
10A
10B
10F
10C
:2
:1
24A0
24B1
24B2
24B3
24B4
C129
(L)
(N)
FG
DC5V
G8
5J1
10J
:1
:2
:1
:2
:1
:2
:1
:2
(3.15A)
F61
[F-/01/3H]
10J
5J
U27:X2715,X2717
U27:X2716,X2717
Image Distributor
OC Jack
X16504
X:5VOP2
X:5VOP3
X:5VOP4
X:5VOP1
-
+
-
+
RC-
RC+
RC-
RC+
RC-
RC+
+
RC-
RC+
-
+
-
-
+
-
+
-
+
-
+
1
2 3 4 5 6 7 8 9 10 11 12
A
B
C
D
E
F
G
H
*
*
Cooling Fan
[D-/01/1A]
For Safety Circuit
[B-/03/2A]
[B-/03/1A]
[B-/03/1A]
Power Input Circuit
For Safety Circuit
HLS Input Circuit Power Output ON
Option CPU_M
HUB
DC Load Power Source
[BL/02/6E]
Front/Rear Touch Panel Screen
DC Sensor Power Unit
External Power Unit for the Input and Output Machines through I/F
HEAD Unit DC Load Power Source
[BL/01/6F] [BL/03/6F] [C-/*1/8F] [D-/*1/3F]
[F-/01/8F]
[F-/01/9D] [F-/01/9H]
[BM/01/3F]
DC Load Power Source
[BL/04/6F] [F-/07/3F]
[D-/*1/3F]
[D-/02/2E] [F-/02/3F] [F-/13/5F]
-X1300D1
Feeder Bundled Connector Relay
Multi Layer Tray (1)
DC Sensor Power Unit
[D-/12/1E]
-X1300D1
Feeder Bundled Connector Relay
Multi Layer Tray (2)
DC Sensor Power Unit
[D-/22/1E]
HUB Power Connector
for connecting between CPU and M1
X : REED-X19601
[LF/01/2C]
U96:X9601
OP : Coplanarity(IF_PCB)
Contact No. Correction
For Power Unit for the LED Lighting
Control PCB
SL-SRS or DL-SRS
HH-SRS or HM-G500
HH-SRS or HM-G500
Lighting Control PCB Capacitor
OP : Coplanarity (Power to the Sensor)
Rear Side
Front Side
-X1300B2
-X1300B2
External Unit Connecting
Bundled Connector (Rear)
External Unit Connecting
Bundled Connector (Front)