5OM-1626-001_w.pdf - 第203页
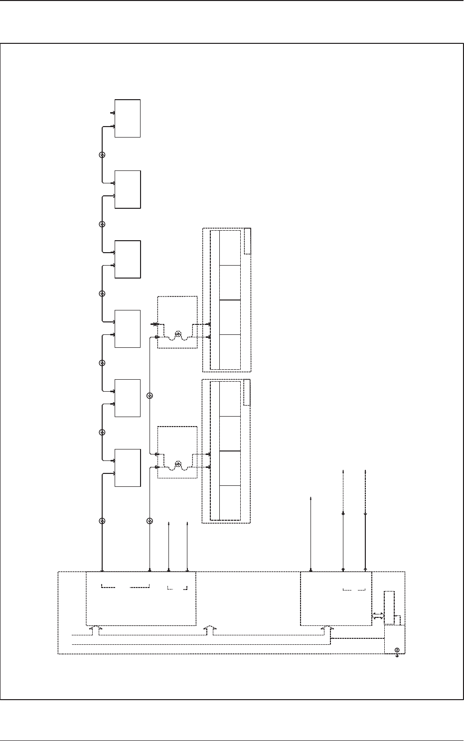
5OM-1610 5-18 091 1-001-(1091401700-2) Power Cable Wiring Diagram FG N L -V +V -V +V -V +V -V +V (24V) CN2 CN1 24F 10F 24C 10C 24B 10B 24A 10A 24A 10A 24A 10A G01A G01B (24V) L N FG -V +V -V +V CB VB 14AWG Black xxmm 24G…

5OM-1610
5-170911-001-(1091401300-13)
X8201
X8202
<RobotCable>
t20;CPCI BUS
X8203
to U05,K4
1CH
2CH
1CH
X8204
to U05
<RobotCable>
-X1311B
U81
X8102
X8104
X8109
to U91:CPU1(LAN2)
-X1300F2
-X1300F2
-X1311A
-X1311B
-X1311A
XG221
G22
+5V
SERIAL
COM1
COM2
+5V
D81 DOM
CPU2
BASE-T
10/100
SSC
NET3
2CH
I/O(DI)
(16
Axis
x2ch)
U82
MR-MC121-S12
-X311A
-X311B
-A31(1)
DD
[3]
[4]
[2]
[1]
NS HL NL
CN1B
CN1A
-X311A
-X311B
-A31(2)
DD
[4]
[2]
[1]
NS NL
CN1B
CN1A
A21F
[3]
CN1A
CN1B
-X221A
-X211B
[4]
A22F
CN1A
CN1B
CN1A
CN1B
[5]
A23F
[0]
A21R
CN1A
CN1B
[1]
A22R
CN1A
CN1B
CN1A CN1B
[2]
A23R
-X231B
-X221B
-X231A
-X231B
-X211A
-X211B
-X221A
-X221B
-X231A
[3]
HL
HH-SRS(2)
HH-SRS(1)
To External Unit Connecting Bundled Connector (1)
Nozzle
Selection
Head
Rotation
Head U/D
Nozzle U/D
Nozzle
Selection
Head
Rotation
Head U/D
Nozzle U/D
(*Cap Attachment)
Beam X
Beam Y1
Beam Y2
Beam X Beam Y1
Beam Y2
U82 16 Axis
(*Cap Attachment)
To External Unit Connecting Bundled Connector (2)
SSCNET, SERIAL Cable Connection Diagram 2

5OM-1610
5-18
0911-001-(1091401700-2)
Power Cable Wiring Diagram
FGNL
-V
+V
-V
+V
-V
+V
-V
+V
(24V)
CN2
CN1
24F
10F
24C
10C
24B
10B
24A
10A
24A
10A
24A
10A
G01A
G01B
(24V)
L
N
FG
-V
+V
-V
+V
CB
VB
14AWG Black
xxmm
24G
10G
L220
L120
14AWG Black
L120
14AWG Black
L120
14AWG Green/Yellow
xxmm
14AWG Black
14AWG Black
xxmm
FG L3 L2 L1
CN01
CN02
+
-
48D
10D
(48V)
L
N
FG
-V
+V
-V
+V
CB
VB
(48V)
L220
L120
L220
L120
14AWG Green/Yellow
xxmm
XG01
14AWG Black
xxmm
G07
X12702
1
2
3
4
5
6
9 Yellow
10Black
X12702
G02,04
48H
10H
L140
L240
L340
14AWG Green/Yellow
xxmm
xxmm
Note 1
12AWG
12AWG
14AWG
14AWG
10AWG
G2
G7
G1
G4
10AWG
14AWG
14AWG
14AWG
14AWG
14AWG
14AWG
14AWG
18AWG
18AWG
18AWG
18AWG
18AWG
18AWG
18AWG
18AWG
18AWG
18AWG
14AWG Green/Yellow
xxmm
H-SN-14
HWS-HA-02
A1
A2
A3
B1
B2
B3
1
2
A1
A2
A3
B1
B2
B3
A4
A5
A6
B4
B5
B6
10A
10A
10A
10C
10F
24A
24A
24A
24C
24F
10B
24B
1
2
A1
A2
A3
B1
B2
B3
10D
10D
10G
48D
48D
24G
10H
48H
L120
L220
L140
L240
L340
Note 2
1
2
3
4
5
6
1 Red
2 Orange
3 Black
4 Blue
7 Yellow
8 Brown
H-SN-17
H-SN-14
HWS-HA-02
X12702
1
2
3
Yellow
Orange
4
5
6
Blue
Black
7
8
9
Red
Black
10
1
2
3
Black
Yellow
Red
1
2
3
4
5
6
7
8
9
10
Red
11
12
Orange
Black
Blue
Brown
Black
Yellow
Brown
Yellow
Black
Blue
Black
HWS-HA-02
1
2
3
4
5
6
1
2
3
4
5
6
1
2
3
4
5
6
X12702
1
6
1
6
30
50
30
to G1:CN2
to G1:CN1
to G2:CN02
A
B
C
D
E
A
B
C
D
E
Blue
Blue
Blue
L=20mm
(28AWG)
(28AWG)
(28AWG)
(28AWG)
(22AWG)
(24AWG)
(24AWG)
(24AWG)
(24AWG)
(24AWG)
(24AWG)
(24AWG)
(24AWG)
(24AWG)
(24AWG)
(24AWG)
(24AWG)
(22AWG)
(22AWG)
(26AWG)
M4
M8
M8
All of them are "M4".
CN2
〈結線図〉
40
10H
48H
20.0
Black
Red
Blue
Orange
G07
XG01
All of them are "M4".
All of them are "M4".
All of them are "M4".

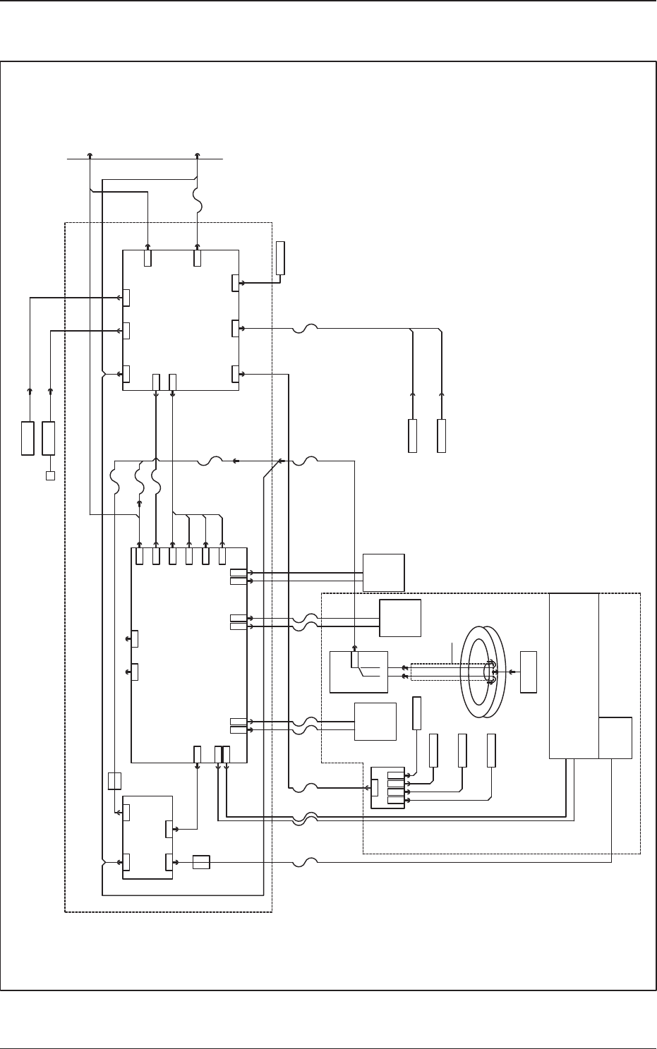
5OM-1610
5-190911-001-(1091603200-1)
High-Speed Head Wiring/Connection Diagram
-X31P1
1-2040558-6
CNP1
POWER
-X331P1
X02
DF1BZ- 8P-2.5DSA
-X25X2
-X131P1
-X25X1
53259-420
X01
POWER
-X3103
B03B-PASK-1N(LF)(SN)
CN3
SEN PWR
CN5
POWER
-X0305
-X13701
-X3701
IL-S-6P
J1
CN6
HLS
-X0306
CN1
HLS
-X2501
-X23701
-X12501
B01
-X25B1
X1
-X14701
B04
B02
B05
B01
B02
-X25B2
-B3106
-B3103
171822-4
171822-4
-B3106
-B3103
CN4
-X2504
-X314B
B07B-PASK-1N(LF)(SN)
CN4B
SEN PWR
-X314C
B07B-PASK-1N(LF)(SN)
CN4C
SEN PWR
-X314D
B07B-PASK-1N(LF)(SN)
CN4D
SEN PWR
CN5
-X3105
CN7
-X0307
HLSDC24V
-B3101
-B3104
-B3105
-B3102
M33
-X312D
1-2040558-3
CN2D
M32
M34
M31
-B0413R
POWER
-X31P2A
1-2040558-3
CNP2A
-X0304
CN4
CN5
-X2505
-B0308
-B0308
POWER
-B0309
-B0309
PCB Height Detection(OP)
CN6
-X2506
CN3
-X2503
-Y0902
-X31P2D
CNP2D
1-2040516-5
-X312B
1-2040558-3
CN2B
-X31P2B
CNP2B
1-2040516-5
-X312C
1-2040558-3
CN2C
-X31P2C
CNP2C
1-2040516-5
CN2A
-X312A
1-2040516-5
CN1A
SSC-NET
CN1B
SSC-NET
B16B-PADSS-F(LF) (SN)
DC9352 DC9352
-X2507
CN7
A31 U25
U03
U37
DF1BZ-10DP-2.5DSA
??? ???
DF1BZ- 4P-2.5DSA
DF1BZ-14DP-2.5DSA
DF1BZ- 6P-2.5DSA DF1BZ- 4P-2.5DSA
DF1BZ- 2P-2.5DSA
IL-S-2PPS-10PE-D4LT2-M1A
53375-0810
B08B-PASK?
IL-S-6P
171822-2
172211-2
171822-6
172211-6
(Lunch Box)
U147
-X31P3
B04B-PASK-1(LF)(SN)
CNP3
BK
172211-2 171822-2
37308-3101-0M0FL
37308-3101-0M0FL
-B0413T
***
*
*
*
*
*
*
*
*
*
*
*
*
*
**
**
*
*
*
*
* * * *
*
* * *
*
*
*
*
U04
*
**
-B0413T
-X10421 -X10422
Linear Measure
Light Reception
Encoder
Linear Measure
Light Emission
DD-Axis Motor
NL-Axis U/D (+)
NL-Axis U/D (-)
NL-Axis U/D Interlock
NL-Axis Motor
Power Supply
Encoder
NS-Axis Position Detection
Slip Ring
Inside of Center Shaft
NS-Axis Motor
Power Supply
Encoder
HL-Axis Motor
Power Supply
Encoder + Brake
Movable Section
Head Section Box Inside
Linear Measure
Multi-axis Amplifier
Ferrite Core
Ferrite Core
HLS PCB
Robot Cable Fixing Panel
Sensor Head
Bad Mark Sensor
HL-Axis U/D (+)
HL-Axis U/D (-)
Air Browing