PTS-NADXHD-06.pdf - 第107页
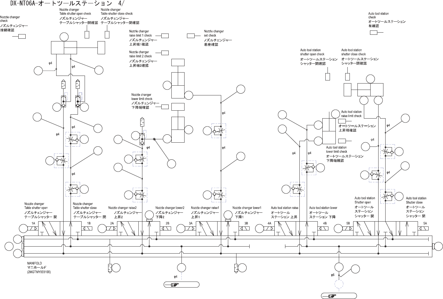
DX-NT06A-AUTO-TOOL ST ATION 4/ DX-NT 06A-オー トツー ルステ ーション 4/ 2UGTMY 000309 No. Drg.No. & Cod e No. QT Y Description Ra ting Re marks 番号 図番 & コード番号 個数 品名 規格 備考 1 H1122 4 4 VA LVE, SOL バルブ SO L SY322 0-5MOZ-M5 2 H6…

Ref.BED
Ref.BED
99
10
41
42
43
1
11
11
11
4
4
4
5
5
36
39
40
9
1 1
3
12
1 2
3
13
31
11
7
4
15 15
5
44
32
4
4
6
4
14
14
34
35
33
4
8
8
16
16
5
36
37
45
11 11
46
DX-NT06A-AUTO-TOOL STATION 4/
2UGTMY000309
106
PTS-NADXHD-06

DX-NT06A-AUTO-TOOL STATION 4/
DX-NT06A-オートツールステーション 4/
2UGTMY000309
No.
Drg.No. & Code No.
QTY
Description
Rating
Remarks
番号
図番
&
コード番号
個数
品名
規格
備考
1
H11224
4
VALVE, SOL
バルブ SOL
SY3220-5MOZ-M5
2
H68688
1
VALVE, SOL
バルブ SOL
SY3420-5MZ-M5
3
S62708
2
SILENCER
サイレンサ
AN05-M5
4
K5339N
8
CONTROLLER, SPEED
コントローラ スピード
AS1311F-M5-04
5
K62035
4
CONTROLLER, SPEED
コントローラ スピード
AS1002F-04
6
S64148
1
CYLINDER, AIR
シリンダ エアー
CDQSB16-45DC-M9PL
7
S63807
1
CYLINDER, AIR
シリンダ エアー
CU16-5D
8
XS03490
2
CYLINDER, AIR
シリンダ エアー
9
H13332
3
VALVE
バルブ
AQ240F-04-00
10
2MGTMY001503
1
CYLINDER, AIR
シリンダ エアー
11
H3146A
6
PLUG
プラグ
M-5P
12
Y60363
1
UNION, ELBOW
ユニオン エルボ
KQ2W04-M5A
13
Y60300
1
UNION, ELBOW
ユニオン エルボ
KQ2W06-M5A
14
Y60181
2
UNION, ELBOW
ユニオン エルボ
KQ2L04-M5A
15
Y60183
2
UNION, HALF
ユニオン ハーフ
KQ2S04-M5A
16
A4067A
2
ELBOW
エルボ
M-3ALU-4
31
2MGTMY004100
1
TUBE
チューブ
32
2MGTMY004202
1
TUBE
チューブ
33
2MGTMY004300
1
TUBE
チューブ
34
2MGTMY004400
1
TUBE
チューブ
35
2MGTMY004502
1
TUBE
チューブ
36
2MGTMY004600
2
TUBE
チューブ
37
2MGTMY004702
1
TUBE
チューブ
39
2MGTMY004900
1
TUBE
チューブ
40
2MGTMY005000
1
TUBE
チューブ
41
2MGTMY005100
1
TUBE
チューブ
42
2MGTMY005200
1
TUBE
チューブ
43
2MGTMY005300
1
TUBE
チューブ
44
2MGTMY008202
1
TUBE
チューブ
45
2MGTMY009900
1
TUBE
チューブ
46
2MGTMY010000
1
TUBE
チューブ
107
PTS-NADXHD-06

B
G
J
J
K
K
L
L
F
G
F
C
D
E
A
M
A
A
B
C
M
M
D
D
E
1
2
3
4
10
13
18
19
19
20
20
21
21
22
22
23
24
24
24
25
26
27
26
27
26
27
26
27
27
28
29
30
31
32
33
34
35
36
37
38
39
40
41
54
56
56
61
62
72
73
74
75
75
76
76
77
78
79
80
81
82
83
84
85
86
87
88
89
90
91
92
93
95
96
96
99
100
7
8
9
25
27
25
27
73
61
62
61
62
61
62
94
95
101
102
103
103
104
105
104
105
104
105
106
107
106
107
108
109
110
111
112
114
115
103
55
55
57
57
118
119
120
133
123
123
124
124
124
124
125
129
130
131
2
3
6
11
12
14
15
16
17
64
65
63
25
27
43
44
42
45
46
47
48
49
50
50
51
51
52
52
52
52
53
53
94
93
97
98
98
99.1
123
123
128
132
134
106
107
88.1
126
127
DX-NT07A-AUTO-TOOL STATION 1/
2UGTMY000406
108
PTS-NADXHD-06