PTS-NADXHD-06.pdf - 第29页
このページはブランクページです This page is intentionally blank. 此页是空白页 29 PTS-NADXHD-06

DynaHead (DX) 4/
ダイナヘッド (DX) 4/
2UGKHL000566
No.
Drg.No. & Code No.
QTY
Description
Rating
Remarks
番号
図番
&
コード番号
個数
品名
規格
備考
61
XK04101
1
COUPLING
カップリング
62
2MGKHL145300
1
BALL SCREW
ボールネジ
63
2MGKHL179100
4
BOLT, HEX SOCKET
ボルト 六角穴
64
W1020H
4
WASHER, LOCK
ワッシャ スプリング
2.5M/M
65
2AGKHL000805
1
SLIDER
スライダ
66
PM04723
2
NUT
ナット
67
H4897A
1
BEARING
ベアリング
AC5-14DBSP2
68
H4581B
1
BEARING, MINIATURE
ベアリング ミニチュア
694ZZ
69
K5170C
1
SCREW, C/R COUNTERSUNK
小ネジ 十穴皿
M02X004(3
カシロ
)
70
2MGKHL009500
1
WASHER
ワッシャ
71
2MGKHL009600
1
RETAINER, BEARING
押え ベアリング
72
H5425L
3
BOLT, HEX SOCKET
ボルト 六角穴
M02X005(3
カ
シロ
)
73
W1106B
3
WASHER, LOCK
ワッシャ スプリング
2M/M(3
カ
シロ
)
74
2MGKHL144502
1
ARM
アーム
75
2MGKHL180100
1
PIN
ピン
77
N60658
1
SCREW, HEX SOCKET SET
ネジ 六角穴止め
M03X004
クボミサキ
(3
カ
シロ
)
78
2MGKHL096501
2
STOPPER
ストッパ
79
2MGKHL026004
1
SHAFT
シャフト
80
H4430A
2
BEARING, BALL
ベアリング ボール
LM3
81
2MGKHL008802
1
COLLAR
カラー
82
K51716
1
SCREW, C/R TRUSS
小ネジ 十穴トラス
M02X003(3
カ
シロ
)
83
N1079E
1
NUT, HEX
ナット 六角
M02(3
カ
シロ
)
84
W1106B
1
WASHER, LOCK
ワッシャ スプリング
2M/M(3
カ
シロ
)
85
W1108A
1
WASHER, FLAT
ワッシャ 平
2M/MX0.3X4.3(3
カシロ
)
86
H5065B
1
BALL, STEEL
ボール スチール
2.5[mm]
87
PZ21491
1
SPRING
スプリング
88
W1108B
1
WASHER, FLAT
ワッシャ 平
3M/MX0.5X7(3
カシロ
)
89
K52543
1
SCREW, C/R FLAT
小ネジ 十穴平
M03X004
ヒラトウ
H=1.0
ニッケル
90
2MGTHA062200
1
CAM FOLLOWER
カムフォロア
95
2MGKHL097801
1
BKT
BKT
96
H66911
2
BOLT, HEX SOCKET
ボルト 六角穴
M02X003(3
カ
シロ
)
97
W1106B
2
WASHER, LOCK
ワッシャ スプリング
2M/M(3
カ
シロ
)
98
2MGKHL093201
1
SEAL
シール
28
PTS-NADXHD-06
このページはブランクページです
This page is intentionally blank.
此页是空白页
29
PTS-NADXHD-06

P1
P2
Q1
Q2
Ref.1/
A
A
P1
P2
Q1
Q2
B
B
P3
P3
P4
P4
C
D
C
D
1
2
3
4
10
11
12
14
15
16
17
18
19
20
21
22
24
25
27
30
31
32
33
34
35
36
37
38
38
39
39
50
51
52
53
54
55
56
57
58
59
81
82
83
83
84
84
85
86
87
87
88
88
89
89
90
90
94
95
95
96
96
100
101
102
103
104
105
106
108
110
111
107
118
119
113
114
115
116
29
13
61
64
65
62
63
66
67
72
73
73
75
75
76
76
77
77
77
78
68
69
70
71
41
42
42
43
43
44
45
44
45
44
45
44
45
46
47
48
49
5
6
40
60
9
8
9
8
7
21.1
79
80
97
97
99
98
94
93
94
91
121
122
123
124
125
126
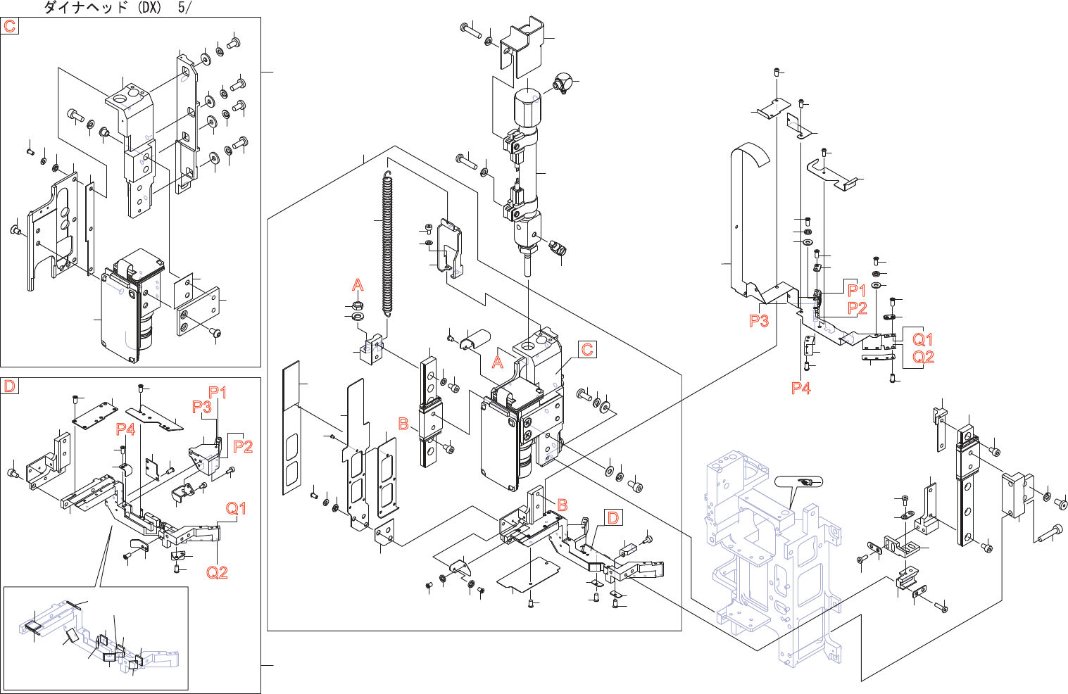
DynaHead (DX) 5/
2UGKHL000566
30
PTS-NADXHD-06