OM-1787-001w_GS-CU620.pdf - 第63页
47 OM-1787 15.4 电路图 1504-001- (31015WN-1001) 15.4 电路图 双轨搬送模块电路图 1 2 3 4 5 6 7 8 A B C D E F NL-LA2 NL-LA1 M42 M41 X2 24A3 X1 24A6 CN1 UP CN2 DN CN3 T U08 CONV HSIO STL T_L M M High-Speed IO Bank Connector(B1) High-Speed …

46
OM-1787
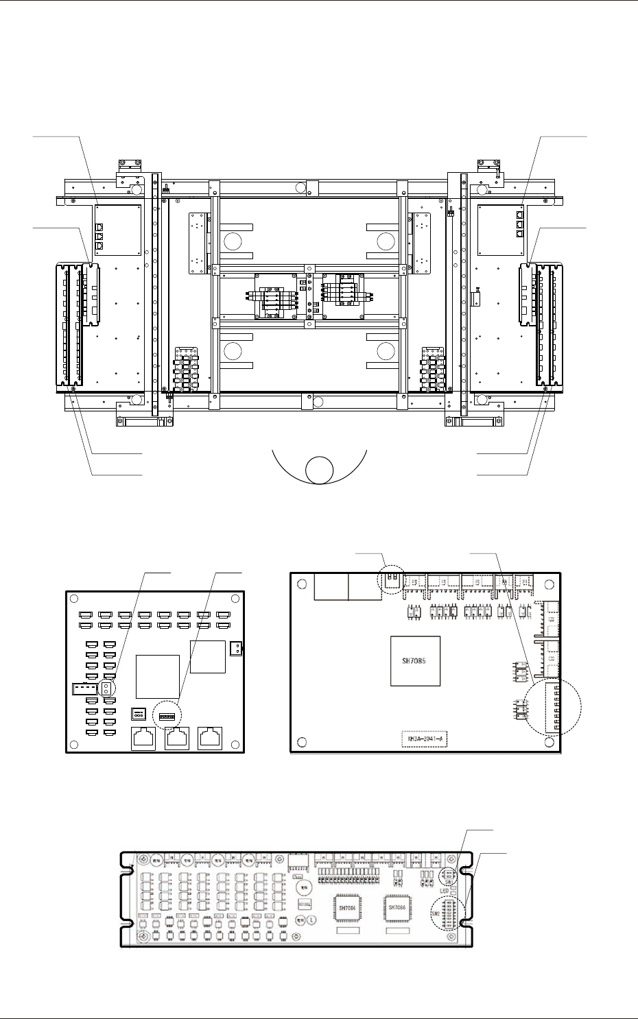
15.3 元件配置图
传送带部布局
1504-001
15.3 元件配置图
U08 UB95 U09 UB95
A16 D4460 A16 D4460
A14 D4920
A15 D4920
A12 D4920
A13 D4920
JP1
CN39
CN38
CN41
CN40
CN43
CN42
CN45
CN44
CN31
CN30
CN33
CN32
CN34
CN35
CN37
CN36
CN11
CN10
CN12
CN13
CN14
CN15
CN16
CN17
CN18
CN19
CN20
CN21
CN22
CN23
CN24
CN25
CN1
CN2 CN3
UB95 D4460
D4920
SW1
SW1 SW2
SW1
SW2

47
OM-1787
15.4 电路图
1504-001- (31015WN-1001)
15.4 电路图
双轨搬送模块电路图
1 2 3 4 5 6 7 8
A
B
C
D
E
F
NL-LA2NL-LA1
M42M41
X2
24A3
X1
24A6
CN1
UP
CN2
DN
CN3
T
U08
CONV HSIO STLT_L
M M
High-Speed IO
Bank Connector(B1)
High-Speed I/O(UP)
U85 High-Speed I/O Hout
High-Speed I/O(T)
U85 High-Speed IO Host
AE-LINK CH1
24A6
24A3
48D
XCV-L
A12
PWR
M M M M M M
M43
NL-LB1
M44
NL-LB2
M53
NA-LA1
M54
NA-LA2 NA-LB1 NA-LB2
AE LINK
N1 N2
A13
PWR
AE LINK
N1 N2
M52M51
NR-LA2NR-LA1
M46M45
M M
A14
PWR
M MM M M
M47
NR-LB1
M57
NR-LB2
M48
NA-W1 NA-W3 NA-W2
AE LINK
N1 N2
A15
PWR
AE LINK
N1 N2
M56M55
A16
NA-BAL
M49 M50
NA-BAR
M M
AE LINK
N1 N2
PWR
A63F Cutter Driber(B1)
AE-LINK CH1
X2
24A3
X1
24A6
CN1
UP
CN2
DN
CN3
T
Transfer Section
Load Sensor
High-Speed IO
U85 High-Speed IO Host
AE-LINK CH2
24A6
24A3
48D
XCV-R
A17
M M
AE LINK
N1 N2
PWR
A63F Cutter Driber(B2)
AE-LINK CH2
NA-BBL
M59 M60
NA-BBR
IO PCB
U09
CONV HSIO STLT_R
IO PCB
Stepping Motor Driver Stepping Motor Driver Stepping Motor Driver Stepping Motor Driver
Stepping Motor Driver Stepping Motor Driver
1 2 3 4 5 6 7 8
A
B
C
D
E
F
Transfer Section
Load Sensor

48
OM-1787
15.4 电路图
1504-001- (31012WN-1502)
马达驱动器连接回路
1 2 3 4 5 6 7 8
A
B
C
D
E
F
1
2
3
CN6
4
2
4
3
N1
2
4
3
N2
ALM-
STP-
ALM+
STP+
1
2
3
4
CN1
:B1
X1206
GND(SG)
COM B
+V
COM A
COM B
+V
COM A
XN1
CV+
:A1
GND(B)
MV+
GND(D)
:A4
:B4
1
1
GND(SG)
XN2
Stepping Motor Driver
A12
XCV-L
G5S
Main Machine
PF
:2
:3
:1
:4
XAE
1
2
3
CN6
4
2
4
3
N1
2
4
3
N2
ALM-
STP-
ALM+
STP+
1
2
3
4
CN1
X1306
GND(SG)
COM B
+V
COM A
COM B
+V
COM A
XN1
CV+
GND(B)
MV+
GND(D)
1
1
GND(SG)
XN2
Stepping Motor Driver
A13
1
2
3
CN10
4
2
4
3
N1
2
4
3
N2
ALM-
STP-
ALM+
STP+
1
2
3
4
CN9
X1610
GND(SG)
COM B
+V
COM A
COM B
+V
COM A
XN1
1
1
GND(SG)
XN2
Stepping Motor Driver
A16
:2
:3
:1
:4
XAE-CT
:A5
:B5
5
6
MGND
MGND
CGND
MV+
MV+
CV+
1
2
3
CN6
4
2
4
3
N1
2
4
3
N2
ALM-
STP-
ALM+
STP+
1
2
3
4
CN1
X1406
GND(SG)
COM B
+V
COM A
COM B
+V
COM A
XN1
CV+
GND(B)
MV+
GND(D)
1
1
GND(SG)
XN2
Stepping Motor Driver
A14
1
2
3
CN6
4
2
4
3
N1
2
4
3
N2
ALM-
STP-
ALM+
STP+
1
2
3
4
CN1
X1506
GND(SG)
COM B
+V
COM A
COM B
+V
COM A
XN1
CV+
GND(B)
MV+
GND(D)
1
1
GND(SG)
XN2
Stepping Motor Driver
A15
1
2
3
CN10
4
2
4
3
N1
2
4
3
N2
ALM-
STP-
ALM+
STP+
1
2
3
4
CN9
X1710
GND(SG)
COM B
+V
COM A
COM B
+V
COM A
XN1
1
1
GND(SG)
XN2
Stepping Motor Driver
A17
5
6
MGND
MGND
CGND
MV+
MV+
CV+
:B1
:A1
:A4
:B4
XCV-R
:A5
:B5
24A6
10
48D
10
48D
10
:2
:3
:1
:4
XAE
:2
:3
:1
:4
XAE-CT
to A63F-CN12
[DC/02/2B]
COM A
COM B
10
24A6
from U85-2CH
[F-/03/7C]
24A6
10
48D
10
48D
10
COM A
COM B
10
24A6
to A63B-CN12
[DC/01/2B]
COM A
COM B
10
24A6
from U85-1CH
[F-/03/7B]
COM A
COM B
10
24A6
XAE1CH
XAE-CT
XAE2CH
XAE-CT
XCV-L XCV-R
1 2 3 4 5 6 7 8
A
B
C
D
E
F
G5S Main Machine PF
G5S
Main Machine PF