JM-20_程序员2.pdf - 第213页
操作手册 Ⅱ 2- 180 1 )在菜单中选 择复制生产 程序后,将打开 [ 打开文件 ] 画面。 2 )请选择要 展开的 (展开源)生产程 序,再按 [ 打开 ] 按钮。

操作手册Ⅱ
2-179
(19)
复制生产程序
采用复制功能,可将2种以上的生产程序进行结合。
A
B
在展开复制的生产程序中(上图的B),贴片数据中使用基准领域标记时,程序(B)的基板数据
的BOC标记将被当作基准领域标记处理。
<复制方法>
① 读入作为基准的生产程序。(上图、A 基板)
② 指定(读入)对电路展开复制的生产程序。(上图,B 基板)
③ 设定作为基准的生产程序的基板基准位置(原点)与展开复制的生产程序的基板基准位置(原
点)之间的差距(偏移 X、Y、θ)。
④ 展开复制。
基准数据
展开源数据
展开后的基板构成
单板基板
单板基板
单板基板
矩阵电路板
单板基板
非矩阵电路板
单板基板
复数基准电路
单板基板
矩阵电路板
单板基板
单板基板
矩阵电路板
当单板基板或矩阵电路板分割数与电路间
距都相等,以及偏移量 θ 为 0°、180°时,可
作为矩阵电路板展开。
*1
非矩阵电路板
单板基板
复数基准电路
单板基板
非矩阵电路板
单板基板
单板基板
矩阵电路板
单板基板
非矩阵电路板
单板基板
复数基准电路
单板基板
*1: 当可在矩阵电路板中展开时,会显示在矩阵电路板中展开,还是在单板基板中展开的询问提
示信息。
另外,当电路重合时,会显示在矩阵电路板中展开,还是在单板基板中展开的询问提示信息。

操作手册Ⅱ
2-180
1)在菜单中选择复制生产程序后,将打开[打开文件]画面。
2)请选择要展开的(展开源)生产程序,再按[打开]按钮。

操作手册Ⅱ
2-181
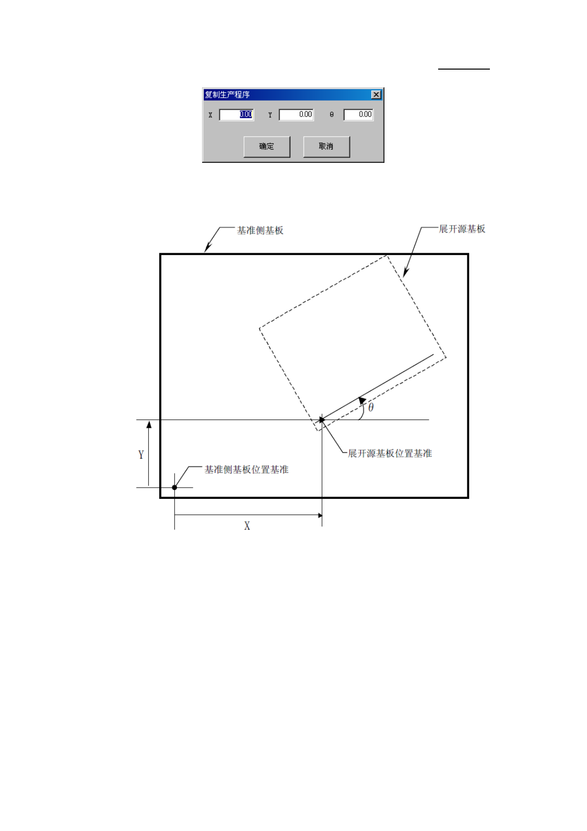
读入文件后,将打开如下画面,要求输入到基准基板位置的偏移量,请参见下述偏移量定义,并输入
偏移量。
偏移量的定义如下图所示。