OM-1273-004_w.pdf - 第190页
AJK-ML T-ID 5-27 4.2ElectricalCircuitDiagramsBlockCongurationDrawingR BlockCongurationDrawingR 0706-002 -(M806WBR--5001) I/O I/O I/O SSCNET SSCNET SSCNET U83 MR-MC10 MR-MC10 U82 U84 MR-MC10 I/O SSCNET U90 MR…

AJK-MLT-ID
5-26
4.2 Electrical Circuit Diagrams
BlockCongurationDrawingL
4.2ElectricalCircuitDiagramsBlockCongurationDrawingL
0706-002 -(M806WBL--5001)
I/OI/OI/O SSCNETSSCNET SSCNET
U83
MR-MC10MR-MC10
U82U84
MR-MC10
I/OSSCNET
U90
MR-MC10
HLS
-X90C1
-X90C2
-K301-K302
-Q101-K101
-K102
-Q201-K201-K202
-K202 -K201 -Q201
-K102
-K101 -Q101
-K302 -K301
CH2 CN1
CH1 CN1
CH2 CN2
CH1 CN2
-X8401
-X8403
-X8301
-X8303
-X8201
-X8203
-X9003
-X9001
HLS
3
M
3
M
3
M
3
M
3
M
3
M
PCI BUS
SDD
U86U85
HLSB-PCI
1 2
HLSC1
+5V
+3.3V
+5V
+12V
-12V
(-5V)
VGACOM1
CPU2-B
U81
/MS
BASE-T
SW+IO(UB26)
16/16 <U>
16/16 <D>
SW+IO(UB26)
IO(UB14)
16/16
32/16
24A
-M01
-M03
-M02
ILB(UA54)
TR-U04:48,49
TR-U05:50
TR-U06:51
TR-U07:52
-M02
-M03
-M01
ILB(UA54)
24A
32/16
16/16
IO(UB14)
SW+IO(UB26)
16/16 <D>
16/16 <U>
SW+IO(UB26)
TR-U04:48,49
TR-U05:50
TR-U06:51
TR-U07:52
AC200V
-24B1L
(L121,221,321)
3φ AC200V
To HUB (U72)
Control (STAGE1)
Feeder Serial
(6 Axes s2ch)
Sensor
Solenoid
Valve,
etc.
Positioning
(UA14)
U09
Relay Circuit
(Safety Circuit,
etc.)
Sensor
Solenoid
Valve, etc
Multi-Layer Tray
(at installation of Stage B)
Traverse
Elevator 2
Elevator 1
With Brake
With Brake
Elevator 1
(Lower)
Elevator 2
(Upper)
Traverse
Multi-Layer Tray
(at installation of Stage B)
(6 Axes s2ch)
(6 Axes s2ch)
(6 Axes s2ch)
Sensor
Solenoid
Valve,
etc.
Positioning
(UA14)
U09
Sensor
Solenoid
Valve, etc
Multi-Layer Tray
(at installation of Stage A)
Multi-Layer Tray
(at installation of Stage A)
Elevator 1
(Lower)
Elevator 2
(Upper)
Traverse
Traverse
Elevator 2
Elevator 1
With Brake
With Brake
Relay Circuit
(Safety Circuit,
etc.)
-A01
-A03-A02
-A02 -A03 -A01

AJK-MLT-ID
5-27
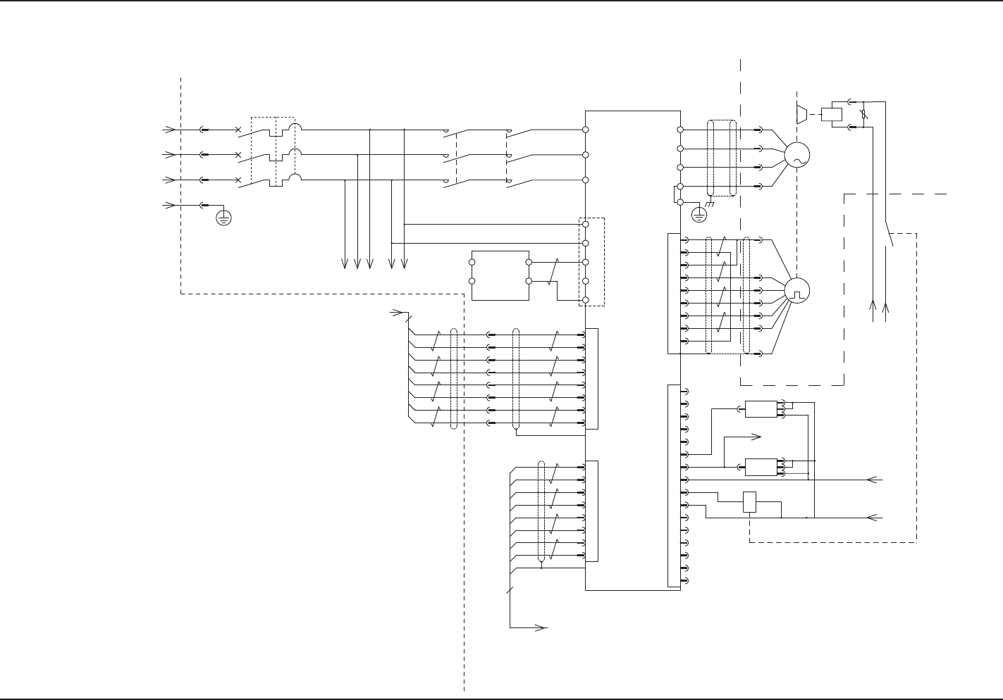
4.2ElectricalCircuitDiagramsBlockCongurationDrawingR
BlockCongurationDrawingR
0706-002 -(M806WBR--5001)
I/OI/OI/O SSCNETSSCNET SSCNET
U83
MR-MC10MR-MC10
U82U84
MR-MC10
I/OSSCNET
U90
MR-MC10
HLS
-X90C1
-X90C2
-K301-K302
-Q101-K101
-K102
-Q201-K201-K202
-K202 -K201 -Q201
-K102
-K101 -Q101
-K302 -K301
CH2 CN1
CH1 CN1
CH2 CN2
CH1 CN2
-X8401
-X8403
-X8301
-X8303
-X8201
-X8203
-X9003
-X9001
HLS
3
M
3
M
3
M
3
M
3
M
3
M
PCI BUS
SDD
U86U85
HLSB-PCI
1 2
HLSC1
+5V
+3.3V
+5V
+12V
-12V
(-5V)
VGACOM1
CPU2-B
U81
/MS
BASE-T
-A01-A03-A02
SW+IO(UB26)
16/16 <U>
16/16 <D>
SW+IO(UB26)
IO(UB14)
16/16
32/16
24A
-M01
-M03
-M02
ILB(UA54)
TR-U04:48,49
TR-U05:50
TR-U06:51
TR-U07:52
-M02
-M03
-M01
-A02 -A03 -A01
ILB(UA54)
24A
32/16
16/16
IO(UB14)
SW+IO(UB26)
16/16 <D>
16/16 <U>
SW+IO(UB26)
TR-U04:48,49
TR-U05:50
TR-U06:51
TR-U07:52
AC200V
-24B1R
(L121,221,321)
3φ AC200V
To HUB (U72)
Control (STAGE2)
Feeder Serial
(6 Axes s 2ch)
(6 Axes s 2ch)
(6 Axes s 2ch)
(6 Axes s 2ch)
Sensor
Solenoid
Valve, etc
Relay Circuit
(Safety Circuit,
etc.)
Multi-Layer Tray
(at installation of Stage C)
Multi-Layer Tray
(at installation of Stage C)
Elevator 1
(Lower)
Elevator 2
(Upper)
Traverse
Traverse
Elevator 2
Elevator 1
With Brake
With Brake
Multi-Layer Tray
(at installation of Stage D)
Multi-Layer Tray
(at installation of Stage D)
Elevator 1
(Lower)
Elevator 2
(Upper)
Traverse
Traverse
Elevator 2
Elevator 1
With Brake
With Brake
Sensor
Solenoid
Valve, etc
Relay Circuit
(Safety Circuit,
etc.)
Sensor
Solenoid
Valve, etc
Positioning
(UA14)
U09
Positioning
(UA14)
U09
Sensor
Solenoid
Valve, etc

AJK-MLT-ID
5-28
4.2 Electrical Circuit Diagrams Elevator 1 (Lower) M Circuit Diagram L
Elevator 1 (Lower) M Circuit Diagram L
0706-002 -(M806WBL--5002)
U
3
M
SSG
-M02
PE
PE
CN3
2
RD
TD*
TD
RD*
12
7
14
4
EMG
LG
D
C
L21
CN1A
11
1
P
LG
L1
L2
L3
L11
U
W
V
EMG*
CN1B
17
-A02
-X0202
-X0203
-M02 :1
:2
:3
:4
-X0201A
-X0201B
20
-M02P
:5
:4
:2
:1
:8
:1
:9
:6
:5
1511
K510
-24G1-10G
FG
FG
17
EMG*
LG
1
11
LG
EMG
4
14
7
12
RD*
TD
TD*
RD
2
-M02
K510
3 7
-L321
-L221
-L121
-K202
1 2
3 4
65
-K201
-Q201
56
34
2 1
-L332
-L232
-L132
+
-
OUT
-B0201
L
L
-B0202
OUT
+
-
20
-24G1
-10G
PE
-X90C1
:9
:12
:4
:2
:10
:7
:15
-X501
:1
:2
:3
:1
-L131
-L231
-L331
-L133
-L233
-L333
P
C
G3
G4
TxD
LG
11
12
MO1
LG
LG
SD
MO2
COM
VDD
MBR
4
1
5
14
10
13
11
(LSN)DWN
(LSP)STP
RxD
LG
DOG
SG
9
19
1
2
3
20
LG
1
P5
MD
19
16
6
MR
7
17
MRR
MDR
SD
11
LG
P5
20
LG
12
From CPU2-L Motion Controller
0 (-U90) SSCNET3
CH1 (-X9001)
GX Main Body Side
F3 200 V AC
(From Q201)
Regeneration
Unit 1
EV-2 Axis X0301A
EV-1 Axis
Elevator Movable
Section
Brake
Limit (+)
To Elevator
(Upper)
-X0303: 19
Magazine U/D
Approach Check
To EV-2 Axis
Plate