02. NXT Feeder Part list II.pdf - 第137页
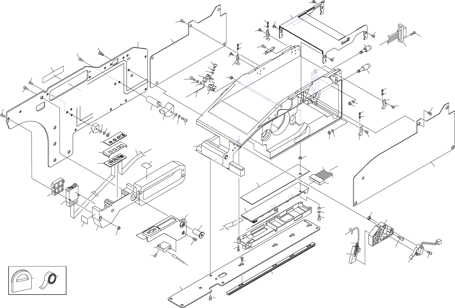
REEL HOLDER W88 15inch リール ホルダ W88 15インチ No. Drg.No. & Code No. QTY Description Rating Materials Remarks 番号 図番 & コード番号 個 数 品名 規格 材質 備考 1 AA2GN08 1 HOLDER, REEL ホルダ リール OT 2 2MDLFB000100 1 HOLDER, REEL ホルダ リール AL…

21
5
4
4
6
5
6
7
22
9
10
11
12
12
8
22
3
4
4
15
16
15
16
14
14
1
2
࣮ࣜࣝ࣍ࣝࢲ:ࣥࢳ
5((/+2/'(5:LQFK
136
PTS-FIFEEDER-09JE

REEL HOLDER W88 15inch
リール ホルダ W88 15インチ
No. Drg.No. & Code No. QTY Description Rating Materials Remarks
番号 図番 & コード番号 個数 品名 規格 材質 備考
1 AA2GN08 1 HOLDER, REEL ホルダ リール OT
2 2MDLFB000100 1 HOLDER, REEL ホルダ リール AL
3 PB55162 1 RETAINER, REEL 押え リール FE
4 K5357M 4 SCREW, HEX SOCKET COUNTERSUNK 小ネジ 六角穴皿 M03X006 FE
5 PM36851 2 SPACER スペーサ FE
6 K5256K 2 SCREW, HEX SOCKET BUTTON 小ネジ 六角穴ボタン M03X015 FE
7 PB08305 1 ARM アーム FE
8 K5359E 2 SCREW, HEX SOCKET COUNTERSUNK 小ネジ 六角穴皿 M04X008 FE
9 PM22383 1 PIN ピン FE
10 K5357T 1 SCREW, HEX SOCKET COUNTERSUNK 小ネジ 六角穴皿 M03X008 FE
11 PM45091 1 PIN, PIVOT ピン 支点 FE
12 W1007H 2 WASHER ワッシャ WW-26(ウェーブ ワッシャ) OT
14 PM011H1 2 SPACER スペーサ FE
15 K5256E 2 SCREW, HEX SOCKET BUTTON 小ネジ 六角穴ボタン M03X010 FE
16 W1021A 2 WASHER, LOCK ワッシャ スプリング 3M/M FE
21 PZ27762 4 BOLT ボルト OT
22 PX02071 2 SEAL, BAR CODE シール バーコード OT unit serial number
137
PTS-FIFEEDER-09JE

୧
㠃
ࢸ
࣮
ࣉ
15
mm x
20
mm
NW-5
10mm x 55mm
AA
BB
CC
DD
DD
AA
BB
CC
1
8
5
55
56
6
7
11
9
10
48
12
13
15
16
17
18
21
64
60.2
60.1
67
24
25
62
27
28
29
29
32
32
63
32
30
33
34
3
47
24
45
46
49
50
51
52
53
67
4
74
76
72
73
75
68
69
14
66
28
65
80
79
35
38
37
2
32
43
77
61
60
58
57
59.1
59.3
59.4
59.2
59
42
30
28
28
22
23
19
20
71
54
31
31.1
31.1
31
31.1
31
31.1
31
36
44
60.3
70
ࣇ࣮ࢲ:
)(('(5
:
AA4EN10
138
PTS-FIFEEDER-09JE