02. NXT Feeder Part list II.pdf - 第95页
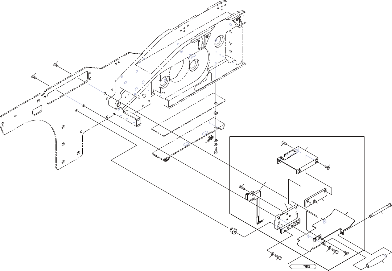
FEEDER W44c 3/3 フィーダ W44c 3/3 AB10403 No. Drg.No. & Code No. QTY Description Rating Materials Remarks 番号 図番 & コード番号 個 数 品名 規格 材質 備考 1 AA8GM00 1 SENSOR センサ OT 2 PB03ER1 1 GUIDE ガイド FE 3 H5274A 1 BOLT, HEX SOCKET …

HH
GG
Ref.2/
HH
2
3
4
5
6
7
7
8
10
11
9
1
12
15
16
20
21
22
AB10403
ࣇ࣮ࢲ:F
)(('(5
:F
94
PTS-FIFEEDER-09JE

FEEDER W44c 3/3
フィーダ W44c 3/3 AB10403
No. Drg.No. & Code No. QTY Description Rating Materials Remarks
番号 図番 & コード番号 個数 品名 規格 材質 備考
1 AA8GM00 1 SENSOR センサ OT
2 PB03ER1 1 GUIDE ガイド FE
3 H5274A 1 BOLT, HEX SOCKET ボルト 六角穴 M03X006 FE
4 W1021A 1 WASHER, LOCK ワッシャ スプリング 3M/M FE
5 PB04EX0 1 GUIDE, TAPE ガイド テープ FE
6 PB04EB0 1 PLATE プレート FE
7 K5357G 4 SCREW, HEX SOCKET COUNTERSUNK 小ネジ 六角穴皿 M03X004 FE
8 PM0D1H0 1 BKT, SENSOR BKT センサ AL
9 K5357H 2 SCREW, HEX SOCKET COUNTERSUNK 小ネジ 六角穴皿 M03X005 FE
10 PZ48490 1 SENSOR センサ OT
11 K5175N 2 SCREW, C/R PAN 小ネジ 十穴鍋 M02X003 ステンレス FE
12 K5357M 1 SCREW, HEX SOCKET COUNTERSUNK 小ネジ 六角穴皿 M03X006 FE
15 H5274A 1 BOLT, HEX SOCKET ボルト 六角穴 M03X006 FE
16 W1021A 1 WASHER, LOCK ワッシャ スプリング 3M/M FE
20 PJ03553 1 ROLLER ローラ PL
21 PM90441 1 PIN ピン FE
22 K5357H 1 SCREW, HEX SOCKET COUNTERSUNK 小ネジ 六角穴皿 M03X005 FE
95
PTS-FIFEEDER-09JE

5
5
9
21
6
6
11
12
12
22
3
14
4
4
4
4
16
14
15
15
16
7
22
10
8
1
2
࣮ࣜࣝ࣍ࣝࢲ:Fࣥࢳ
5((/+2/'(5:FLQFK
96
PTS-FIFEEDER-09JE