JX-350说明书.pdf - 第35页
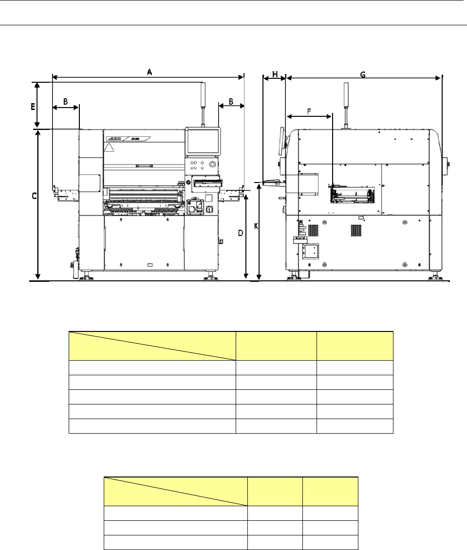
第 1 部 基本篇 第 1 章 装置概要 1-19 1-3 机械规格 1-3-1 机械尺寸与重量 ( 1 )机械尺寸 单位 :mm 基板规格 尺寸 标准规格 长尺寸规格 A (传送长度 ) 1,920 2,520 B (传送出量 ) 260 560 E (信号灯高度) 470 470 F (从护罩前面至基板传送通道) 484 484 G 装置内侧(不 含突起部分) 1,580 1,580 ※上述尺寸的公差为± 5m m 。 单位: mm…

第 1 部 基本篇 第 1 章 装置概要
1-18
(3)各种元件的最小元件宽度(D)
1)方型芯片 2)圆筒形芯片(Melf) 3)铝电解电容
4) SOT 5)SOP 6) SOJ
7)QFP 8)PLCC 9) BQFP
10)TSOP 11)TSOP2 12)BGA
13)网络电阻 14)微调电容 15)单向引脚连接器
16)鸥翼式插座
J 引脚插座
带减震器的插座
A D
A
D
W
D
A
D = A
A
D
A
D
A
D
A
D
A
A
D = A
A
D
A
D
A
D
A
D = A
D
A
A
D = A + 0.5mm
A
D = A

第 1 部 基本篇 第 1 章 装置概要
1-19
1-3 机械规格
1-3-1 机械尺寸与重量
(1)机械尺寸
单位:mm
基板规格
尺寸
标准规格 长尺寸规格
A(传送长度) 1,920 2,520
B(传送出量) 260 560
E(信号灯高度) 470 470
F(从护罩前面至基板传送通道) 484 484
G 装置内侧(不含突起部分) 1,580 1,580
※上述尺寸的公差为±5mm。
单位:mm
传送高度
尺寸
900mm 950mm
C(从地面至护罩上面) 1,500 1,550
D(从地面至传送带上面) 900 950
K(从地面至键盘底面) 895 945
※上述尺寸的公差为±5mm。
(2)主机重量
1,670kg
※上述重量由于不含选购项类,因此重量误差为 3%。

第 1 部 基本篇 第 1 章 装置概要
1-20
1-3-2 贴片精度
(1)贴片精度(X,Y)
不同种类的贴片精度,请见下表。不同的元件,因激光校正检测部位有边界、或模部有毛边等,
或对吸取部位的检查部位不固定,有的精度会低于下列精度。
贴片精度 XY (激光识别) 单位:
μ
m
元件类型
贴片精度
(使用基板基准标记时)
方形芯片 ±50(Cpk≧1)
圆筒型芯片(Melf) ±100
SOT ±150 (注1)
铝电解电容 ±300
SOP、TSOP
引脚直角方向:±150
(一侧毛边 150
μ
m 以下)(注 1)
引脚平行方向:±200
PLCC、SOJ ±200
QFP
(间距 0.8 以上)
±100 (注1)
QFP
(间距 0.65)
±50 (注 1)
BGA ±100
其他大型元件 ±300 (注2)