KE-2070_2080_InstructionManual_C_Rev01.pdf - 第832页
第 2 部 功能详细篇 第 13 章 程序补充 13-1 第 13 章 程序补充 13-1 元件尺寸图例 · 方形芯片 · 圆筒形芯片 · 铝电解电容 外形尺寸 横 外形尺寸 纵 元件高度 外形尺寸 横 外形尺寸 纵 元件高度 外形尺寸 横 外形尺寸 纵 元件高度 引脚长度 引脚宽度 +侧 -侧

第2部 功能详细篇 第12章 选项元件
12-42
◇操作选项中因选中“发生无元件时暂停”而停止时将显示图 12-10-2-6。
图 12-10-2-6 无元件对话框
◇验证检查失败时显示下图 12-10-2-7。
图 12-10-2-7 询问对话框
选择<是>时,会对检查失败的供料器元件进行再次检查。
选择<否>时,则对下一次发生无元件的供料器的元件进行验证检查,或转为生产再开始。
在操作选项中把“无元件暂停后,重新运行时开始时测量高度”、“无元件暂停后,重新
运行时验证元件”2 项都选中时,要先对全部对象元件进行高度测量,之后再进行验证检查。
也不会进行高度检查和验证的交叉检查。
元件高度测量失败的元件,即使是验证检查的对象也不会进行验证检查。
L

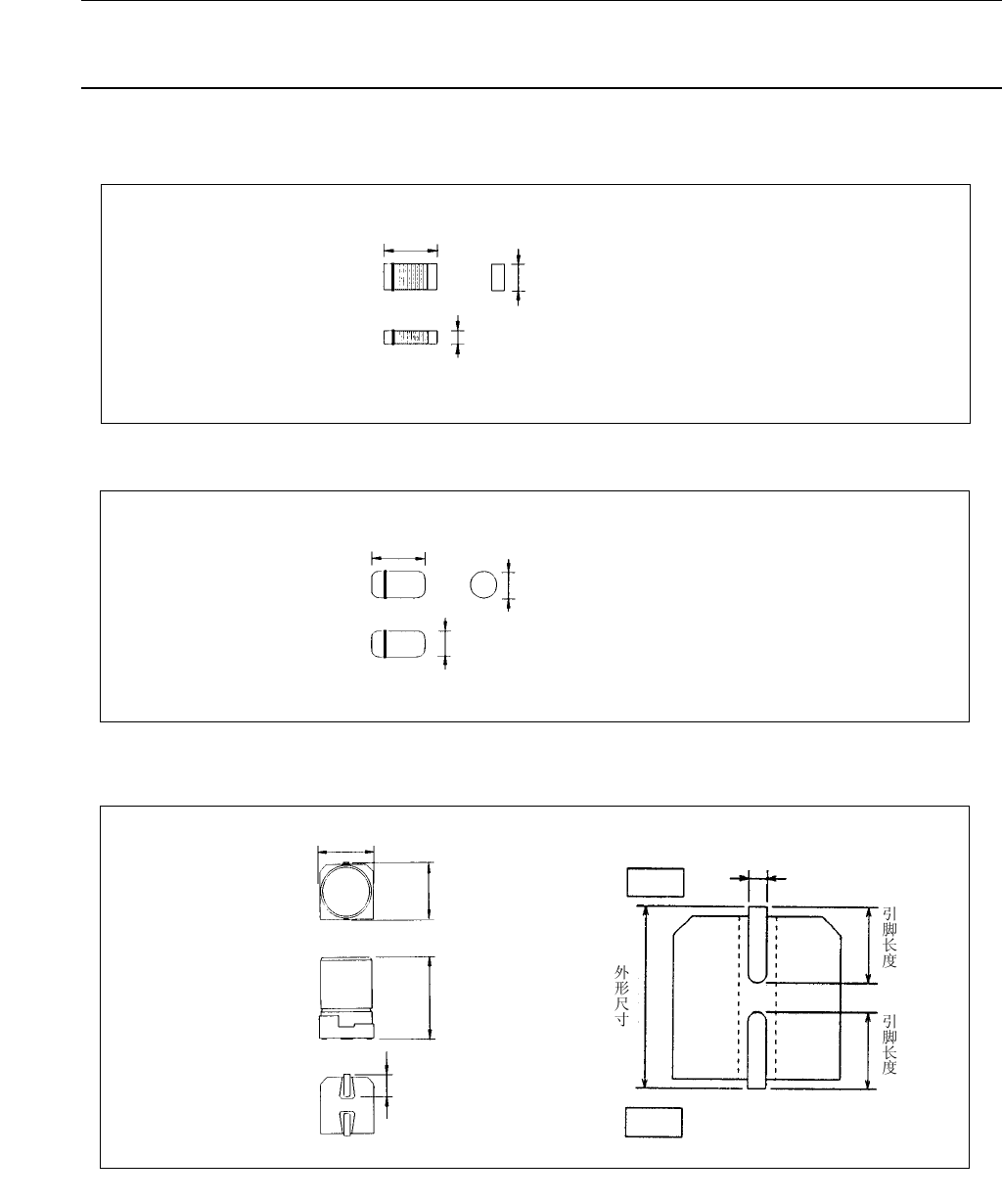
第 2 部 功能详细篇 第 13 章 程序补充
13-1
第 13 章 程序补充
13-1 元件尺寸图例
· 方形芯片
· 圆筒形芯片
· 铝电解电容
外形尺寸 横
外形尺寸 纵
元件高度
外形尺寸 横
外形尺寸 纵
元件高度
外形尺寸 横
外形尺寸 纵
元件高度
引脚长度
引脚宽度
+侧
-侧

第 2 部 功能详细篇 第 13 章 程序补充
13-2
· SOT
· SOP
· SOP(带有散热片的类型)
外形尺寸 横
外形尺寸 纵
元件高度
外形尺寸 横
外形尺寸 纵
元件高度
引脚宽度
引脚高度
引脚宽度间距
外形尺寸 横
外形尺寸 纵
元件高度
引脚宽度
引脚宽度间距
散热片
引脚高度