Plan_HF3_14_20_en line 1电路.pdf - 第116页
Pag e = C1 HF =HF +C 1/900 520 Modificati on Date Na m e No rm Check. Proj. Origin Date Crea. f. schb ERSA DIC 18 .0 6. 200 9 =HF +C 1/515 133 953- V00 Ot to-Schott-Straße 5 97 87 7 W ertheim Gm bH Pr oj e c t name 14:15…

Page
=
C1
HF
=HF+C1/520
515
Modification Date
Name Norm
Check.
Proj.
Origin
Date
Crea. f.
schb
ERSA
DIC
18.06.2009
=HF+C1/510
133953-V00
Otto-Schott-Straße 5
97877 Wertheim
GmbH
Project name
14:15:1808.07.2010
+
file name (*.pdf)
133953-V00_100705
basic-project
-
option handscanner
(wenglor)
Hotflow 3/xx
PDF-Page
Plant designation
/395.04 / -N
PE-C1
16
-X2
N16PE16
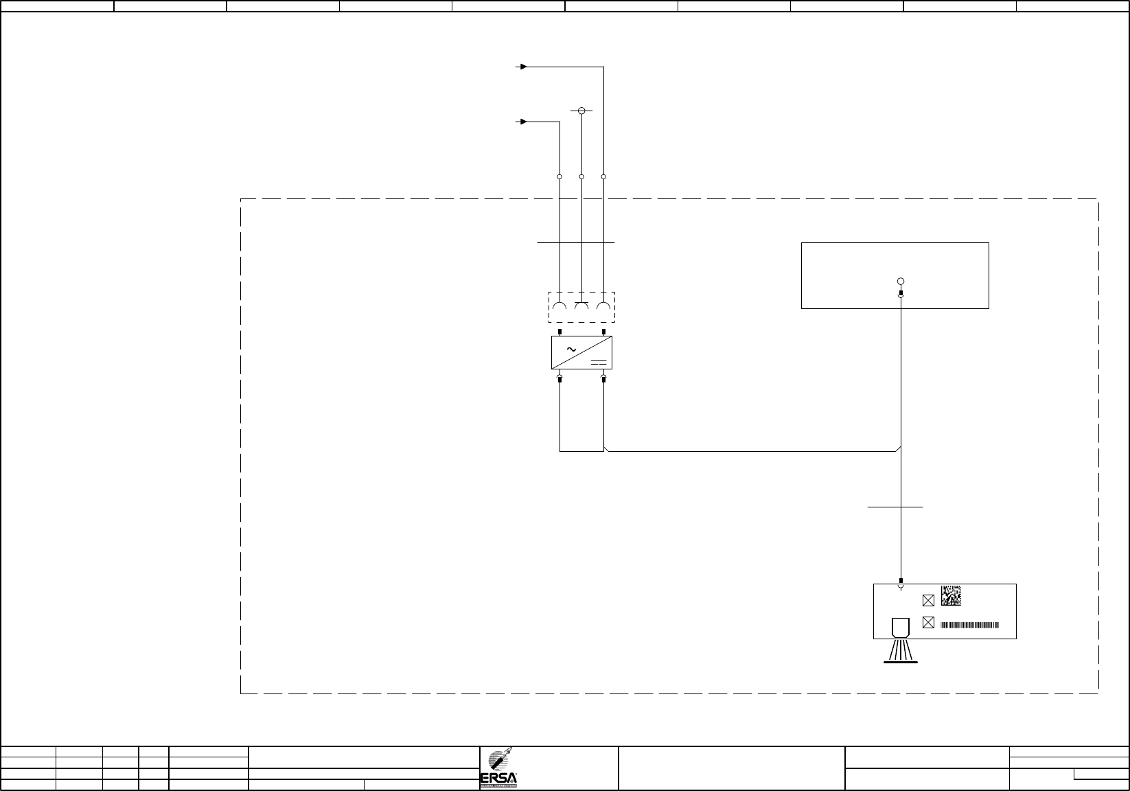
-51G1
240VAC/5VDC inkl RS232 Kabel
supply handscanner
L N
+
-
-51WA1
Kaufteil
0,14
1
barcode -handscanner RS232
XX
barcode-handscanner
-51A1
-51WX1
H05VV5-F
1,50
3
1 GNYE 2
-19A1
desktop pc
+C1/505.07
COM
1
=HF
+E1
-51XA1
/20.09 / -F2:1
0 1 2 3 4 5 6 7 8 9

Page
=
C1
HF
=HF+C1/900
520
Modification Date
Name Norm
Check.
Proj.
Origin
Date
Crea. f.
schb
ERSA
DIC
18.06.2009
=HF+C1/515
133953-V00
Otto-Schott-Straße 5
97877 Wertheim
GmbH
Project name
14:15:1808.07.2010
+
file name (*.pdf)
133953-V00_100705
basic-project
-
option rest oxygen measurement 2
Hotflow 3/xx
PDF-Page
Plant designation
BU
0,50
BU
0,50
BU
0,50
BU
0,50
=HF
+E1
X1
C
D
B
E
A
F
9
0
8
1
7
2
6
3
5
4
X16
C
D
B
E
A
F
9
0
8
1
7
2
6
3
5
4
-40WY3
Sensor-Aktor-Verteiler-Leitung
0,25
3
BN
24VDC
O2-switch messuring position on
-40Y3
14
0V
-40WY3
Sensor-Aktor-Verteiler-Leitung
0,25
3
BU
/10.06 / -24V-G(1)
24VDC-Sicherungen
SPS+Diverse
/10.09 / -GND-X5
-40A2
O2-measuring device 2
-40K2
.08
24VDC
O2-measuring device 2 on
12
11
14
-40WA2
H05VV5-F
0,75
5
1 2 GNYE 3
-40WA4
-40WA4
LIYCY
0,14
4
WH
SHDBN
-40WA4
-40F2
2,5AT
supply
O2-measuring device 2
2
1
X1: 2/24V
X2: 10
(+) 0/10V
3/GND
PE-C1
1/PE
X2: 11
(-) 0/10V
shild
(???)
/10.05 / -24V-X5
-40WA2
H05VV5-F
0,75
5
4
X2: 4
X2: 6
OK
/30.09 / -GND-K
24VDC
O2-measuring device 2 on
-40K2
12
1114
.04
A1
A2
49
-X5
-97 PE2
-X2
50
-X5
+50
X1
C
D
B
E
A
F
9
0
8
1
7
2
6
3
5
4
X16
C
D
B
E
A
F
9
0
8
1
7
2
6
3
5
4
X1
C
D
B
E
A
F
9
0
8
1
7
2
6
3
5
4
X16
C
D
B
E
A
F
9
0
8
1
7
2
6
3
5
4
-A28
Adr. 28
X20CM8281
4xDI/2xDO/1xAI/1xAO
-A28
Adr. 28
X20CM8281
4xDI/2xDO/1xAI/1xAO
.00
-A28
Adr. 28
X20CM8281
4xDI/2xDO/1xAI/1xAO
.00
O2-switch messuring position
IF6.ST12.DO.02
23
O2-measuring device 2 on
IF6.ST12.DO.01
13
IF6.ST12.AI.01.2
O2-measuring device 2 result
15 16
IF6.ST28.DI.01
O2-measuring device 2 ready
11
+37
-X5
+49
-X5
-A1
SAC-box
infeed
-A1
SAC-box
infeed
-WA1
Kaufteil
0,25
19
YE
X3:4.4
A
X3:3.2
GND
0 1 2 3 4 5 6 7 8 9

Page
=
C1
HF
=HF+DD/1
900
Modification Date
Name Norm
Check.
Proj.
Origin
Date
Crea. f.
schb
ERSA
DIC
18.06.2009
=HF+C1/520
133953-V00
Otto-Schott-Straße 5
97877 Wertheim
GmbH
Project name
14:15:1808.07.2010
+
file name (*.pdf)
133953-V00_100705
basic-project
-
option control panel SaiaBurgess
Hotflow 3/xx
PDF-Page
Plant designation
1,00
BU BU
1,00
X1
8
C
4
0
X16
4
6
2
0
-A100
Adr.1
Zentraleinheit
CPU
supply device
(A1 - A4)
-90WA100
Ethernet
network cable
plc-switch
XX
IF2
ethernet
IF2
=HF
+E1
-19A1
desktop pc
-19WA12.2
Ethernet
network cable
plc-PC
ETH
network
/10.06 / -24V-G(1)
24VDC-Sicherungen
SPS+Diverse
/10.09 / -GND-X5
-90A20
10/100 MBit/s
ethernet-switch
-90F1
6,3A-T
supply EPC
2
1
Port X1
Port X2
Port X3
Port X4
Port X5
US
X6
GND
X6
=HF
+E1
-19A10
10.4" TFT / VGA
control-panel
-19WA10.2
Ethernet
network cable
control-panel
XX
Ethernet
network
X1:4
+24V
X1:5
GND
-90F2
6,3A-T
supply control-panel
2
1
X1:6
GND
-19WA10.1
1 2
-73
-X5
-74
0 1 2 3 4 5 6 7 8 9