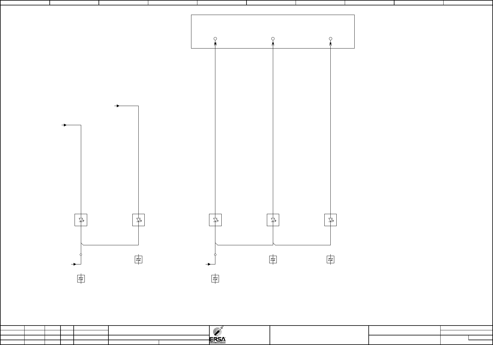
Plan_HF3_14_20_en line 1电路.pdf - 第51页
Pag e = C1 HF =HF +C 1/205 200 Modificati on Date Na m e No rm Check. Proj. Origin Date Crea. f. schb ERSA DIC 18 .0 6. 200 9 =HF +C 1/195 133 953- V00 Ot to-Schott-Straße 5 97 87 7 W ertheim Gm bH Pr oj e c t name 14:15…

Page
=
C1
HF
=HF+C1/200
195
Modification Date
Name Norm
Check.
Proj.
Origin
Date
Crea. f.
schb
ERSA
DIC
18.06.2009
=HF+C1/190
133953-V00
Otto-Schott-Straße 5
97877 Wertheim
GmbH
Project name
14:15:0908.07.2010
+
file name (*.pdf)
133953-V00_100705
basic-project
-
input signal heating zone 1-7 bottom
Hotflow 3/xx
PDF-Page
Plant designation
BU
0,50
0,50
BU
0,50
BU
0,50
BU
0,50
BU
0,50
BU
0,50
BU
0,50
BU
0,50
BU
0,50
BU
0,50
BU
0,50
BU
0,50
BU
BU
0,50
0,50
BU
0,50
BU
BU
0,50
0,50
BU
0,50
BU
BU
0,50
BU
0,50
/10.09 / -GND-X5
24VDC
preheating zone 2 bottom side
-9U2
T1
L1
1
2
/290.01
+
-
A1
A2
24VDC
preheating zone 3 bottom side
-9U3
T1
L1
1
2
/295.01
+
-
A1
A2
24VDC
preheating zone 4 bottom side
-9U4
T1
L1
1
2
/300.01
+
-
A1
A2
24VDC
preheating zone 5 bottom side
-9U5
T1
L1
1
2
/305.01
+
-
A1
A2
24VDC
preheating zone 6 bottom side
-9U6
T1
L1
1
2
/310.01
+
-
A1
A2
24VDC
preheating zone 7 bottom side
-9U7
T1
L1
1
2
/315.01
+
-
A1
A2
24VDC
preheating zone 1 bottom side
-9U1
T1
L1
1
2
/285.01
+
-
-15
-X5
-A4
X20DO9322
12x DO
/190.00
-A9
X20DO9322
12xDO
/65.07
heating zone 1 bottom side
semiconductor relay
IF6.ST9.DO.01
11
heating zone 2 bottom side
semiconductor relay
IF6.ST9.DO.02
21
heating zone 3 bottom side
semiconductor relay
IF6.ST9.DO.03
12
heating zone 4 bottom side
semiconductor relay
IF6.ST9.DO.04
22
heating zone 5 bottom side
semiconductor relay
IF6.ST9.DO.05
13
heating zone 6 bottom side
semiconductor relay
IF6.ST4.DO.11
16
heating zone 7 bottom side
semiconductor relay
IF6.ST4.DO.12
26
/10.09 / -GND-X5
-24
-A4:IF6.ST4.DO:12 / /205.02
-A4:IF6.ST4.DO.11 / /205.01
0 1 2 3 4 5 6 7 8 9

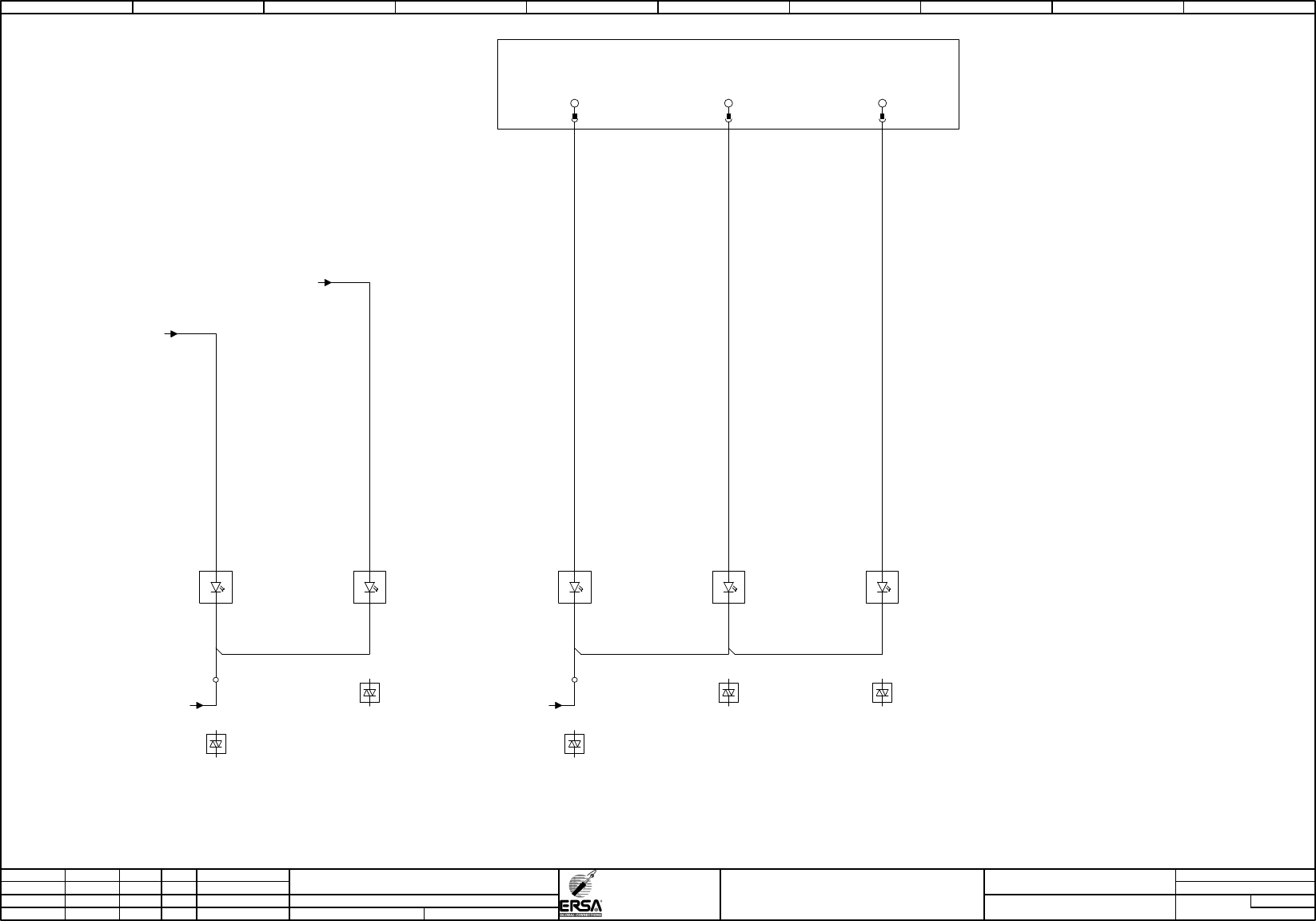
Page
=
C1
HF
=HF+C1/205
200
Modification Date
Name Norm
Check.
Proj.
Origin
Date
Crea. f.
schb
ERSA
DIC
18.06.2009
=HF+C1/195
133953-V00
Otto-Schott-Straße 5
97877 Wertheim
GmbH
Project name
14:15:1008.07.2010
+
file name (*.pdf)
133953-V00_100705
basic-project
-
input signal solder zone top
Hotflow 3/xx
PDF-Page
Plant designation
BU
0,50
BU
0,50
BU
0,50
BU
0,50
BU
0,50
BU
0,50
0,50
BU
BU
0,50
BU
0,50
BU
0,50
/10.09 / -GND-X5
24VDC
soldering zone
8 top
-3U8
T1
L1
1
2
/270.01
+
-
A1
A2
24VDC
soldering zone
9 top
-3U9
T1
L1
1
2
/275.01
+
-
A1
A2
24VDC
soldering zone
10 top
-3U10
T1
L1
1
2
/280.01
+
-
A1
A2
-26
-X5
-A4
X20DO9322
12x DO
/190.00
heating zone 8 top
semiconductor relay
IF6.ST4.DO.08
24
heating zone 9 top
semiconductor relay
IF6.ST4.DO.09
15
heating zone 10 top
semiconductor relay
IF6.ST4.DO.10
25
24VDC
soldering zone
6 top
-3U6
T1
L1
1
2
/260.01
+
-
A1
A2
24VDC
soldering zone
7 top
-3U7
T1
L1
1
2
/265.01
+
-
A1
A2
/10.09 / -GND-X5
-30
/190.07 / -A4:IF6.ST4.DO.06
/190.08 / -A4:IF6.ST4.DO.07
0 1 2 3 4 5 6 7 8 9

Page
=
C1
HF
=HF+C1/210
205
Modification Date
Name Norm
Check.
Proj.
Origin
Date
Crea. f.
schb
ERSA
DIC
18.06.2009
=HF+C1/200
133953-V00
Otto-Schott-Straße 5
97877 Wertheim
GmbH
Project name
14:15:1008.07.2010
+
file name (*.pdf)
133953-V00_100705
basic-project
-
input signal solder zone bottom
Hotflow 3/xx
PDF-Page
Plant designation
BU
0,50
BU
0,50
0,50
BU
0,50
BU
0,50
BU
BU
0,50
0,50
BU
BU
0,50
BU
0,50
BU
0,50
24VDC
soldering zone
6 bottom side
-4U6
T1
L1
1
2
/320.01
+
-
A1
A2
24VDC
soldering zone
8 bottom side
-4U8
T1
L1
1
2
/330.01
+
-
A1
A2
24VDC
soldering zone
9 bottom side
-4U9
T1
L1
1
2
/335.01
+
-
A1
A2
24VDC
soldering zone
10 bottom side
-4U10
T1
L1
1
2
/340.01
+
-
A1
A2
-A3
X20DO9322
12xDO
/65.06
heating zone 8 bottom side
semiconductor relay
IF6.ST3.DO.10
25
heating zone 9 bottom side
semiconductor relay
IF6.ST3.DO.11
16
heating zone 10 bottom side
semiconductor relay
IF6.ST3.DO.12
26
/10.09 / -GND-X5 /10.09 / -GND-X5
-59
-X5
/195.07 / -A4:IF6.ST4.DO.11
/195.08 / -A4:IF6.ST4.DO:12
24VDC
soldering zone
7 bottom side
-4U7
T1
L1
1
2
/325.01
+
-
A1
A2
-63
0 1 2 3 4 5 6 7 8 9