Plan_HF3_14_20_en line 1电路.pdf - 第31页
Pag e = C1 HF =HF +C 1/110 105 Modificati on Date Na m e No rm Check. Proj. Origin Date Crea. f. schb ERSA DIC 18 .0 6. 200 9 =HF +C 1/100 133 953- V00 Ot to-Schott-Straße 5 97 87 7 W ertheim Gm bH Pr oj e c t name 14:15…

Page
=
C1
HF
=HF+C1/105
100
Modification Date
Name Norm
Check.
Proj.
Origin
Date
Crea. f.
schb
ERSA
DIC
18.06.2009
=HF+C1/95
133953-V00
Otto-Schott-Straße 5
97877 Wertheim
GmbH
Project name
14:15:0708.07.2010
+
file name (*.pdf)
133953-V00_100705
basic-project
-
width adjustment 4
Hotflow 3/xx
PDF-Page
Plant designation
0,50
BU
=HF
+E1
/45.01 / -24V-25F1:2
Einzelabsicherung
CAN-Antriebe
-27WBM4
Kaufteil
0,34
6
BN
GN
WH
PK
-27BM4
24VDC
CAN drive
width adjustment 4
CAN-Adr. 6
-27F4
2,0AT
width adjustment 4
2
1
X1:9
24VDC
X1:2
emergency stop
X1:8
24VDC/Logik
/40.04 / -GND-X5.3
Ground
Haube+Antriebe
X1:6
GND
X1:7
GND
/95.05 / -CAN_H
/95.05 / -CAN_L
/95.06 / -CAN_SHD
-27WBM4.1
Sensor-Aktor-Verteiler-Leitung
0,32
5
GY
BK
schild
-27WBM4.1
X2:4
CAN_H
X2:5
CAN_L
CAN_IN
X2:1
shield
X3:4
CAN_H
-CAN_H / /105.03
X3:5
CAN_L
CAN_OUT
-CAN_L / /105.03
X3:1
shield
-CAN_SHD / /105.03
+29
-X5.3
+30
-X5.3
-30
+31
-27BM4/X1
1
2
3
4
5
6
7
8
9
X4
motor
Motor_OUT
-27M4
24VDC
motor
width adjustment 4
-27WM4
Kaufteil
0,00
1
X1
motor
M
30
0 1 2 3 4 5 6 7 8 9

Page
=
C1
HF
=HF+C1/110
105
Modification Date
Name Norm
Check.
Proj.
Origin
Date
Crea. f.
schb
ERSA
DIC
18.06.2009
=HF+C1/100
133953-V00
Otto-Schott-Straße 5
97877 Wertheim
GmbH
Project name
14:15:0708.07.2010
+
file name (*.pdf)
133953-V00_100705
basic-project
-
center support 4
Hotflow 3/xx
PDF-Page
Plant designation
BU
0,50
=HF
+E1
/45.01 / -24V-25F1:2
Einzelabsicherung
CAN-Antriebe
-28WBM4
Kaufteil
0,34
6
BN
GN
WH
PK
-28BM4
24VDC
CAN drive
center support 4
CAN-Adr. 7
-28F4
2,0AT
center support 4
2
1
X1:9
24VDC
X1:2
emergency stop
X1:8
24VDC/Logik
/40.04 / -GND-X5.3
Ground
Haube+Antriebe
X1:6
GND
X1:7
GND
/100.05 / -CAN_H
/100.05 / -CAN_L
/100.06 / -CAN_SHD
-28WBM4.1
Sensor-Aktor-Verteiler-Leitung
0,32
5
GY
BK
schild
-28WBM4.1
X2:4
CAN_H
X2:5
CAN_L
CAN_IN
X2:1
shield
X3:4
CAN_H
-R1
120Ω
closing-
resistance
CAN1
54
X3:5
CAN_L
CAN_OUT
closing-resistent
always connecting
at the last CAN-user
+32
-X5.3
+33
-X5.3
-33
+34
-28BM4/X1
1
2
3
4
5
6
7
8
9
X4
motor
Motor_OUT
-28M4
24VDC
motor
center support 4
-28WM4
Kaufteil
0,00
1
X1
motor
M
26
0 1 2 3 4 5 6 7 8 9

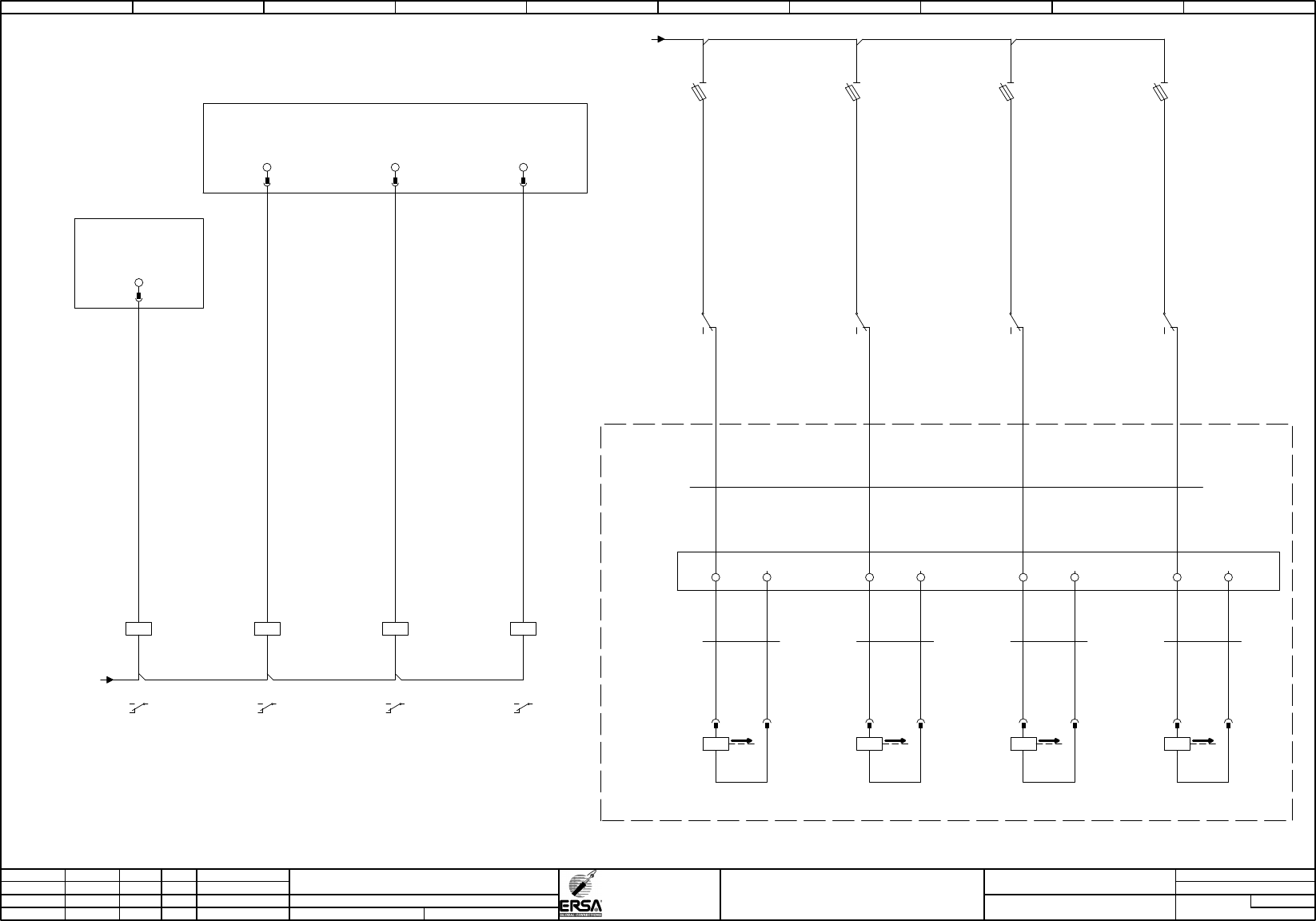
Page
=
C1
HF
=HF+C1/115
110
Modification Date
Name Norm
Check.
Proj.
Origin
Date
Crea. f.
schb
ERSA
DIC
18.06.2009
=HF+C1/105
133953-V00
Otto-Schott-Straße 5
97877 Wertheim
GmbH
Project name
14:15:0708.07.2010
+
file name (*.pdf)
133953-V00_100705
basic-project
-
center support 1-4 activate
Hotflow 3/xx
PDF-Page
Plant designation
BU
0,50
BU
0,50 0,50
BU BU
0,50
0,50
BU
0,50
BU
0,50
BU BU
0,50
24VDC
middle 2 acitvated
-28K2
12
1114
.06
A1
A2
=HF
+E1
/10.06 / -24V-G(1)
24VDC-Sicherungen
SPS+Diverse
-A1
SAC-box
infeed
-WA1
Kaufteil
0,25
19
PK WHYE RD
YEBN
-28WY2
Kaufteil
0,25
3
WH
BU
24VDC
lifting magnet
middle 2 activate
-28Y2
1 2
-28F12
2,0AT
supply
lifting magnet middle 2
2
1
X5:4.2
B
-28K2
.02
24VDC
middle 2 acitvated
12
11
14
X5:3.2
GND
X6:4.1
A
X6:3.1
GND
-28WY3
Kaufteil
0,25
3
WH
BU
24VDC
lifting magnet
middle 3 activate
-28Y3
1 2
24VDC
middle 3 acitvated
-28K3
12
1114
.07
A1
A2
-28F13
2,0AT
supply
lifting magnet middle 3
2
1
-28K3
.03
24VDC
middle 3 acitvated
12
11
14
/30.09 / -GND-K
24VDC
middle 1aktivieren
-28K1
12
1114
.05
A1
A2
-28WY1
Kaufteil
0,25
3
WH
BU
24VDC
lifting magnet
middle 1 activate
-28Y1
1 2
-28F11
2,0AT
supply
lifting magnet middle 1
2
1
X5:4.1
A
-28K1
.01
24VDC
middle 1aktivieren
12
11
14
X5:3.1
GND
-A3
X20DO9322
12xDO
/65.06
-A9
X20DO9322
12xDO
/65.07
center support 1 on
IF6.ST3.DO.02
21
center support 2 on
IF6.ST9.DO.09
15
center support 3 on
IF6.ST9.DO.10
25
-28WY4
Kaufteil
0,25
3
WH
BU
24VDC
lifting magnet
middle 4 activate
-28Y4
1 2
-28F14
2,0AT
supply
lifting magnet middle 4
2
1
X6:4.2
A
X6:3.2
GND
24VDC
middle 4 acitvated
-28K4
12
1114
.08
A1
A2
-28K4
.03
24VDC
middle 4 acitvated
12
11
14
center support 4 on
IF6.ST9.DO.11
16
0 1 2 3 4 5 6 7 8 9