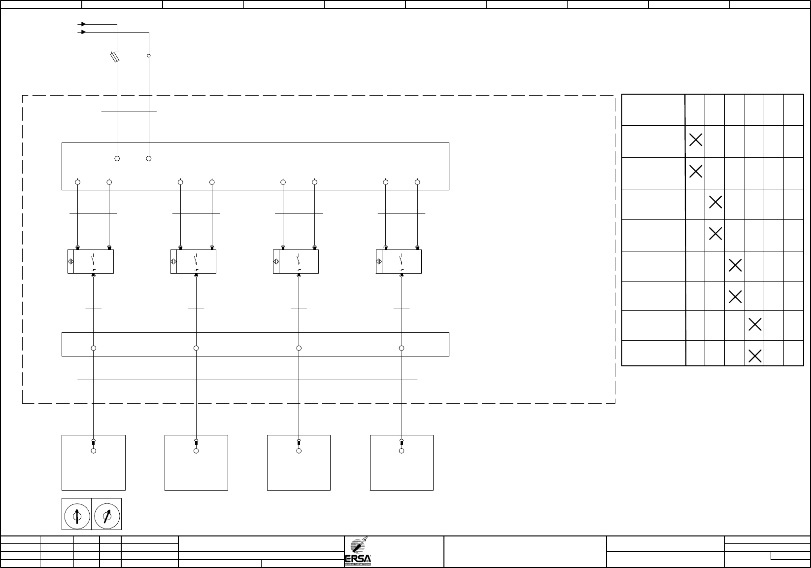
Plan_HF3_14_20_en line 1电路.pdf - 第99页
Pag e = C1 HF =HF +C 1/440 435 Modificati on Date Na m e No rm Check. Proj. Origin Date Crea. f. schb ERSA DIC 18 .0 6. 200 9 =HF +C 1/430 133 953- V00 Ot to-Schott-Straße 5 97 87 7 W ertheim Gm bH Pr oj e c t name 14:15…

Page
=
C1
HF
=HF+C1/435
430
Modification Date
Name Norm
Check.
Proj.
Origin
Date
Crea. f.
schb
ERSA
DIC
18.06.2009
=HF+C1/425
133953-V00
Otto-Schott-Straße 5
97877 Wertheim
GmbH
Project name
14:15:1608.07.2010
+
file name (*.pdf)
133953-V00_100705
basic-project
-
sensoric outlet
Hotflow 3/xx
PDF-Page
Plant designation
-B9
ISAL3
outlet-sensor 3
+
-
1 3
4
-WB9
Kaufteil
0,25
3
BN BU
X2:1.1
24VDC
-WB9
Kaufteil
0,25
3
BK
X2:4.1
A
X2:3.1
GND
=HF
+E1
/10.06 / -24V-G(1)
/10.09 / -GND-X5
-B3
ISAL1
outlet-sensor 1
+
-
1 3
4
-A2
SAC-box
outlet
-WB3
Kaufteil
0,25
3
BN BU
-A2
SAC-box
outlet
X1:1.1
24VDC
-WB3
Kaufteil
0,25
3
BK
X1:4.1
A
X1:3.1
GND
-FA2
6,3AT
24VDC-supply SAC-box outlet
2
1
24VDC
Un
GND
0V
-B6
ISAL2
outlet-sensor 2
+
-
1 3
4
-WB6
Kaufteil
0,25
3
BN BU
X1:1.2
24VDC
-WB6
Kaufteil
0,25
3
BK
X1:4.2
B
X1:3.2
GND
overview
optional sensoric
option SMEMA-
interface 1
option WMW-
interface 1
option SMEMA-
interface 2
option WMW-
interface 2
option SMEMA-
interface 3
option WMW-
interface 3
B3
[ISAL1]
B6
[ISAL2]
B9
[ISAL3]
-WA2
Kaufteil
0,25
19
BN BU
-WA2
Kaufteil
0,25
19
WH
GYPK GN
RDBU
-A18
X20DM9324
8xDI / 4xDO
/425.03
-A17
X20DM9324
8xDI / 4xDO
/425.02
-A16
Adr.16
X20DM9324
8xDI / 4xDO
IF6.ST16.DI.07
sensoric ISAL 1
14
IF6.ST17.DI.07
sensoric ISAL 2
14
X1
C
D
B
E
A
F
9
0
8
1
7
2
6
3
5
4
X16
C
D
B
E
A
F
9
0
8
1
7
2
6
3
5
4
IF6.ST18.DI.07
sensoric ISAL 3
14
-34
-X5
-A19
X20DM9324
8xDI / 4xDO
-B12
ISAL4
outlet-sensor 4
+
-
1 3
4
-WB12
Kaufteil
0,25
3
BN BU
X2:1.2
24VDC
-WB12
Kaufteil
0,25
3
BK
X2:4.2
B
X2:3.2
GND
IF6.ST19.DI.07
sensoric ISAL 4
14
B12
[ISAL4]
option SMEMA-
interface 4
option WMW-
interface 4
0 1 2 3 4 5 6 7 8 9

Page
=
C1
HF
=HF+C1/440
435
Modification Date
Name Norm
Check.
Proj.
Origin
Date
Crea. f.
schb
ERSA
DIC
18.06.2009
=HF+C1/430
133953-V00
Otto-Schott-Straße 5
97877 Wertheim
GmbH
Project name
14:15:1608.07.2010
+
file name (*.pdf)
133953-V00_100705
basic-project
-
extension sensoric infeed
Hotflow 3/xx
PDF-Page
Plant designation
BU
0,50
BU
0,50
BU
0,50
BU
0,50
-B1
EVT1
PC-connection
+
-
1 3
4
-WB1
Kaufteil
0,25
3
BN BU
-WB1
Kaufteil
0,25
3
BK
-B4
EVT2
PC-connection
+
-
1 3
4
-WB4
Kaufteil
0,25
3
BN BU
-WB4
Kaufteil
0,25
3
BK
-B7
EVT3
PC-connection
+
-
1 3
4
-WB7
Kaufteil
0,25
3
BN BU
-WB7
Kaufteil
0,25
3
BK
-B10
EVT4
PC-connection
+
-
1 3
4
-WB10
Kaufteil
0,25
3
BN BU
-WB10
Kaufteil
0,25
3
BK
=HF
+E1
-A15
X20DM9324
8xDI / 4x DO
/395.04
IF6.ST15.DI.01
sensoric EVT 1
11
IF6.ST15.DI.02
sensoric EVT 2
21
IF6.ST15.DI.03
sensoric EVT 3
12
IF6.ST15.DI.05
sensoric EVT 4
22
/10.05 / -24V-X5
/10.09 / -GND-X5
33
-X5
+33
-X5
-65
34
+34
-67
35
+35
-69
36
+36
-71
0 1 2 3 4 5 6 7 8 9

Page
=
C1
HF
=HF+C1/445
440
Modification Date
Name Norm
Check.
Proj.
Origin
Date
Crea. f.
schb
ERSA
DIC
18.06.2009
=HF+C1/435
133953-V00
Otto-Schott-Straße 5
97877 Wertheim
GmbH
Project name
14:15:1608.07.2010
+
file name (*.pdf)
133953-V00_100705
basic-project
-
option SMEMA-interface n-1 (1)
Hotflow 3/xx
PDF-Page
Plant designation
0,50
BU
BU
0,50
BU
0,50
0,50
BU
BU
0,50
BU
0,50
0,50
BU
0,50
BU
0,50
BU
0,50
BU
BU
0,50
0,50
BU
0,50
BU
0,50
BU
0,50
BU
/10.06 / -24V-G(1)
24VDC-Sicherungen
SPS+Diverse
/445.01 / -24V-41X5
24VDC
SMEMA-Schnittstelle 1
SMEMA-plug 1 n-1
-41X8
3
4
24VDC
Not busy at n-1 (1)
-41K1
12
1114
.05
A1
A2
-41K1
.04
24VDC
Not busy at n-1 (1)
12
11
14
1 2
-41F1
2,0AT
supply
2
1
+1
-41X5
+2
-41X5
5
+3
6
13 14
24VDC
Fault machine at n-1 (1)
-41K2
12
1114
.09
A1
A2
-41K2
.07
24VDC
Fault machine at n-1 (1)
12
11
14
-A16:IF6.ST16.DO.01:15 / /480.09
Ready to accept (WMW) n-1 (1)
-A16:IF6.ST16.DO.02:25 / /480.05
Fault machine (WMW) n-1 (1)
/30.09 / -GND-K /30.09 / -GND-K
-A16:IF6.ST16.DI.01:11 / /480.02
Request (WMW) n-1 (1)
-A16:IF6.ST16.DI.02:21 / /480.03
Transferred (WMW) n-1 (1)
-A16
Adr.16
X20DM9324
8xDI / 4xDO
/430.00
-A16
Adr.16
X20DM9324
8xDI / 4xDO
/430.00
IF6.ST16.DI.01
SMEMA/WMW (1) n-1
Board available/Request
11
IF6.ST16.DI.02
SMEMA/WMW (1) n-1
Bad PCB/Transfered
21
SMEMA/WMW (1) n-1
Not busy/Rady to accept
IF6.ST16.DO.01
15
SMEMA/WMW (1) n-1
Fault machine
IF6.ST16.DO.02
25
X1
C
D
B
E
A
F
9
0
8
1
7
2
6
3
5
4
X16
C
D
B
E
A
F
9
0
8
1
7
2
6
3
5
4
X1
C
D
B
E
A
F
9
0
8
1
7
2
6
3
5
4
X16
C
D
B
E
A
F
9
0
8
1
7
2
6
3
5
4
0 1 2 3 4 5 6 7 8 9