Plan_HF3_14_20_en line 1电路.pdf - 第96页
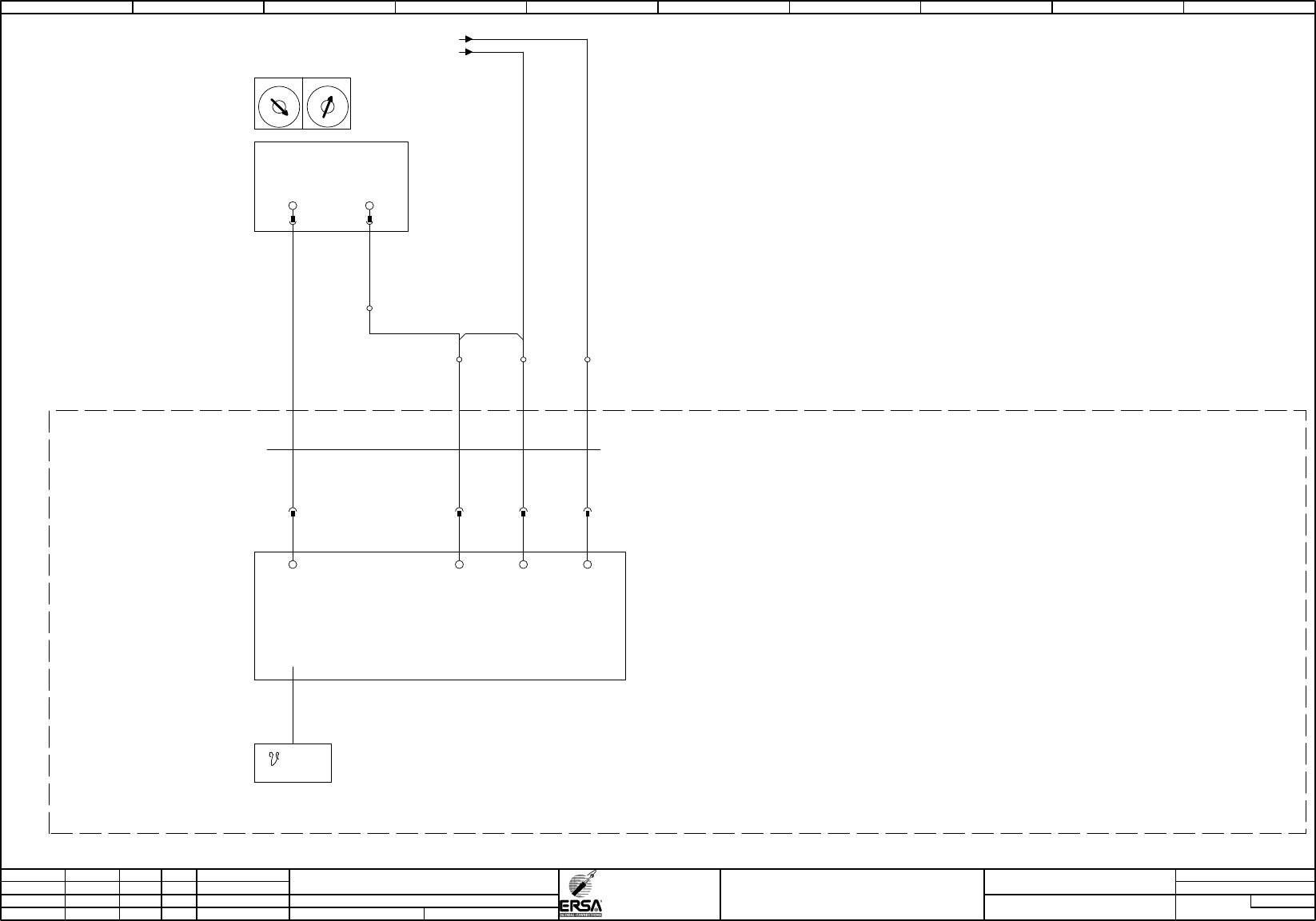
Pag e = C1 HF =HF +C 1/425 420 Modificati on Date Na m e No rm Check. Proj. Origin Date Crea. f. schb ERSA DIC 18 .0 6. 200 9 =HF +C 1/418 133 953- V00 Ot to-Schott-Straße 5 97 87 7 W ertheim Gm bH Pr oj e c t name 14:15…

Page
=
C1
HF
=HF+C1/420
418
Modification Date
Name Norm
Check.
Proj.
Origin
Date
Crea. f.
schb
ERSA
DIC
18.06.2009
=HF+C1/415
133953-V00
Otto-Schott-Straße 5
97877 Wertheim
GmbH
Project name
14:15:1508.07.2010
+
file name (*.pdf)
133953-V00_100705
basic-project
-
supply compressed-air
injection
Hotflow 3/xx
PDF-Page
Plant designation
=HF
+E1
-A2
SAC-box
outlet
-A2
SAC-box
outlet
-34WY1
Sensor-Aktor-Verteiler-Leitung
0,75
3
BK1
24VDC
injection on
-34Y1
14
0V
-34WY1
Sensor-Aktor-Verteiler-Leitung
0,75
3
BK2
X4:4.2
B
X3:3.2
GND
-A13
Adr.13
X20CM8281
4xDI/2xDO/1xAI/1xAO
/410.07
injection on
IF6.ST13.DO.02
23
X1
C
D
B
E
A
F
9
0
8
1
7
2
6
3
5
4
X16
C
D
B
E
A
F
9
0
8
1
7
2
6
3
5
4
-WA2
Kaufteil
0,25
19
BNGN
-34S1
pressure air
pressure ok
+
BN
BU
-34WS1
Sensor-Aktor-Verteiler-Leitung
0,25
4
BN
-34WS1
Sensor-Aktor-Verteiler-Leitung
0,25
4
BK
X8:4.2
B
X8:1.2
24VDC
-A13
Adr.13
X20CM8281
4xDI/2xDO/1xAI/1xAO
/410.07
X1
C
D
B
E
A
F
9
0
8
1
7
2
6
3
5
4
X16
C
D
B
E
A
F
9
0
8
1
7
2
6
3
5
4
IF6.ST13.DI.01
compressed air ok
11
-WA2
Kaufteil
0,25
19
GYBN
0 1 2 3 4 5 6 7 8 9

Page
=
C1
HF
=HF+C1/425
420
Modification Date
Name Norm
Check.
Proj.
Origin
Date
Crea. f.
schb
ERSA
DIC
18.06.2009
=HF+C1/418
133953-V00
Otto-Schott-Straße 5
97877 Wertheim
GmbH
Project name
14:15:1608.07.2010
+
file name (*.pdf)
133953-V00_100705
basic-project
-
option pyrometer messuring
Hotflow 3/xx
PDF-Page
Plant designation
BU
0,50
=HF
+E1
-50A1
databox
pyrometer 1
-50B1
measuring head
pyrometer 1
-50WA1
LIYCY
0,14
4
WH
YE GN
BN
out -mV/mA
-50XA1
33
oMV = 10
Sig.GND
44
+12...24V
11
GND
22
/10.05 / -24V-X5
/10.09 / -GND-X5
-A22
Adr.22
X20AI4622
4x (???)
X1
C
D
B
E
A
F
9
0
8
1
7
2
6
3
5
4
X16
C
D
B
E
A
F
9
0
8
1
7
2
6
3
5
4
pyrometer 1 actual value
IF6.ST22.AI.01.2
12 13
+18
-35-36
-X5
-70
-X5
0 1 2 3 4 5 6 7 8 9

Page
=
C1
HF
=HF+C1/430
425
Modification Date
Name Norm
Check.
Proj.
Origin
Date
Crea. f.
schb
ERSA
DIC
18.06.2009
=HF+C1/420
133953-V00
Otto-Schott-Straße 5
97877 Wertheim
GmbH
Project name
14:15:1608.07.2010
+
file name (*.pdf)
133953-V00_100705
basic-project
-
sensoric infeed
Hotflow 3/xx
PDF-Page
Plant designation
-B2
ISEL1
infeed sensor 1
+
-
1 3
4
-WB2
Kaufteil
0,25
3
-WB2
Kaufteil
0,25
3
BK
-B5
ISEL2
infeed sensor 2
+
-
1 3
4
-WB5
Kaufteil
0,25
3
BN BU
-WB5
Kaufteil
0,25
3
BK
option
PC connection
option pass
through monit. 1
option SMEMA-
interface 1
B2
[ISEL1]
B5
[ISEL2]
B8
[ISEL3]
overview
optional sensoric
X1:4.1
A
X2:4.1
A
X1:4.2
B
X2:4.2
B
-A1
SAC-box
infeed
-WA1
Kaufteil
0,25
19
WH
GYPK GN
RDBU
X1:3.1
GND
X1:1.1
24VDC
X2:1.1
24VDC
X2:3.1
GND
-A1
SAC-box
infeed
X1:1.2
24VDC
X1:3.2
GND
X2:1.2
24VDC
X2:3.2
GND
option WMW-
interface 1
option pass
through monit. 2
option SMEMA-
interface 2
option WMW-
interface 2
/10.06 / -24V-G(1)
/10.09 / -GND-X5
-WA1
Kaufteil
0,25
19
BN BU
-FA1
6,3AT
24VDC-supply SAC-box infeed
2
1
24VDC
Un
GND
0V
-33
-X5
-B8
ISEL3
infeed sensor 3
+
-
1 3
4
-WB8
Kaufteil
0,25
3
BN BU
-WB8
Kaufteil
0,25
3
BK
B11
[ISEL4]
option pass
through monit. 3
option SMEMA-
interface 3
option WMW-
interface 3
-A17
X20DM9324
8xDI / 4xDO
-A18
X20DM9324
8xDI / 4xDO
IF6.ST17.DI.06
sensoric ISEL 2
23
-A2
X20DM9324
8xDI / 4xDO
/10.00
IF6.ST2.DI.05
sensoric ISEL 1
13
IF6.ST18.DI.06
sensoric ISEL 3
23
-B11
ISEL4
infeed sensor 4
+
-
1 3
4
-WB11
Kaufteil
0,25
3
BN BU
-WB11
Kaufteil
0,25
3
BN
-A19
X20DM9324
8xDI / 4xDO
/430.04
IF6.ST19.DI.06
sensoric ISEL 4
23
=HF
+E1
option pass
through monit. 4
option SMEMA-
interface 4
option WMW-
interface 4
-WB8
Kaufteil
0,25
3
BN BU
0 1 2 3 4 5 6 7 8 9