Plan_HF3_14_20_en line 1电路.pdf - 第14页
Pag e = C1 HF =HF +C1/25 20 Modificati on Date Na me No rm Check. Proj. Origin Date Crea. f. schb ERSA DIC 01. 02. 2010 01. 02. 2010 schb =HF +C1/15 133 953- V00 Ot to-Schott-Straße 5 978 77 W e rtheim Gm bH Pr oj ec t n…

Page
=
C1
HF
=HF+C1/20
15
Modification Date
Name Norm
Check.
Proj.
Origin
Date
Crea. f.
schb
ERSA
DIC
18.06.2009
=HF+C1/10
133953-V00
Otto-Schott-Straße 5
97877 Wertheim
GmbH
Project name
14:15:0408.07.2010
+
file name (*.pdf)
133953-V00_100705
basic-project
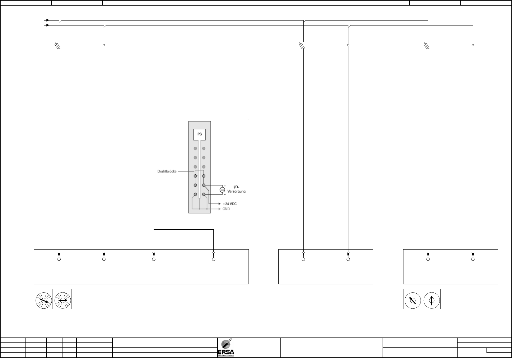
-
24VDC-supply pcp-modul
Hotflow 3/xx
PDF-Page
Plant designation
BU
1,00
BU
1,00 1,00
BU
1,00
BU
1,00
BU BU
1,00
BU
1,00
/10.06 / -24V-G(1)
/10.09 / -GND-X5
-FA100
6,3A-T
supply -A100 CPU and Rack
2
1
-FA5
6,3AT
supply supply device -A5
2
1
-FA14
6,3AT
supply supply device -A14
2
1
-6
-X5
-8
-X5
-10
-X5
-A5
supply device
(A6-A13)
IF6.ST5.25
+24V supply I/O
25
IF6.ST5.26
GND supply I/O
26
-A14
Adr. 14
supply device
(A15 - A25)
IF6.ST14.25
+24V supply I/O
25
IF6.ST14.26
GND supply I/O
26
-A100
Adr.1
Zentraleinheit
CPU
supply device
(A1 - A4)
IF1:25
+24V supply I/O
25
IF1:26
GND supply I/O
26
IF1:14
+24V supply CPU / X2X Link
14
IF1:24
+24V supply I/O
24
X1
C
D
B
E
A
F
9
0
8
1
7
2
6
3
5
4
X16
C
D
B
E
A
F
9
0
8
1
7
2
6
3
5
4
X1
8
C
4
0
X16
4
6
2
0
0 1 2 3 4 5 6 7 8 9

Page
=
C1
HF
=HF+C1/25
20
Modification Date
Name Norm
Check.
Proj.
Origin
Date
Crea. f.
schb
ERSA
DIC
01.02.201001.02.2010
schb
=HF+C1/15
133953-V00
Otto-Schott-Straße 5
97877 Wertheim
GmbH
Project name
14:15:0408.07.2010
+
file name (*.pdf)
133953-V00_100705
basic-project
-
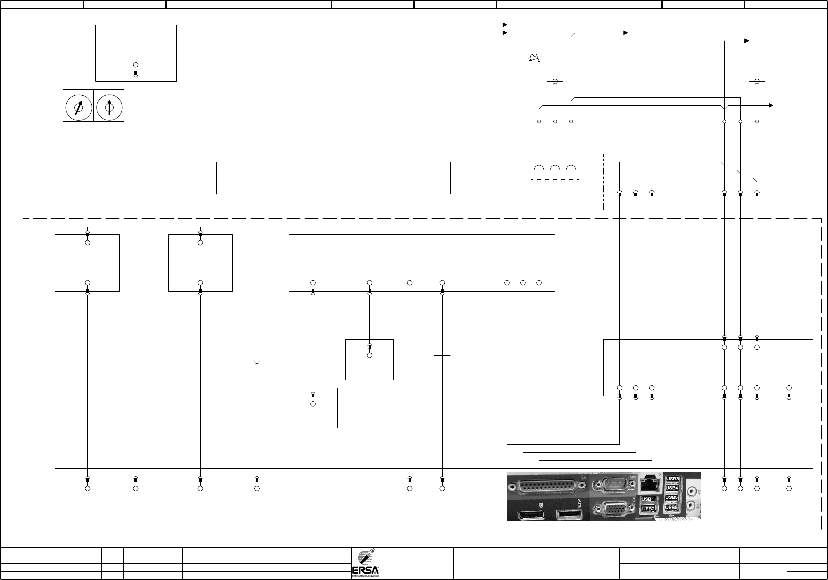
desktop PC service-plug
Hotflow 3/xx
PDF-Page
Plant designation
1,50
BK
1,50
BK
GNYE
1,50
BU
1,50
BK
1,50
BU
1,50
GNYE
1,50
VGA
monitor
ETH
network
-19WA1.2
Ethernet
networkcable
plc-ipc
XX
/365.09 / -L3-Q1
Versorgung
230VAC-Sicherungen
Frequenzumrichter +
Steckdosen
-F2
B10A
socket in cabinet
2
1
4
-X2
N4
PE-C1
PE4
/10.08 / -N -N / /125.00
-19WA1.1
Kaufteil
0,00
1
230V supply PC
-19A4
monitor
VGA
-19A2.1
keyboard
-19WA4.2
Kaufteil
VGA cable monitor
XX
PE-C1
-19A5
modem
USB 1
modem
USB
LINE
LL NN
PEPE
L
powersupply
N
PE
socket desktop PC
-19XA1
LL NN
PEPE
L
N PE
-19WA4.1
Kaufteil
0,00
1
supply monitor
-19WA5
Kaufteil
0,00
1
USB-extension
1
-X10
socket basic in cabinet for service
L
PE
N
-A100
Adr.1
Zentraleinheit
CPU
supply device
(A1 - A4)
/15.00
ethernet
IF2
-
X1
C
D
B
E
A
F
9
0
8
1
7
2
6
3
5
4
X16
C
D
B
E
A
F
9
0
8
1
7
2
6
3
5
4
5 N5
PE5
USB-Front
ethernet
-19A6
USB/
Ethernet
Ethernet
USB
USB1-PC
USB 5
(???)
-19A3
600VA / 300W
ups
USB 4
ups
USB
L
N PE
L
N PE
L
N PE
230V In
230V OUT
-19A1
desktop pc
+C1/505.07
=HF
+E1
keyboard
-19A2.2
Trackball
trackball
USB2-IN USB3-IN
USB 2
(???)
connection
USB-stick
-19WA1.3
Kaufteil
0,00
1
USB-extension
1
-19WA1
Kaufteil
1,00
3
(???) (???)
BN BU
GNYE
-19WA4
Kaufteil
1,00
3
supply monitor
BN BU
GNYE
note:
At option touch-monitor look up to the labelling
-X2:5 / /125.00
-F2:1 / /515.04
0 1 2 3 4 5 6 7 8 9

Page
=
C1
HF
=HF+C1/30
25
Modification Date
Name Norm
Check.
Proj.
Origin
Date
Crea. f.
schb
ERSA
DIC
18.06.2009
=HF+C1/20
133953-V00
Otto-Schott-Straße 5
97877 Wertheim
GmbH
Project name
14:15:0508.07.2010
+
file name (*.pdf)
133953-V00_100705
basic-project
-
option energiemessuring
Hotflow 3/xx
PDF-Page
Plant designation
0,50
BU
0,50
BU
BU
0,50
BU
0,50
BU
0,50
0,50
BU
0,50
BU BU
0,50
0,50
BU
BU
0,50
BU
0,50 0,50
BU
0,50
BU
-L1
max 100A
/ 0-10V
Current transformer L1
/5.00
+24V
GND OUT
-L2
max 100A
/ 0-10V
Current transformer L2
/5.01
+24V
GND OUT
-L3
max 100A
/ 0-10V
Current transformer L3
/5.01
+24V
GND OUT
/10.05 / -24V-X5
/10.09 / -GND-X5
+5
-X5
-9
X1
C
D
B
E
A
F
9
0
8
1
7
2
6
3
5
4
X16
C
D
B
E
A
F
9
0
8
1
7
2
6
3
5
4
-W10
LIYCY
0,14
4
WH
BN
GN YE
1
-XPE1
-W10
-L4
max 440V
/ 0-10V
Voltage transformer
/5.07
+24V
13
GND
15
OUT
10
-12
-X5
GND
12
GND
16
current L1
IF6.ST26.AI.01.2
12 13
current L2
IF6.ST26.AI.02.2
22 23
current L3
IF6.ST26.AI.03.2
15 16
voltage
IF6.ST26.AI.04.2
25 26
-A26
Adr.26
X20AI4622
4x analog I
Poti SPAN
input 395V = output 9V
RANGE SWITCH
100A
OUTPUT SWITCH
0 - 10V
RANGE SWITCH
100A
OUTPUT SWITCH
0 - 10V
RANGE SWITCH
100A
OUTPUT SWITCH
0 - 10V
0 1 2 3 4 5 6 7 8 9