N7201A652C.pdf - 第484页
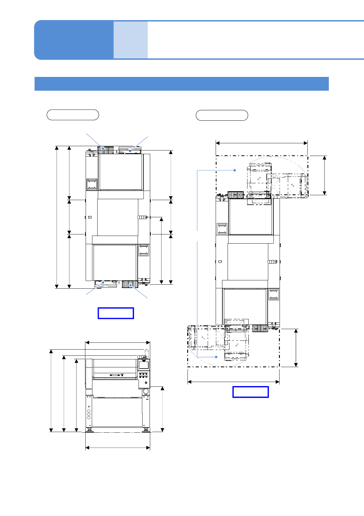
NPM- TT2 EJM1EC-MB-06O-0 4 6-1-3 -1 规格 外形尺寸和工作区域 1 操作篇 6-1-3 单式托盘规格 ( 单位 :mm) ■连接单式托盘供料器时 外形尺寸 工作区域 13 站供给部 单式托盘供料器 13 站供给部 单式托盘供料器 971 686 971 1 314 1 056 686 1 056 2 798 作業 エ リア 1 831 763 作業 エリ ア 工作区域 763 1 831 900 1 5…

NPM-TT2 EJM1EC-MB-06O-04
6-1-2
规格
基板的传送方向
操作篇
6-1-2
双轨传送带
基准轨道
从左向右传送、前侧基准 从右向左传送、前侧基准
从左向右传送 从右向左传送
可动轨道
■单轨模式
■双轨模式
1 2
1 2
基板传送方向
基准轨道
基板传送方向
可动轨道
基准轨道
可动轨道
基板传送方向
基准轨道
可动轨道
基准轨道
可动轨道
基准轨道
基板传送方向
基准轨道
可动轨道
基准轨道
基板传送方向 基板传送方向
前侧 前侧
前侧 前侧

NPM-TT2 EJM1EC-MB-06O-04
6-1-3-1
规格
外形尺寸和工作区域 1
操作篇
6-1-3
单式托盘规格
(单位:mm)
■连接单式托盘供料器时
外形尺寸
工作区域
13站供给部
单式托盘供料器
13站供给部
单式托盘供料器
971686971
1 314
1 0566861 056
2 798
作業
エ
リア
1 831
763
作業
エリ
ア
工作区域
763
1 831
900
1 514
1 629
1 265(安全盖外形)
1 280(传送带宽度)
1 444
前侧
前侧

NPM-TT2 EJM1EC-MB-06O-04
6-1-3-2
交换台车规格
(单位:mm)
交换台车
交换台车
971686971
1 314
1 103.56861 103.5
2 893
1 639
781
781
1 639
外形尺寸
工作区域
工作区域
13站供给部
13站供给部
900
1 514
1 629
1 265(安全盖外形)
1 280(传送带宽度)
1 444
前侧
前侧