RX-8_SPE_EN.pdf - 第19页
15 Note • If the board size X exceeds 350m m in usual PWB m ode, only the unit on upstream side against the board t ransfer direction manufactures t he product s using the stoppe r even if the board stopper 3 is spe cifi…

14
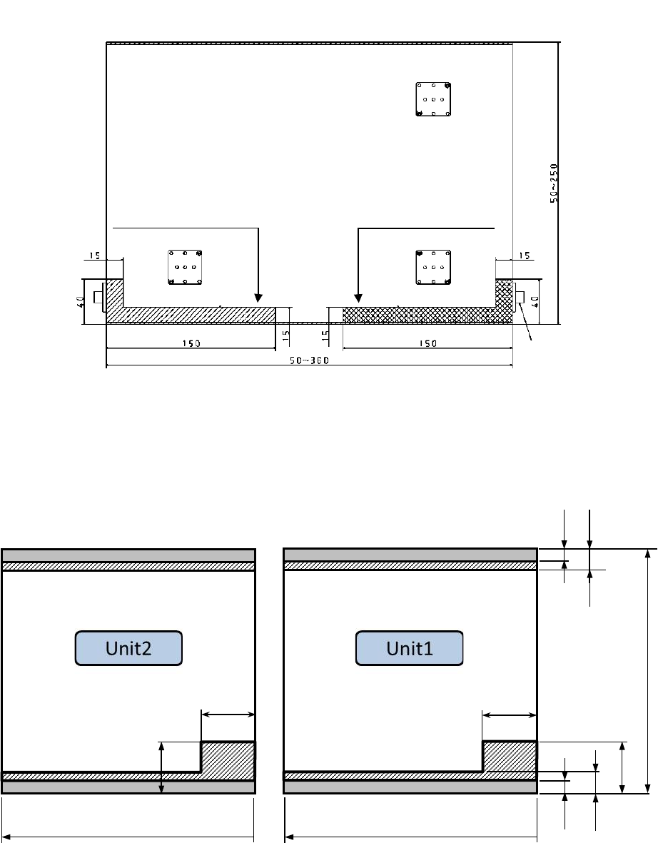
4-7 Specifications of applicable boards
4-7-1 Board transport direction
Rightward flow (transporting from left to right viewed from the front side)
Leftward flow (transporting from right to left viewed from the front side)
4-7-2 Board dimensions and mass
Item
Specification
Transport weight
2.0 kg or less
*Contact us if the weight exceeds the upper limit.
When a board is transferred with a single lane (in Normal PWB mode)
Item
Specification
Dimensions of an
applicable board
When not equipped with a board
stopper
Min.: 50 mm x 50 mm
Max.: 42
0
mm x 450 mm
When equipped with a board stopper
(3) (The stopper is located at a “175
mm” position.)
Min.: 50 mm x 50 mm
Max.: 420 mm x 450 mm
Area of a board in
which a
component can
be placed
When not equipped with a board
stopper
X direction: A component can be placed in the
area ± 175 mm viewed from the center of the unit
according to the board stop position.
Y direction: 3 mm to (“Board width” – 3) mm on the
board front side
When equipped with a board stopper
(3) (The stopper is located at a “175
mm” position.)
X direction: No limitations
Y direction: 3 mm to (“Board width” – 3) mm on the
board front side
Board thickness 0.3 mm to 6.0 mm
When a board is transferred with a single lane (in Long PWB mode)
Item
Specification
Dimensions of an
applicable board
When not equipped with a board
stopper
Min.: 50 mm x 50 mm
Max.: 510 mm x 450 mm
When equipped with a board stopper
(3) (The stopper is located at a “175
mm” position.)
Min.: 50 mm x 50 mm
Max.: 510 mm x 450 mm
Area of a board in
which a
component can
be placed
When not equipped with a board
stopper
X direction: No limitations
Y direction: 3 mm to (“Board width” – 3) mm on the
board front side
When equipped with a board stopper
(3) (The stopper is located at a “175
mm” position.)
X direction: No limitations
Y direction: 3 mm to (“Board width” – 3) mm on the
board front side
Board thickness 0.3 mm to 6.0 mm

15
Note
•
If the board size X exceeds 350mm in usual PWB mode, only the unit on upstream side
against the board transfer direction manufactures the products using the stopper even if the
board stopper 3 is specified.
•
If the board size X exceeds 350mm in usual PWB mode, BOC/area mark and bad mark
linked to mounting step (or circuit) need to exist within the mounting range of unit which
mounts parts.
•
If the board size X exceeds 350mm in usual PWB mode, the global bad mark needs to exist
within the mounting range of upstream unit.
•
In Long PWB mode, only a unit on the downstream side viewed from the board transfer
direction uses a board stopper to produce a PWB.
•
In case of long PWB mode, BOC/area mark linked to mounting step (or circuit) needs to
exist within the mounting range of unit which mounts parts.
•
In case of long PWB mode, the bad mark linked to mounting step (or circuit) needs to exist
within the mounting range of unit which mounts parts or within the mounting range of
upstream unit.
•
In case of long PWB mode, the global bad mark needs to exist within the mounting range of
upstream unit.

16
Area on which any back-up pin cannot be set when an RX-8 is used
RX-8: Area in which any back-up pin cannot be set
Single transfer specification device (flow direction L to R)
シ ン グ ル 仕様:
50
~
450mm
40m
40m
3mm
3mm
8mm
8mm
40m
40m
50
~
350mm
50
~
350mm
Area in which any pin cannot
be set when a board is
transferred from right to left
Area in which any pin cannot
be set when a board is
transferred from left to right
Stopper (Board transfer
direction: left to right)
Front of the machine
Unit: mm
Single specification: 50 to 450 mm