2050-2060.pdf - 第144页
第 3 章 保养 Rev01 3-30 3-5 更换 UPS 蓄电池 当UPS蓄电池达到使用寿命(在通电状态下为2年)或因放电等原因而不能充电时,请更换蓄电 池。 3-5-1 UPS 的拆卸 警告 为了避免因触电而造成重伤事故, 请将总开关置于 〈断开〉 状态。 同时务 必将主机的主断路器及主开关置于〈OFF〉状态。 总开关是指建筑物内安装的电源开关,而非主机上的开关。 图 3 -14 装置背面图(UPS 安装位置) 图 3-15 UP…

第 3 章 保养 Rev01
3-29
3-4-6 支撑台
请在*标记的滚珠丝杠轴4处全部涂抹润滑油。
用手将支撑台拉起后,在两侧涂抹油脂。
*
图 3-12 支撑台
注意
请勿使用润滑脂(C 润滑脂)以外的润滑脂。
如果与其它的润滑脂混使用,可能会使润滑脂脱离涂抹部位后滴落。
危险
为防止因意外启动而引发事故,请在切断电源后进行涂抹作业。
3-4-7 统一交换台(选购件)
请在“台架定位销①”和“导引轴②”处涂抹润滑油。
1
1
2
2
图 3-4-7-1 统一交换台
① 台架定位销
② 导轴
*

第 3 章 保养 Rev01
3-30
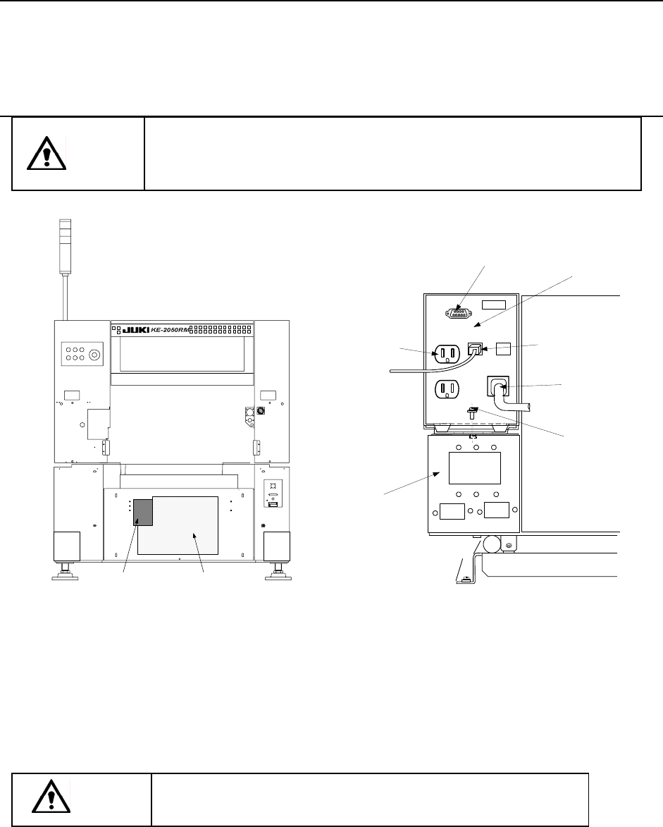
3-5 更换 UPS 蓄电池
当UPS蓄电池达到使用寿命(在通电状态下为2年)或因放电等原因而不能充电时,请更换蓄电
池。
3-5-1 UPS 的拆卸
警告
为了避免因触电而造成重伤事故,请将总开关置于〈断开〉状态。同时务
必将主机的主断路器及主开关置于〈OFF〉状态。
总开关是指建筑物内安装的电源开关,而非主机上的开关。
图 3-14 装置背面图(UPS 安装位置) 图 3-15 UPS
<拆卸顺序>
① 请拆下连接在 UPS 上的连接器及从 UPS 引出的电缆的中转连接器。
② 拆下固定在 UPS 前面的金属板上地螺丝(1 个),将 UPS 从主体上拉出。
③ 更换电池后,按照相反的步骤装回。
注意
拆卸 UPS 时,由于 UPS 主体很重,因此请多注意。
IN OUT
电源设备
UPS安装位置
从通信连接器上
拔下连接器
拆下螺丝
拆下信号
连接器
从输出插座上
拔下插头
UPS
电源设备
拆下中转
连接器

第 3 章 保养 Rev01
3-31
① 停止 UPS。
拆下 UPS 的输入、输出电缆。
3-5-2 更换蓄电池
按照如下的步骤,更换电池。在更换电池前,请仔细阅读全部的警告、注意。
蓄电池的寿命一般为 2 年,请在使用 2 年后进行更换。
警告
蓄电池可能会因大短路电流而造成触电或烧伤。
因此请遵守下述事项。
1) 脱下手表、戒指、颈链和其他金属物品。
2) 使用带有绝缘把手的工具。
3) 不在蓄电池上放置工具或金属零件。
拆下电池后,按照与拆卸时相反的步骤(⑤~①)安装新电池。
注意
连接电池的连接器时会出现小火花,请加以注意。
② 横置 UPS,拆下前面板的螺丝。
③ 将 UPS 恢复原位,拆下前盖板。
④ 拆下固定电池的金属件的螺丝。
⑤ 拆下电池的连接器,慢慢取出电池。