FX-1R_操作手册.pdf - 第100页
第 3 章 日常检查 Rev03 3.2 各部的检查 3.2.1 气压 请确认压力计压力为 0.49 Mpa。 压力在 0.44 M pa ~ 0.54 Mpa 以外的情况下,请确认漏气有无厂方原因,如果没有异常,请 按照以下步骤,重新调整压力。 <主要压力设定步骤> 1)打开管道旋钮①。 关闭状态 打开状态 2)把「调节旋钮②」向下拉,旋转选钮,把使用气压调整到 0.49 Mpa。 图 3.2.1 排水阀和调节选钮 图 3…

第 3 章 日常检查 Rev03
第3章 日常检查
3.1 日常检查项目一览表
危险
为了防止意外启动造成的事故,请在关掉电源之后再进行日常检查。
使用心脏起搏器等精密医疗器械的人员请勿进行维护作业。
日常检查项目 检查、注油频率
处理
方法
检查调整项目 确认处理方法
每
天
每
周
每
月
每2
个月
每6
个月
每年
气压 确认 0.49MPa ○
管道和接头 空气泄漏 ○
汽缸系统 确认动作 ○
空气过滤器(贴片头) 有无脏污 ○
空气过滤器(CAL 校准台) - ○
电源灯 确认亮灯 ○
传送带 摩损消耗,破损,伸长 ○
传送滑轮 确认动作 ○
挡片 摩损消耗,破损 ○
检查
电气关联部分 电压,电缆,连接 随时
X, Y 轴直动单元 除去灰尘、油 ○
传送带 除去灰尘、异物 ○
传送各传感器 清洁 ○
激光校准传感器 清洁传感器窗 ○
吸嘴 吸嘴清洁 ○
吸嘴外轴 轴内部的清洁 ○
ATC 支架 除去灰尘,油 ○
送料器台,统一交换台 除去异物 ○
OCC (偏光滤镜) 除去灰尘、异物 ○
CAL 校准台
除去灰尘、异物
○
清洁
跟踪球
除去灰尘、异物
○
X 轴直动单元轨道 润滑油(6459N)白盖 ○
Y 轴直动单元轨道 润滑油 (EP2) ○
传送螺旋轴(轴
)
润滑油 (EP2) ○
传送导向轴 润滑油 (EP2) ○
弹性导向轴 润滑油 (EP2) ○
侧梁 润滑油 (EP2) ○
基板挡块部分 润滑油 (EP2)
○
YA台滚珠丝杠和线性方向(YA 部分)
润滑油 (EP2) ○
滚珠丝杠和线性方向(贴片头部分)
润滑油 (C 润滑油) ○
方栓轴(贴片头部分) 润滑油 (C 润滑油) ○
吸嘴 油 清洁后
统一交换台 润滑油 ( EP2)
○
润滑
运行
是否
顺畅
支撑台 润滑油 ( EP2) ○
1. 加油时请使用附属的油脂类。另外,仅指定润滑油的位置,除了附属的润滑油(EP2)外,只限使用壳牌阿尔巴
尼亚润滑油 1。(但是,请注意指定为润滑油(6459N)的部位不要使用其他润滑油。)
2. 指定使用润滑油(C 润滑油)的位置,请绝对不要使用附属润滑油(C 润滑油)以外的润滑油。
以上油脂类,请不要使用 JUKI 指定之外的产品。
3. 机油( NO.1) :第 4 种类第 3 类石油
润滑油( EP2):消防法非危险物品、润滑油(C 润滑油):消防法非危险物品、润滑油(6459N):消防法非危险物品。
注意 :
3-1

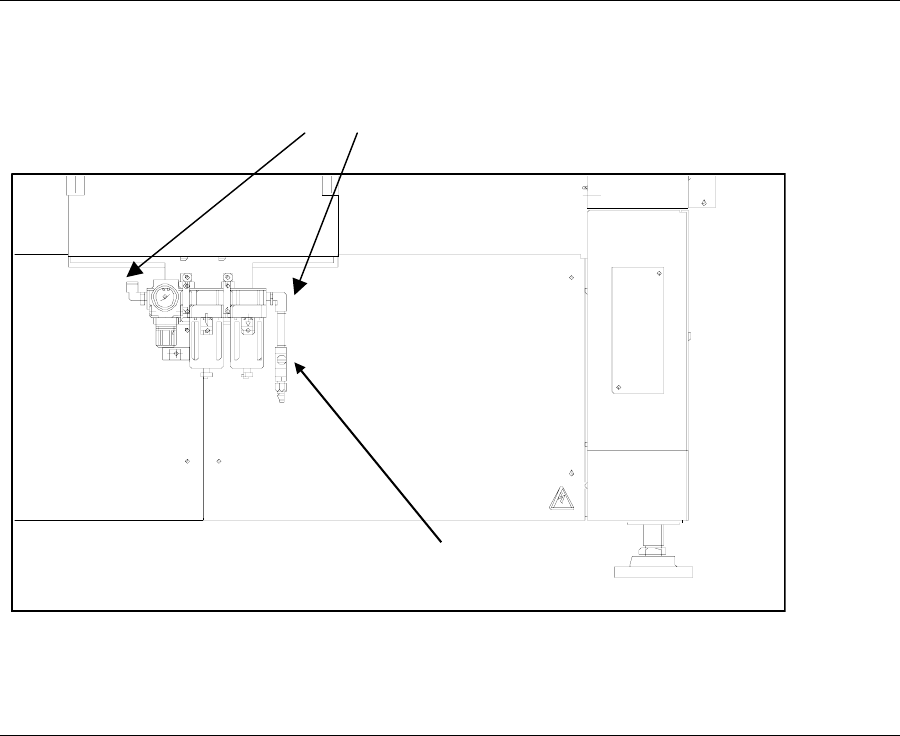
第 3 章 日常检查 Rev03
3.2 各部的检查
3.2.1 气压
请确认压力计压力为 0.49 Mpa。
压力在 0.44 Mpa ~ 0.54 Mpa 以外的情况下,请确认漏气有无厂方原因,如果没有异常,请
按照以下步骤,重新调整压力。
<主要压力设定步骤>
1)打开管道旋钮①。
关闭状态 打开状态
2)把「调节旋钮②」向下拉,旋转选钮,把使用气压调整到 0.49 Mpa。
图 3.2.1 排水阀和调节选钮 图 3.2.2 滤芯
1)更换周期:每 2 年,或是压力下降达到大约0.1 Mpa( 1 kgf /cm
2
)时。
2)更换方法
①一边降下滑动部分,一边把主体向左或右旋转45度向下摘下。
②滤芯B:把固定滤芯 B 的树脂元件向左旋转,
滤芯A:向左旋转A后,把滤芯A摘下。
③安装时,按相反的顺序安装即可。
注意
操作之前,请关闭指状阀的旋钮①。
※滤芯的检查、更换
排水阀
②
雾分器
滤芯
空气过滤器
滤芯
A
滤芯
B
树脂元件
滑动部分
3-2

第 3 章 日常检查 Rev03
3.2.2 管道和接头
请确认是否漏气。
确认是否漏气
フィンガバルブ
指状阀
图 3.2.3 气阀(主机背面)
3.2.3 各单元气缸系统
接通主机电源后,请选择「手动控制」项目,确认操作状况。
3-3