RP-1-Rev00.pdf - 第41页
在线预览 RP-1-Rev00.pdf PDF 文档。

A8
コンベア幅調整ユニット
Conveyor width adjustment unit
イラスト番号
Ref.No.
部品コード
Parts Code
部品名
Parts Name
Serial
No.
個数
Q'ty
備考
Remarks
同期
Repl.
31 EZ4-109-562-11
ロツカク ボルト
(M4X20)
BOLT (M4X20), HEXAGON
2
32 EZ2-023-130-21
ジクヨウ
C
ガタ トメワ
(STWN4)
RING,SHAFT CTYPE RETAINING(S*)
2
33 EZ7-683-404-04
6
カクアナツキボルト
3X8
BOLT,HEXAGON SOCKET 3X8
6
34 EZ2-652-911-21
U
ナツト
(M8X1.25 2
シユ
)
U NUT (M8X1.25 2 MAIN)
1
A-30

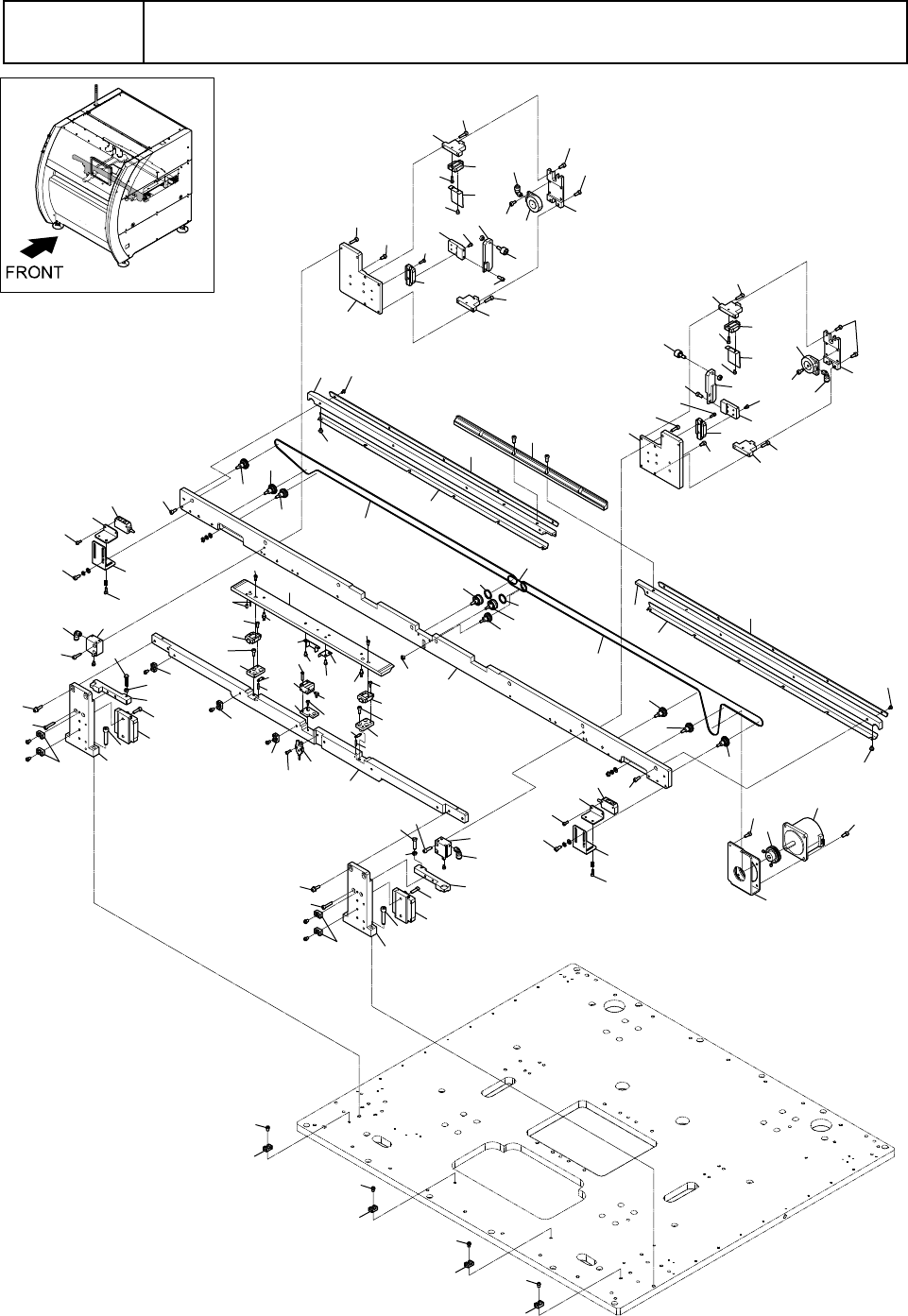
A9
コンベア手前側
Front side conveyor lane
13
9
63
63
18
53
52
42
67
52
42
67
18
53
58
58
58
58
53
53
53
13
9
29
28
57
37
38
36
55
26
34
27
50
45
8
1
14
35
16
67
22
63
63
63
66
47
48
51
7
6
7
6
49
60
60
59
56
61
41
63
50
5
61
30
22
66
19
69
68
53
33
19
9
33
20
21
17
63
17
16
67
63
40
62
59
62
40
12
12
43
44
10
10
32
32
31
31
10
57
55
11
10
15
59
16
66
67
62
66
65
67
16
66
65
67
39
39
41
24
41
24
35
63
66
46
54
47
25
67
23
23
61
61
63
9
67
64
64
67
67
3
63
2
63
1
1
11
62
53
53
53
61
67
68
4
41
63
60
60
69
A-31