RP-1-Rev00.pdf - 第9页
在线预览 RP-1-Rev00.pdf PDF 文档。

A1
アライメントユニット
Alignment unit
イラスト番号
Ref.No.
部品コード
Parts Code
部品名
Parts Name
Serial
No.
個数
Q'ty
備考
Remarks
同期
Repl.
30 EZ1-455-125-11
MANIFOLD (SS5J3-AZR02)
MANIFOLD (SS5J3-AZR02)
1
31 EZ7-683-404-04
6
カクアナツキボルト
3X8
BOLT,HEXAGON SOCKET 3X8
18
32 EZ7-683-420-04
6
カクアナツキボルト
4X10BOLT,HEXAGON
SOCKET 4X10
4
33 EZ7-683-425-04
6
カクアナツキボルト
4X20
BOLT,HEXAGON SOCKET 4X20
58
34 EZ7-683-440-04
6
カクアナツキボルト
5X20
BOLT,HEXAGON SOCKET 5X20
42
35 EZ4-184-270-12
ケ-ブル ベア
(TKP0180W40R28-26L*)
BARE(TKP0180W40R28-26L+PIA+*)
1
36 EZ1-492-017-12
シヨウメイ
ASSY
ILLUMINATION ASSY
1
37 EZ4-456-236-01
ケ-ブル トレイ
TRAY, CABLE
1
38 EZ4-455-445-01
ケ-ブル トレイ
2
TRAY (2), CABLE
1
39 EZ4-455-133-01
コテイ カナグ
BRACKET, FIXED
2
40 EZ4-455-132-02
キバン ブラケツト
BRACKET, PC BOARD
1
41 EZ4-455-131-01
ケ-ブル カバ-
COVER, CABLE
2
42 EZA-1899-202-A
SC MOUNT
SC MOUNT
3
43 EZ1-789-652-11
SDIOS-IN 16
キバン
ASSY
SDIOS-IN 16 BOARD ASSY
1
44 EZ1-789-653-11
SDIOS-OUT 16
キバン
ASSY
SDIOS-OUT 16 BOARD ASSY
1
45 EZ1-492-015-13
デンクウ レギユレ-タ
ASSY
REGULATOR ASSY, E PNEUMATIC
1
46 EZ4-455-130-01
ベア ブラケツト
BRACKET, BARE
1
47 EZ4-456-897-01
クロス ロ-ラ- リング
(CRBF3515ATUUC1)
RING (CRBF3515ATUUC1), ROLLER
4
48 EZ4-456-910-41
サポ-ト ユニツト
(BUM-10F)
SUPPORT UNIT (BUM-10F)
3
EZ4-700-040-31
ロツカク アナツキ ボルト
(M5X15)
BOLT (M5X15), HEXAGON SOCKET
10
EZ7-683-457-04
6
カクアナツキボルト
6X20
BOLT,HEXAGON SOCKET 6X20
16
A-5

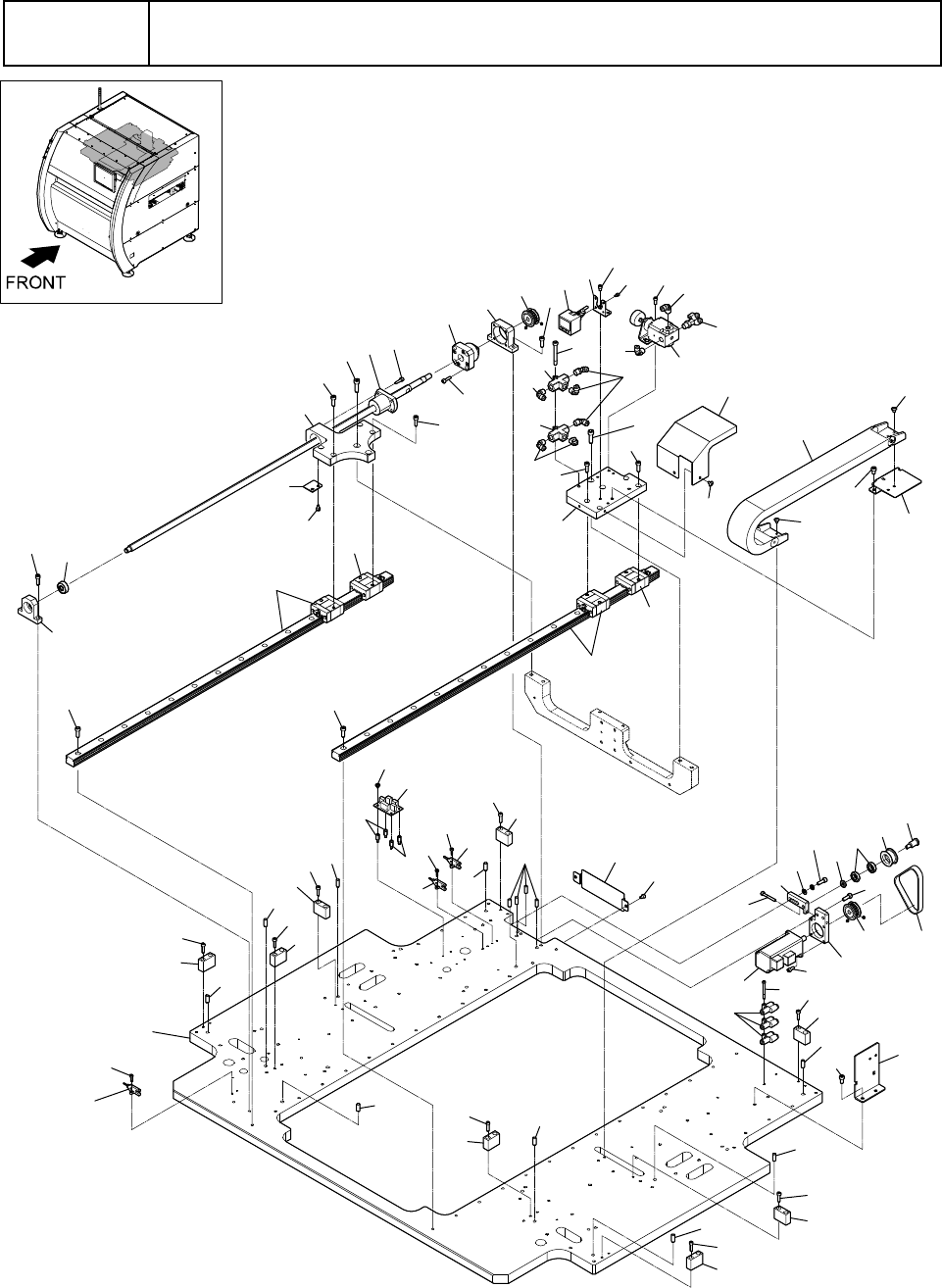
A2
版取付け・ヘッド駆動部
Screen unit/Head drive unit
15
14
13
43
43
26
28
46
23
43
52
27
26
42
42
43
22
42
11
10
4
45
22
6
39
1
6
2
3
22
45
42
45
43
21
46
22
42
22
42
22
42
22
42
10
10
36
50
22
42
5
8
41
47
17
25
29
47
24
43
53
20
48
18
19
7
16
25
31
32
30
37
43
46
35
33
31
12
23
28
47
34
34
34
34
43
34
51
52
43
40
9
44
40
40
49
38
10
10
10
10
10
10
10
42
A-6