RP-1-Rev00.pdf - 第55页
A 11 Z テーブルユニット Z table unit イラスト番 号 Ref.No. 部品コード Parts Code 部品名 Parts Name Serial No. 個数 Q'ty 備考 Remarks 同期 Repl. 1 EZA- 1899 - 202 -A SC MOUNT SC MOUNT 1 2 EZ1- 492 - 041 - 12 センサ - ASSY (S 1 ORG) SENSOR ASSY (S1…

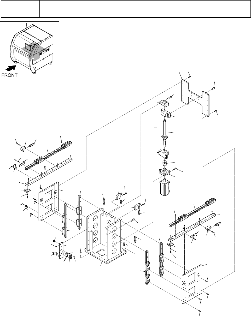
A11
Z
テーブルユニット
Z table unit
イラスト番号
Ref.No.
部品コード
Parts Code
部品名
Parts Name
Serial
No.
個数
Q'ty
備考
Remarks
同期
Repl.
1 EZA-1899-202-A
SC MOUNT
SC MOUNT
1
2 EZ1-492-041-12
センサ-
ASSY (S1ORG)
SENSOR ASSY (S1ORG)
1
3 EZ1-492-043-12
センサ-
ASSY (S1CW)
SENSOR ASSY (S1CW)
1
4 EZ1-492-043-22
センサ-
ASSY (S1CCW)
SENSOR ASSY (S1CCW)
1
5 EZ1-855-263-11
サ-ボ モ-タ
-
(SGMJV-08ADA2C)
MOTOR, SERVO (SGMJV-08ADA2C)
1
6 EZ4-455-181-01
メイン サポ-ト
SUPPORT, MAIN
1
7 EZ4-455-182-02
ナツト
ハウジング
HOUSING, NUT
1
8 EZ4-455-183-02
ガイド プレ-ト
1
PLATE (1), GUIDE
1
9 EZ4-455-184-02
レンケツ プレ-ト
PLATE, JOINT
1
10 EZ4-455-185-01
モ-タ ブラケツト
BRACKET, MOTOR
1
11 EZ4-455-186-01
ガイド プレ-ト
2
PLATE (2), GUIDE
1
12 EZ4-455-187-01
Z
ジク
ストツパ
STOPPER, Z AXIS
2
13 EZ4-455-189-02
ロツク プレ-ト
PLATE, LOCK
2
14 EZ4-455-190-01
ドグ
DOG
1
15 EZ4-455-191-01
ガイド プレ-ト
X
PLATE (X), GUIDE
2
16 EZ4-455-192-01
ストツパ
1
STOPPER (1)
2
17 EZ4-455-193-01
ストツパ
2
STOPPER (2)
2
18 EZ4-455-195-03
センサ
ブラケツト
BRACKET, SENSOR
1
19 EZ4-455-197-01
テ-ブル ドグ
Y
DOG (Y), TABLE
1
20 EZ4-456-924-01
アブソ-バ
(KSH8X10)
ABSORBER (KSH8X10)
2
21 EZ4-456-939-01
リニア
ウエイ
(MXD25C2R450E179)
LINEAR WAY (MXD25C2R450E179)
4
22 EZ4-456-940-01
リニア
ウエイ
(MXSG25C2R720E046)
LINEAR WAY (MXSG25C2R720E046)
2
23 EZ4-456-951-11
ストツパ
(UST12-40)
STOPPER (UST12-40)
2
24 EZ4-456-951-21
ストツパ
(UST12-70)
STOPPER (UST12-70)
2
25 EZ4-456-955-11
カツプリング
(XGT-39C-15X19)
COUPLING (XGT-39C-15X19)
1
26 EZ4-461-322-01
ボ-ルネジ
(FX2505PS-HPNR-0367X0*)
SCREW (FX2505PS-HPNR-
0367X024*)
1
27 EZ4-700-043-31
ロツカク
アナツキ
ボルト
(M3X10)
BOLT (M3X10), HEXAGON SOCKET
8
28 EZ4-705-584-11
スペ-サ
(SQ-10)
SPACER (SQ-10)
4
29 EZ4-716-148-07
ロツカク
アナツキ
ボルト
(M8X30 SUS)
BOLT (M8X30 SUS), SOCKET
2
A-43

A11
Z
テーブルユニット
Z table unit
イラスト番号
Ref.No.
部品コード
Parts Code
部品名
Parts Name
Serial
No.
個数
Q'ty
備考
Remarks
同期
Repl.
30 EZ4-716-149-04
ロツカク
アナツキ
ボルト
(M10X30 SUS)
BOLT (M10X30 SUS), SOCKET
4
31 EZ4-716-149-06
ロツカク
アナツキ
ボルト
(M10X40 SUS)
BOLT (M10X40 SUS), SOCKET
6
32 EZ7-682-947-09
+PSW 3X6
SCREW +PSW 3X6
4
33 EZ7-683-419-04
6
カクアナツキボルト
4X8
BOLT,HEXAGON SOCKET 4X8
2
34 EZ7-683-420-04
6
カクアナツキボルト
4X10
BOLT,HEXAGON SOCKET 4X10
4
35 EZ7-683-453-04
6
カクアナツキボルト
6X12
BOLT,HEXAGON SOCKET 6X12
8
36 EZ7-683-459-04
6
カクアナツキボルト
6X25
BOLT,HEXAGON SOCKET 6X25
42
37 EZ7-683-461-04
6
カクアナツキボルト
6X30
BOLT,HEXAGON SOCKET 6X30
24
38 EZ7-683-465-04
6
カクアナツキボルト
6X40
BOLT,HEXAGON SOCKET 6X40
4
39 EZ7-688-006-11
W 6, MIDDLE
W 6, MIDDLE
12
40 EZ4-456-876-01
サポ-ト ユニツト
(BUK-20A)
SUPPORT UNIT (BUK-20A)
1
A-44
