HF Circuit .pdf - 第211页
5 - 2 0032152 4-050 101ND 4 Sensor , Z ax is botto m 27.06.1996 The fo llowin g lab els have to be stuck on! MAXIMUM COMPONENT HEIGHT: 7 mm SOLDER CABLE F ROM MOUNTING SI DE AND DO NOT BEND 360 mm 210mm E E D D 01. 01. 2…

5 - 1
5 Printed circuit boards
00321469-050101ND4 CO illumination (Sh. 1 of 2)
00321469-050101ND4 CO illumination (Sh. 2 of 2)
MS-DORN
01.10.01
00321469-050101ND4
Component illumination
Component layout
Sheet
1+
X4
R5
V19
R53
C9
C13
J4
C10
R38
V8
V17V18
V10 V9
R30
R21
R31
R13
R20
R29
R12
R39
MS-5208
R45
R54
R44
V15V16 V13V14 V12
R33
R17
V7 V6
R10
R19
R28
R37
R11
R9
R36
R18
R27
V5 V4 V3
R25
R16
R8
R26
R35
R24
R7
R34
R15
R52
P3
V11
R32
R14
R40
R41
V24
J3
R3
R50
V23
R2
J2
MP1 MP2
R56
R48
MP4 MP5
P1
R47
R42
R57
V2
R43
V21
R6
R51
R46
V20
R49
MP3
R55
P2
C12
C8
C4
C5
J6
V22
J1
R1
C11
V1
R22
R58
J5
R4
R23
X1
C7
C6
Maximum component height: ON TOP 10.0 mm, ON BOTTOM 14.0 mm
Remove all pins marked with an x.
Stat. Modified Date Name
Date
Name
Check.
Stand.
Solder C14 between pin 1 of X3 and milled conductor
C14
Component illumination, steep
Component camera
Connector
X4
X1
Assembly
pflichten zu Schadenersatz. Alle Rechte vorbehalten, ins
besondere für den Fall der Patenterteilung oder GM-Eintragung
wertung und Mitteilung ihres Inhalts nicht gestattet, soweit
Weitergabe sowie Vervielfältigung dieser Unterlage,Ver-
nicht ausdrücklich zugestanden. Zuwiderhandlungen ver-
Proprietary date, company confidential. All rights reserved.
Confie a titre de secret d'entreprise. Tous droits reserves.
Confiado como secrete industrial. Nos reservamos todos los derechos.
Comunicado como segredo empresarial. Reservados todos os direitos.
s
A&D EA
MS-DORN
01.10.01
00321469-050101ND4
Component illumination
Component layout
Sheet
2-
Stat. Modified Date Name
Date
Name
Check.
Stand.
X2
C3
C2
X3
C1
The following labels have to be stuck on!
B: Inspection label
A: Identification label
C1 to C3 have to be glued!
C: ESD label
Assembly
X3 Vision board Smart, 03000900
Component illumination, flat, medium
Connector
X3
X2
pflichten zu Schadenersatz. Alle Rechte vorbehalten, ins
besondere für den Fall der Patenterteilung oder GM-Eintragung
wertung und Mitteilung ihres Inhalts nicht gestattet, soweit
Weitergabe sowie Vervielfältigung dieser Unterlage,Ver-
nicht ausdrücklich zugestanden. Zuwiderhandlungen ver-
Proprietary date, company confidential. All rights reserved.
Confie a titre de secret d'entreprise. Tous droits reserves.
Confiado como secrete industrial. Nos reservamos todos los derechos.
Comunicado como segredo empresarial. Reservados todos os direitos.
s
A&D EA

5 - 2
00321524-050101ND4 Sensor, Z axis bottom
27.06.1996
The following labels have to be stuck on!
MAXIMUM COMPONENT HEIGHT: 7 mm
SOLDER CABLE FROM MOUNTING SIDE AND DO NOT BEND
360 mm
210mm
EE
DD
01.
01. 25.10.99
25.10.99Prod. status
Doc. status
Tek
Tek
Mayerhofer
X11
12783
KEY
KEY
B
A
CC
AA
BB
Silicone hose
A: IDENTIFICATION LABEL
B: INSPECTION LABEL
1122
00321524-050101ND4
VIEW ONTO CABLE SIDE
= KEY
SMD Placement System Siplace HF
Sensor z axis bottom
20 mm
1
1
2
Sheet
1
1
Sh.
7
X11
X11
*
V1
3344
* : refer to 00321524-050101LD4
05. Funct. status 25.10.99 Tek
ModifiedStat.
NameDate
Date
Author
Check.
Stand.
pflichten zu Schadenersatz. Alle Rechte vorbehalten, ins
besondere für den Fall der Patenterteilung oder GM-Eintragung
wertung und Mitteilung ihres Inhalts nicht gestattet, soweit
Weitergabe sowie Vervielfältigung dieser Unterlage,Ver-
nicht ausdrücklich zugestanden. Zuwiderhandlungen ver-
Proprietary date, company confidential. All rights reserved.
Confie a titre de secret d'entreprise. Tous droits reserves.
Confiado como secrete industrial. Nos reservamos todos los derechos.
Comunicado como segredo empresarial. Reservados todos os direitos.
s
A&D EA

5 - 3
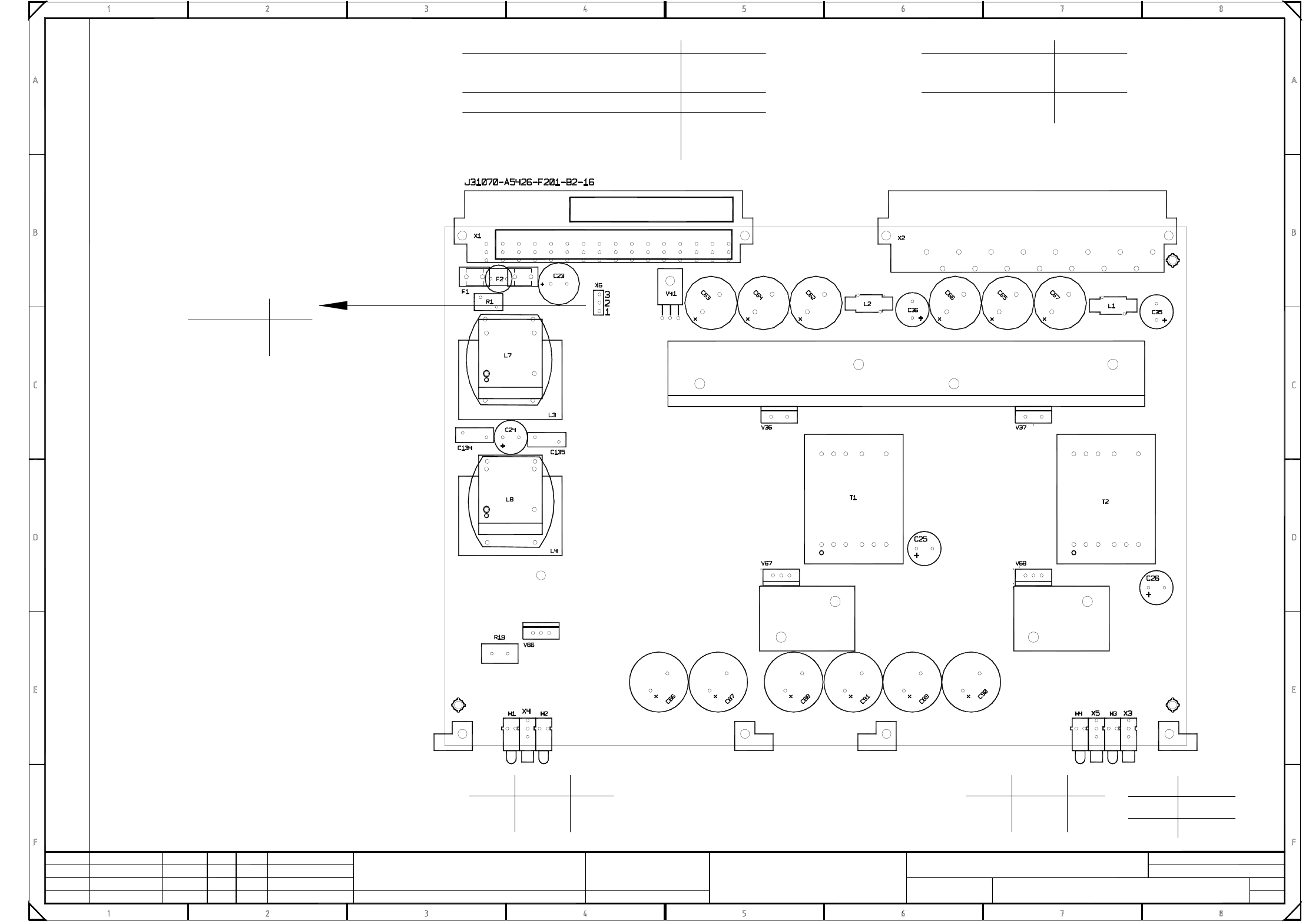
00328492-020101ND3 KSP-SV501, power supply (Sh. 1 of 2)
b) Position for the inspection label
a) Position for the identification label
KSP-SV501
Component mounting diagram
00328492-020101ND3
Sheet
1
Sh.
2
b)
a)
X6
Jumper 1 - 2
Jumper 2 - 3 15V
12V
green
green
H2
H1
LED
+15V
+12V
H4
H3
green
green
-12V
-15V
LED
X3
X4
X5
GND
-12V
+12V
X2
Z4 / Z8 / Z12 / Z16
D6 / D10 / D14
Z20 / Z24 / Z28 / Z32
D22 / D26 / D30
+12V
-12V
Z4 / Z6 / B4 / B6 / D4 / D6
Z8 / Z10 / B8 / B10 / D8 / D10
Z2 / B2 / D2
Z22 /24 / 26 / 28/ 30 / 32
X1
VIN +
VIN GND
PE
SEC_GND
B22 /24 / 26 / 28/ 30 / 32
D22 /24 / 26 / 28/ 30 / 32
Comunicado como segredo empresarial. Reservados todos os direitos.
Confiado como secrete industrial. Nos reservamos todos los derechos.
Confie a titre de secret d'entreprise. Tous droits reserves.
Proprietary date, company confidential. All rights reserved.
nicht ausdrücklich zugestanden. Zuwiderhandlungen ver-
Weitergabe sowie Vervielfältigung dieser Unterlage,Ver-
wertung und Mitteilung ihres Inhalts nicht gestattet, soweit
besondere für den Fall der Patenterteilung oder GM-Eintragung
pflichten zu Schadenersatz. Alle Rechte vorbehalten, ins
Status Modified Date Name Stand.
Check.
Author
Date 17.02.2003
Rutz B.
Orig. Repl. f. Repl. by
s
A&D EA