PTS-NXT2-01JE.pdf - 第729页
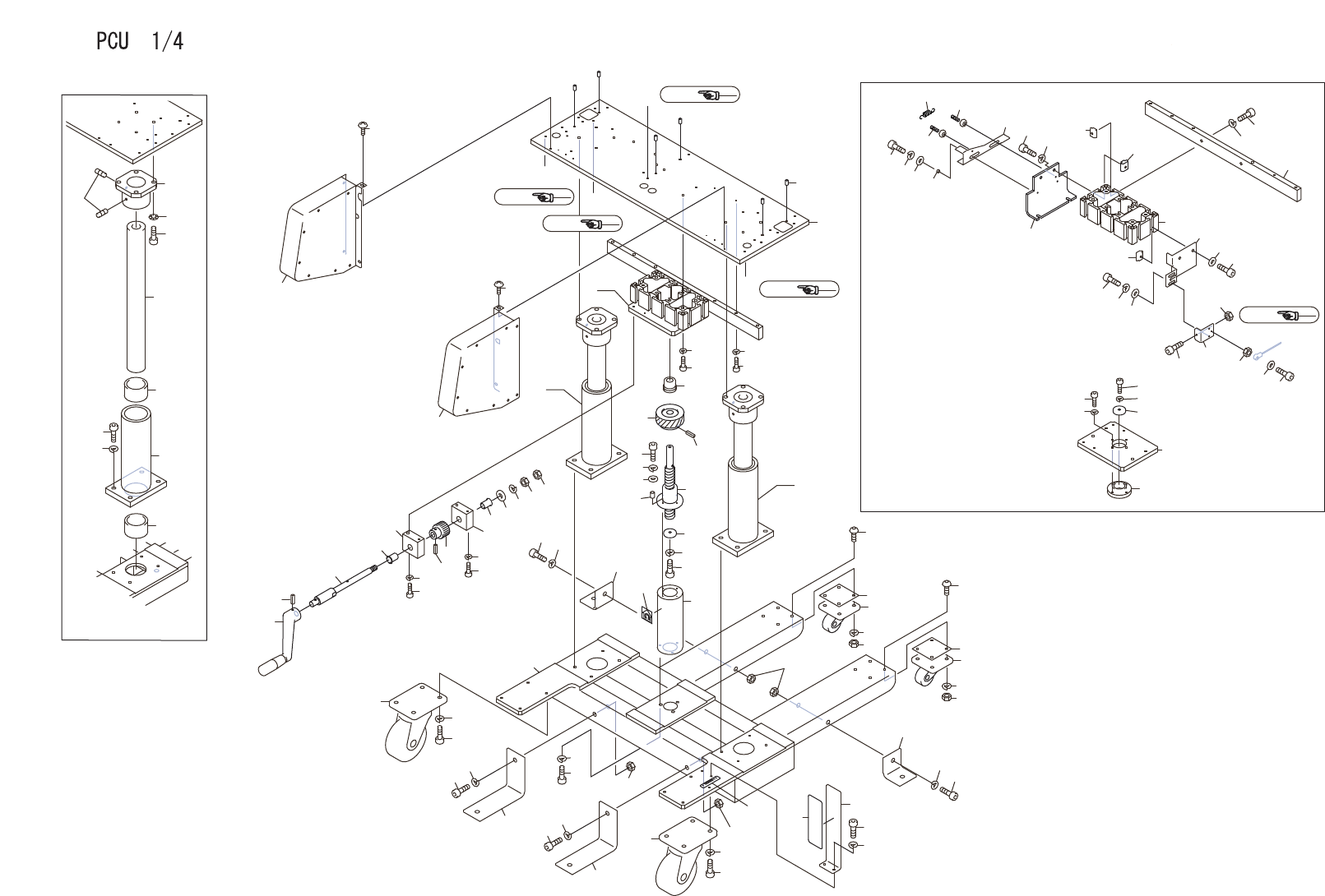
TRAY PALLET STAND トレイパレットスタンド AA25N02 No. Drg.No. & Code No. QTY Description Rating Materials Remarks 番号 図番 & コード番号 個 数 品名 規格 材質 備考 1 H3259R 22 FRAME フレーム ND853 L=385 OT 2 H3259W 4 FRAME フレーム ND853 L=1160 OT 3 H…

A
1
2
4
19
3
5
6
5
6
5
6
7
7
7
8
9
9
10
10
13
13
11
11
10
12
12
17
18
18
7
7
19
19
15
14
16
7
AA25N02
162
PTS-NXT2-01JE Vol.3

TRAY PALLET STAND
トレイパレットスタンド AA25N02
No. Drg.No. & Code No. QTY Description Rating Materials Remarks
番号 図番 & コード番号 個数 品名 規格 材質 備考
1 H3259R 22 FRAME フレーム ND853 L=385 OT
2 H3259W 4 FRAME フレーム ND853 L=1160 OT
3 H3259S 2 FRAME フレーム ND853 L=770 OT
4 H3259T 1 FRAME フレーム ND853 L=830 OT
5 H3176C 4 PLATE プレート SFK-570A OT
6 H5299A 16 BOLT, HEX SOCKET ボルト 六角穴 M05X012 FE
7 N10090 196 NUT ナット SFB-013 OT
8 K2027F 2 CASTER キャスタ HCHA12-100 OT
9 K2027G 2 CASTER キャスタ HCHAS12-100 OT
10 PB40891 3 PLATE プレート FE
11 PB40901 2 PLATE プレート FE
12 K5213Z 20 SCREW, C/R TRUSS 小ネジ 十穴トラス M05X005 ユニクロメッキ FE
13 AA29G00 4 PLATE プレート OT
14 PJ07630 4 PLATE プレート PL
15 K5361H 16 SCREW, HEX SOCKET COUNTERSUNK 小ネジ 六角穴皿 M05X010 FE
16 H2093W 176 PIN, PARALLEL ピン 平行 ゚4X10 Bシュ (H8) FE
17 H32021 72 BKT BKT HBLFSN5 OT
18 H5298A 144 BOLT, HEX SOCKET ボルト 六角穴 M05X010 FE
19 K2174D 6 CAP キャッ
プ
20カクフレームキャップ OT
163
PTS-NXT2-01JE Vol.3

U
U
AA
BB
V
GG
Ref.4/
Ref.2/
Ref.2/
DETAIL U
DETAIL V
980
960
940
920
900
880
CC
Ref.2/
JJ
Ref.2/
1
30
41
42
43
11
10
50
49
50
49.1
9
11
10
9
29
28
98,
99
35
36
37
34
39
40
27
16
19
22
23
24
47
56
48
48
51
55
52
54
53
62
61
38
53
17
18
19
20
21
26
25
65
64
47
44
31
32
33
45
46
59
60
63
66
67
68
13
14
12
15
7
8
5
6
5.1
69
72
72.1
72.2
72.3
72.4
70
71
73
74
75
76
77
78
7
8
5
6
5.1
107
108
109
110
111
112
113
58
57
93
94
95
97
96
100
101
102
101
102
103
104
105
106
103
104
105
100
79
81
80
102.1
102.1
114
UX04304(M6S,M6II)
UX04204(M3S,M3II)
164
PTS-NXT2-01JE Vol.3