NXTII spec.pdf - 第48页
Peripheral Equipment Edition 2.0E - 48 - NXT II S pecifications 10. Peripheral Equipment 10.1. Peripheral Equipment A complete range of perip heral equipment is available. 1 0 .1.1. Conveyors Shuttle conveyors ex clus …

Module Configuration
Edition 2.0E - 47 - NXT II Specifications
Optional units
Waste tape processing unit Feeders Nozzles Reject parts conveyor
Auto back-up pins DFU (Dip flux unit)
Tray feeder-M
Tray feeder-L

Peripheral Equipment
Edition 2.0E - 48 - NXT II Specifications
10. Peripheral Equipment
10.1. Peripheral Equipment
A complete range of peripheral equipment is available.
10.1.1. Conveyors
Shuttle conveyors exclusively for the NXT are available. There are dependant
and independent types. The conveyor width is changed automatically for
dependant conveyors and changed manually for independent conveyors.
Note: Please refer to “NXT Shuttle Conveyor Specifications” for further details on conveyor related specifications.

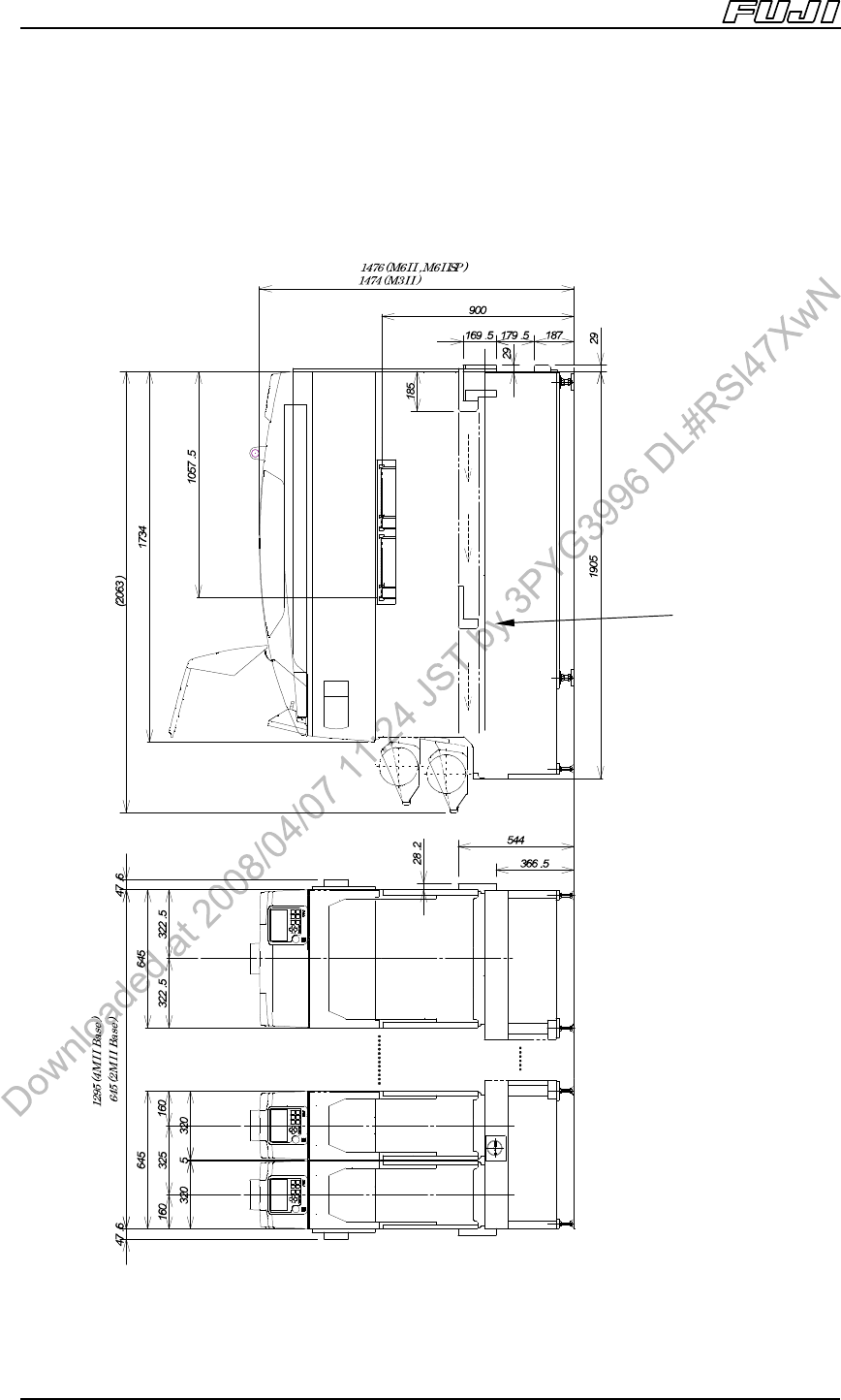
Machine Illustrations
Edition 2.0E - 49 - NXT II Specifications
11. Machine Illustrations
11.1. Machine Dimensions
11.1.1. Machine Dimensions (without MTU-L)
(Units: mm)
Note: These are the machine dimensions with a panel conveyance height of 900 mm.
The side cover
switch is also pulled
out when the module
is pulled forward.