NPM-W中文说明书.pdf - 第118页
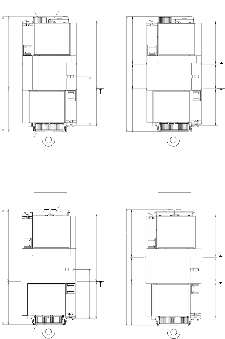
NPM-W 2014.0303 - 1 12 - ( 单位 : mm) ■ 单式托盘供料器连接时 ■ 双式托盘供料器连接时 1 616 954 1 095.5 820.5 1 51 1.5 2 570 1 616 954 1 095.5 820.5 1 51 1.5 单式托盘供料器 13 站料架 座 双式托盘供料器 交换台车 2 570 前 侧 交换台车 前 侧 前 侧 前 侧 1 055.5 943.5 2 570 571 810 9…

NPM-W 2014.0303
- 111 -
13.
尺寸图
(
单位
: mm)
■ 交换台车连接时
Remarks
上述示图的缩小比例与实际机器在严格上讲,并不完全一致。
在研讨生产线构成和尺寸时,请另行索取资料。
本机下部如有设置通风道等时,请确保与主体间空隙保持
40 mm
以上。
76
前 侧
1 629
1 514
1 444
900
1 280 (传送带长度)
1 265 (罩外形)
电源
Air
76
2 465
954
2 194
1 504
220
1 095.5
820.5 1 511.5
交换台车
交换台车
前 侧
2 465
810 951 571
571 943.5 943.5
单轨传送带规格 双轨传送带规格
基板传送基准
基板传送基准
(前侧轨道)
基板传送基准
(后侧轨道)
基板传送高度

NPM-W 2014.0303
- 112 -
(
单位
: mm)
■ 单式托盘供料器连接时
■ 双式托盘供料器连接时
1 616 954
1 095.5
820.5 1 511.5
2 570
1 616 954
1 095.5
820.5 1 511.5
单式托盘供料器13 站料架座
双式托盘供料器
交换台车
2 570
前 侧
交换台车
前 侧
前 侧
前 侧
1 055.5 943.5
2 570
571
810 951 571 810 951 571
1 055.5 943.5 571
2 570
单轨传送带规格 双轨传送带规格
单轨传送带规格 双轨传送带规格
基板传送基准
基板传送基准
(前侧轨道)
基板传送基准
(后侧轨道)
基板传送基准
基板传送基准
(前侧轨道)
基板传送基准
(后侧轨道)

NPM-W 2014.0303
- 113 -
(
单位
: mm)
■ 调整螺栓的配置图
单轨传送带规格
双轨传送带规格
75 75 1 113
Air
475
246 454.5 1 165.5 246
1 001 636
1 411.5
2 112
700.5
993 120 150
1 263
电源
基板传送基准
前 侧
75 75 1 113
Air
475
246 444 605 246
1 001 636
851
2 112
690
993 120 150
1 263
电源
基板传送基准
(
前侧轨道
)
前 侧
基板传送基准
(
后侧轨道
)
571
571