NPM-W中文说明书.pdf - 第84页
NPM-W 2014.0303 - 78 - 7. 印刷基板设计基准 7.1 印刷基板规格概要 ■ 单轨传送带规格 项 目 规 格 基板尺寸 50 × 50 mm ~ 750 × 550 mm 贴装 / 检查可能范围 50 × 44 mm ~ 750 × 544 mm ※ 有关点胶范围的详细情况请参照 「 4.4 有关点胶范围的限制」。 基板厚度 0.3 mm ~ 8.0 mm 基板重量 3.0 k g以 下 ※ 1 基板弯曲容许 基板…

NPM-W 2014.0303
- 77 -
6.
其他标准规格
6.1
程序功能
数据编制都是在数据编制系统
NPM-DGS
进行。在
NPM-DGS
作成的生产数据,通过
FA
电脑下载于设备。
但是,部分数据修正也可在机器主体上进行。
在设备主体修正的数据以及校正内容被保存,可以再利用。
※
NPM-DGS
用的硬件,请客户准备。
(NPM-DGS
是其他产品。
)
有关
NPM-DGS
的详细情况,请参照别册的「
NPM-DGS
规格说明书」。
6.2
信号塔
信号灯的颜色和亮灯标准
信号灯
颜色
分 类
亮灯标准
红色
紧急停止错误
・ 马达等的轴异常
・ 空气压力下降
・ 基板支撑部异常
・ 贴装头故障
・ 编带故障
等
黄色
中途停止错误
・ 吸着错误
・ 贴装错误
・ 基板传送错误
・ 元件用完
・ 吸嘴更换错误
等
绿色
运转中
自动运转等动力为
ON
时
(
但是,红色和黄色闪烁时熄灯
)
蓝色或者
红色
连接的设备中,成为瓶颈的设备
(
循环时间最长的设备
)
蓝色灯亮。
另外,按紧急停止开关,红色灯亮。
※ 亮灯规格,可以变更设定。
设备设定
PCB 数据
元件数据
最佳化
生产数据
标准
:
横置
距离地面
1 514 mm
红
黄
绿
(
蓝色或者红色
)
红
黄
绿
距离地面
1 629 mm
也可以纵置。
高度从地面起是
1 629 mm
。
(
蓝色或者红色
)
数据编制系统 NPM-DGS
网板 Gerber 数据
(锡膏检查时)

NPM-W 2014.0303
- 78 -
7.
印刷基板设计基准
7.1
印刷基板规格概要
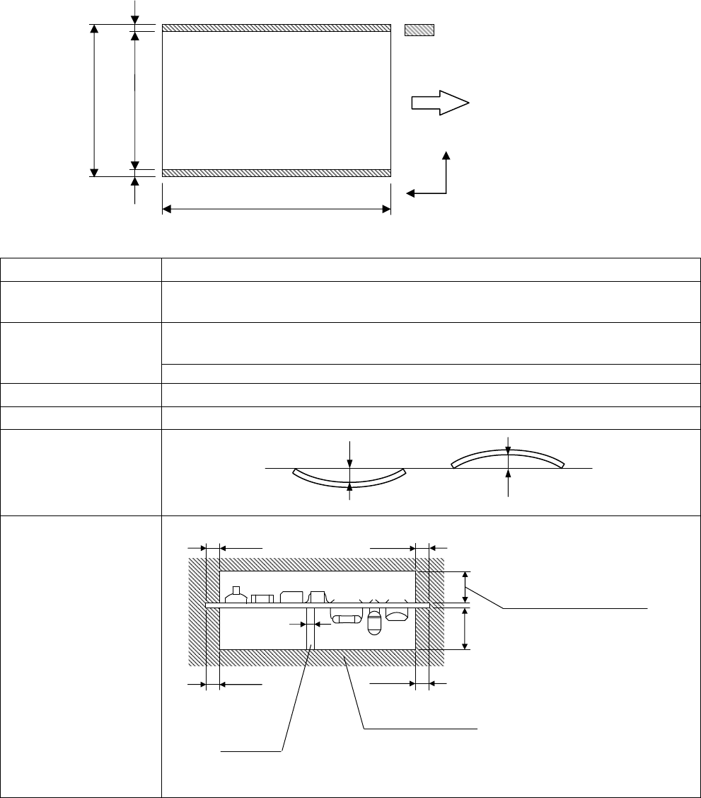
■ 单轨传送带规格
项 目
规 格
基板尺寸
50 × 50 mm ~ 750 × 550 mm
贴装
/
检查可能范围
50 × 44 mm ~ 750 × 544 mm
※
有关点胶范围的详细情况请参照「
4.4
有关点胶范围的限制」。
基板厚度
0.3 mm ~ 8.0 mm
基板重量
3.0 k
g以下
※
1
基板弯曲容许
基板断面
贴装前基板状态
※
1
基板重量
(
包括载体重量
)
超过
3.0 k
g 的情况时,请另行联络。
※
2
使用支撑销自动更换功能的情况时,支撑销形状、销的配置条件等有异。
详细请参阅「
9.
选购件
:
支撑销的自动更换」。
※ 有关陶瓷基板的对应请另行联络。
禁止有元件的范围
16
吸嘴贴装头
: 6.5 mm
12
吸嘴贴装头
: 6.5 mm
8
吸嘴贴装头
: 12 mm
3
吸嘴贴装头
: 28 mm
点胶头
: 28 mm
支撑销
※
2
(
设置在与反面元件距离隔开
2 mm
以上的位置。
)
28 mm
3 mm
3 mm
3 mm
φ
3
3 mm
Max. 0.5 mm
Max. 0.5 mm
Y
X
固定侧
禁止有元件
(
或者锡膏等
)
的范围
3 mm
50 mm ~ 750 mm
3 mm
50 mm ~ 550 mm
44 mm ~ 544 mm
流向

NPM-W 2014.0303
- 79 -
■ 双轨传送带规格
( )
内的数値
:
单轨模式时
项 目
规 格
基板尺寸 双轨模式 : 50 × 50 mm ~ 750 × 260 mm
单轨模式
※1
: 50 × 50 mm ~ 750 × 510 mm
贴装
/
检查可能范围
双轨模式 : 50 × 44 mm ~ 750 × 254 mm
单轨模式
※1
: 50 × 44 mm ~ 750 × 504 mm
※
有关点胶范围的详细情况请参照「
4.4
有关点胶范围的限制」。
基板厚度
0.3 mm ~ 8.0 mm
基板重量
3.0 k
g以下
※
2
※
3
基板弯曲容许
基板断面
贴装前基板状态
※
1
单轨模式生产时,需要单轨模式对应的基板支撑块
(
选购件
)
。
※
2
基板重量
(
包括载体重量
)
超过
3.0 k
g 的情况时,请另行联络。
※
3
基板重量是
2 k
g
~ 3 k
g 时,为中速传送或者低速传送。
※
4
使用支撑销自动更换功能的情况时,支撑销形状、销的配置条件等有异。
详细请参阅「
9.
选购件
:
支撑销的自动更换」。
※ 有关陶瓷基板的对应请另行联络。
禁止有元件的范围
支撑销
※
4
(
设置在与反面元件距离隔开
2 mm
以上的位置。
)
28 mm
3 mm
3 mm
3 mm
φ
3
3 mm
16
吸嘴贴装头
: 6.5 mm
12
吸嘴贴装头
: 6.5 mm
8
吸嘴贴装头
: 12 mm
3
吸嘴贴装头
: 28 mm
点胶头
: 28 mm
Max. 0.5 mm
Max. 0.5 mm
50 mm ~ 260 mm
(50 mm ~ 510 mm)
44 mm ~ 254 mm
(44 mm ~ 504 mm)
Y
X
固定侧
3 mm
50 mm ~ 750 mm
3 mm
流向
禁止有元件
(
或者锡膏等
)
的范围