AVK3维修手册.pdf - 第110页
AVK3 维修手册 5.6 砧座装置 D77MCC-Y4-400-A0 5.6-3 传感器位置图( A ) A 轴 (+) 安全限位 A 轴原点 A 轴 (-) 安全限位

AVK3
维修手册
5.6
砧座装置
D77MCC-Y4-400-A0
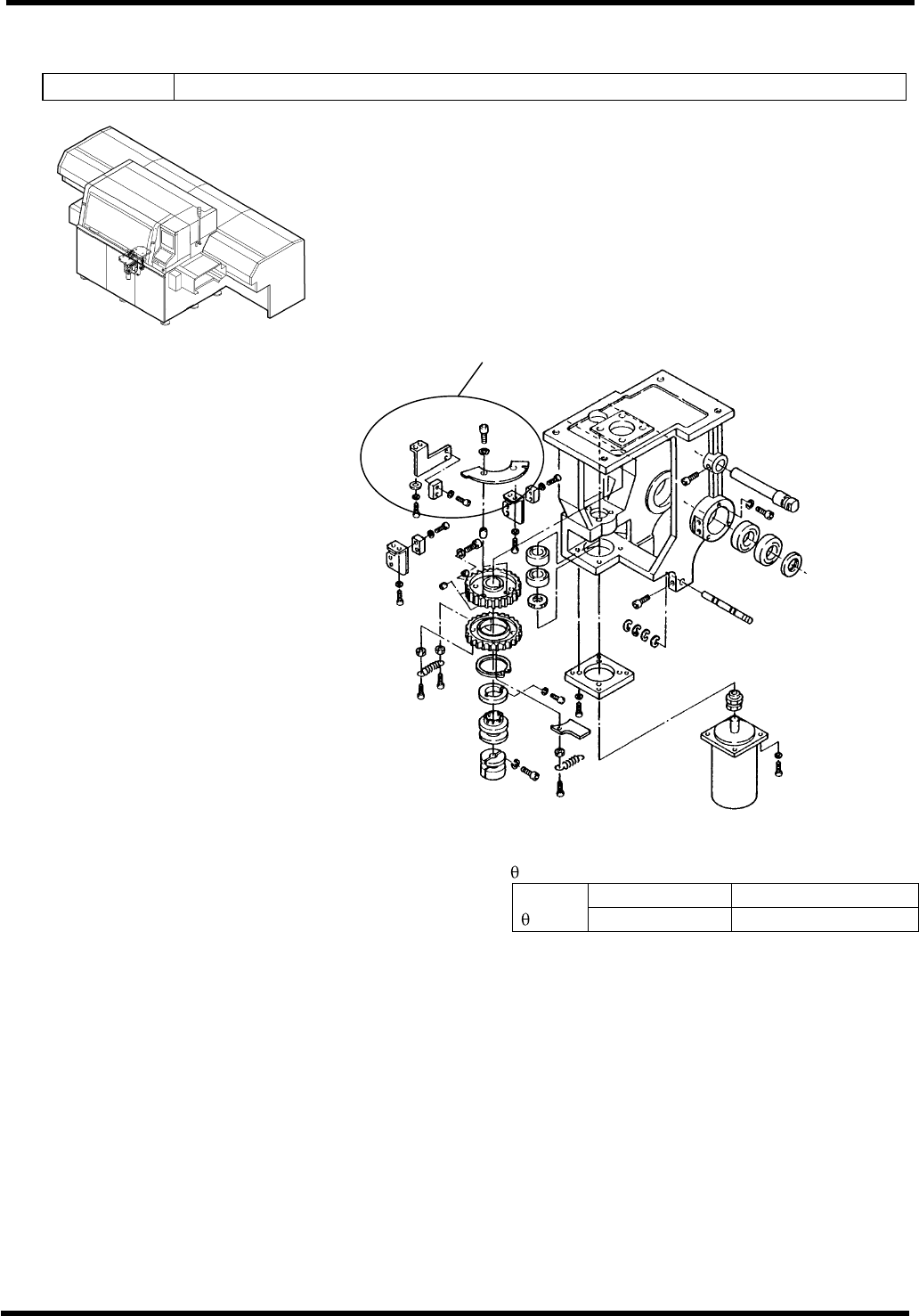
5.6-2
5.6.2
下砧座
装置编号:
1087112000
A
轴过限位置
-
侧离原点
-5°
~机械终点前
插入头
A
+
侧离
92° 95°
~机械终点前
部件
A
(见下页)

AVK3
维修手册
5.6
砧座装置
D77MCC-Y4-400-A0
5.6-3
传感器位置图(
A
)
A
轴
(+)
安全限位
A
轴原点
A
轴
(-)
安全限位

AVK3
维修手册
5.6
砧座装置
D77MCC-Y4-400-A0
5.6-4