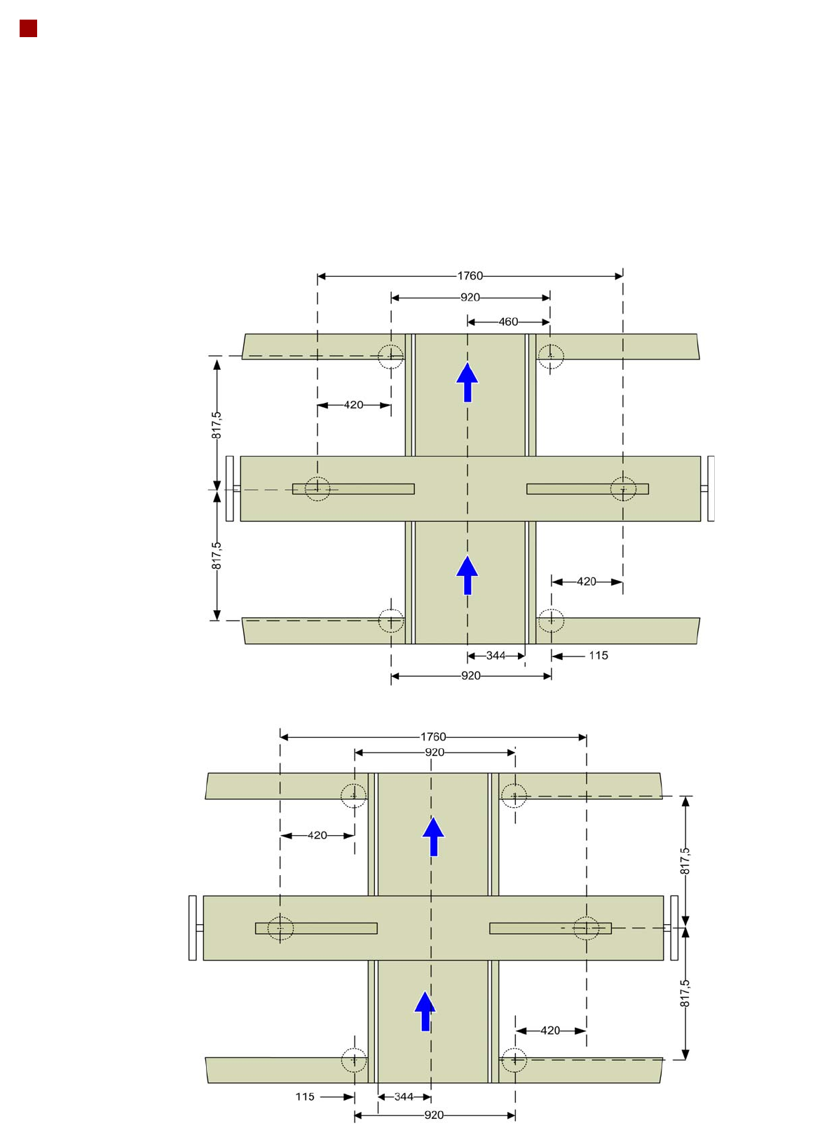
SIPLACE CA4 V2规格说明书.pdf - 第48页
48 Technical data Spacing distances single lane conveyor Fixed conv eyor side at maxi- mum right position a . a) The value depends on the position of the fixed side. See tab le of adjustable side positions on page 17. Al…

47
Technical data
Maneuvering radii for the X component trolleys
Working area (A) and minimum distance to adjacent machine 500 mm
Maneuvering distance (R) location position 600 mm
Distance L1: Machine center to outer edge of X component trolley 1470 mm
Distance L2: Machine center to wall 2300 mm

