YG300_Ope_K.pdf - 第41页
1-13 1 5 . 컨 베 이 어 유 니 트 기판 을 고 정하기 위해 사 용 하 는 컨베이 어 유 니트 에 대 해 설명합 니다 . 3 1 컨베이어 유니트 2 4 5 2 7113 - M 3 - 0 0 1. 푸 쉬 업 플 레 이 트 푸 쉬 업상 에 푸 쉬 업핀을 설 치해 서 , 기판 을 아 래방향 에 서부 터 서포 트합 니다 . 2 . 푸 쉬업 핀 푸 …

1-12
1
■ 마운터 측
마운터측 스위치・센서
3
1
2
4
27112-M3 -00
1. 클램프 ON/OFF 스위치
일괄교환대차를마운터본체에밀어넣은후이스위치를왼쪽으로돌리면 , 피더플레이트부가상승하여 ,일괄교환대차
가자동으로클램프됩니다 .
2. 전진부 센서
일괄교환대차가마운터본체에들어가면 , 이센서의LED 가녹색으로점등합니다 .
3. 논 스톱용 에리어 센서 ( 옵션 )
논스톱사양의마운터에는안전을위한에리어센서가부착되어있습니다 .일괄교환대차가마운터에들어가면 ,대차입
구센서가반응하여에리어센서기능을OFF 로합니다 .
4. 논 스톱 대차 입구 센서 ( 옵션 )
논스톱사양의마운터에는대차입구센서가부착되어있습니다 .일괄교환대차를마운터에밀어넣으면 , 이센서가반응
하여에리어센서기능을OFF 로합니다 .

1-13
1
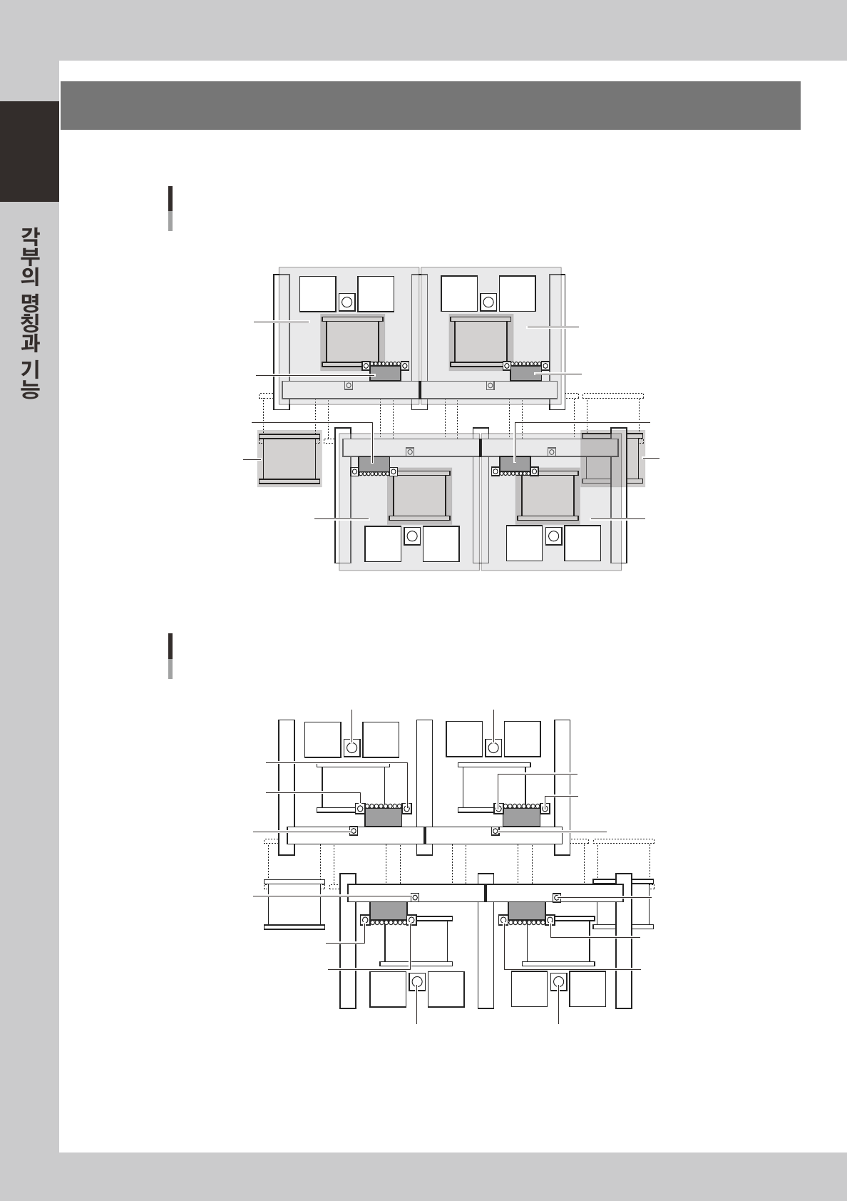
5. 컨베이어 유니트
기판을고정하기위해사용하는컨베이어유니트에대해설명합니다 .
3
1
컨베이어 유니트
2
4
5
27113-M3 -00
1. 푸쉬업 플레이트
푸쉬업상에푸쉬업핀을설치해서 ,기판을아래방향에서부터서포트합니다 .
2. 푸쉬업 핀
푸쉬업상에설치해서 ,기판을아래방향으로부터고정시킵니다 .
3 클램프식 기판고정 유니트
기판의틀을아래방향으로부터들어올려서 ,기판누름플레이트사이에끼워서고정합니다 .
4. 기판 플랩
기판고정시에위에서부터기판의틀을누릅니다 .셋업시에는 ,전후로움직일수있습니다 .
5. 클램프 레버
기판플랩을고정 / 해제할때사용합니다 .

1-14
1
6. 장비의 구성
본장비는다음과같이구성되어있습니다 .
장비구성
기판 우→좌, 좌→우 공통
실장테이블 D
실장테이블 B
헤드유니트 B
헤드유니트 D
헤드유니트 C
헤드유니트 A
실장테이블 C 실장테이블 A
실장스테이지 B
우측 반송
스테이지
실장스테이지 A실장스테이지 C
실장스테이지 D
좌측 반송
스테이지
27114-M3- 00
카메라 구성
기판 우→좌, 좌→우 공통
사이드뷰 B
사이드뷰 D
사이드뷰 C
사이드뷰 A
멀티 D
멀티 C 멀티 A
AC
BD
멀티 B
피듀셜
(마크인식) B1
피듀셜
(마크인식) B2
피듀셜
(마크인식) D1
피듀셜
(마크인식) D2
피듀셜
(마크인식) C1
피듀셜
(마크인식) C2
피듀셜
(마크인식) A1
피듀셜
(마크인식) A2
27115-M3 -00