A30C&D-AS(IN)联体机操作说明书-REV03 2019.12.05(未发行)(1).pdf - 第91页
ZHX-A30C& D-AS(I N) 自动卧式联 体插件机操作 说明书 深圳市中禾 旭精密机械有 限公司 http:// www .z kdip.com - 91 - 工作台 Y 机构零件清单 序号 零件 名称 零件 编号 数量 单位 备注 1 工作台中层铝 板 L WGY -00017 1 个 2 工作台中层铝 板左边压平铝 条 L WGY -00020 1 个 3 工作台中层铝 板右边压平铝 条 L WGY -00021 …

ZHX-A30C&D-AS(IN) 自动卧式联体插件机操作说明书
深圳市中禾旭精密机械有限公司 http:// www.zkdip.com
- 90 -
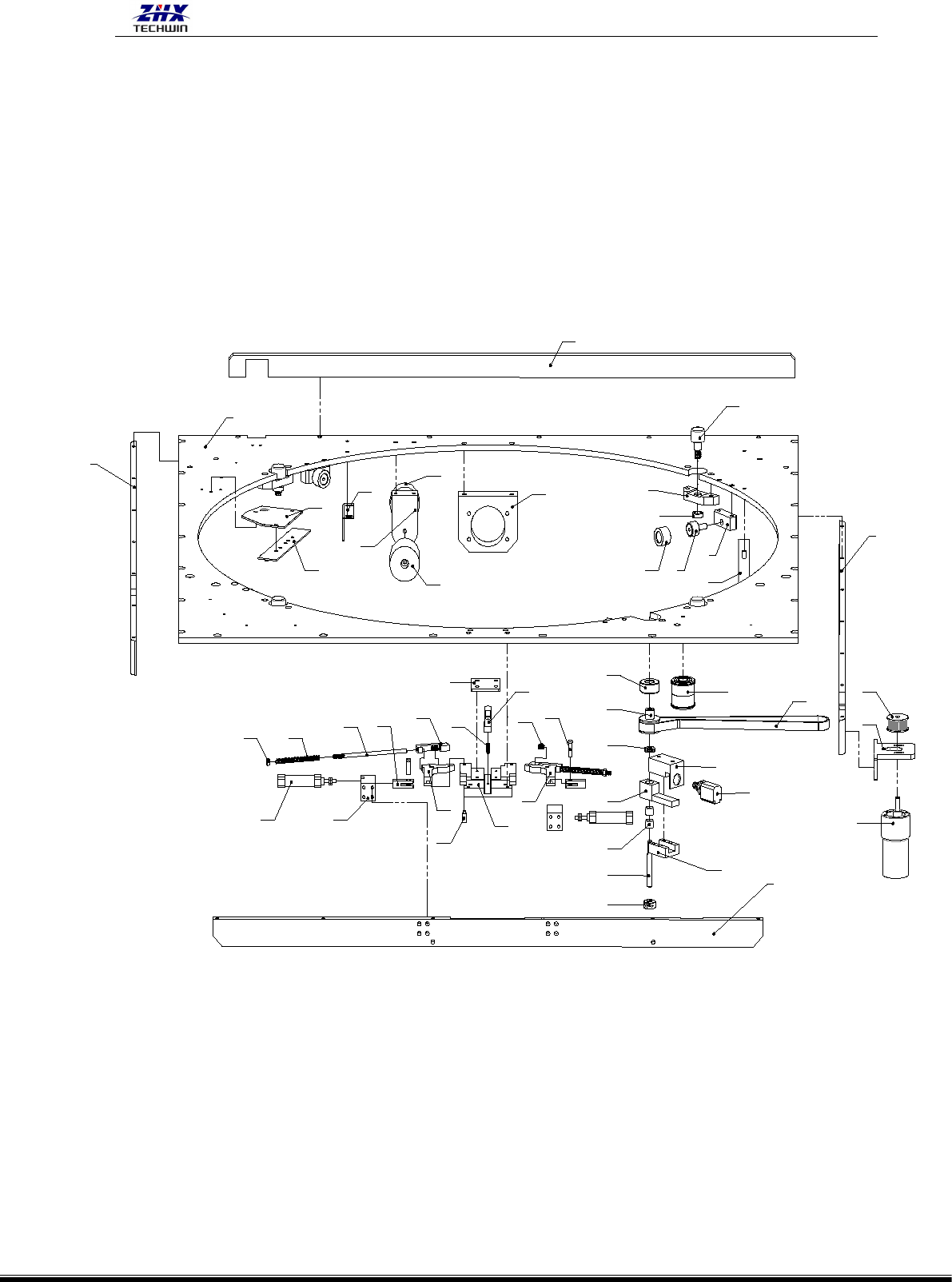
台 Y 机构分解示意图

ZHX-A30C&D-AS(IN) 自动卧式联体插件机操作说明书
深圳市中禾旭精密机械有限公司 http:// www.zkdip.com
- 91 -
工作台 Y 机构零件清单
序号
零件
名称
零件
编号
数量
单位
备注
1
工作台中层铝板
LWGY-00017
1
个
2
工作台中层铝板左边压平铝条
LWGY-00020
1
个
3
工作台中层铝板右边压平铝条
LWGY-00021
1
个
6
轴承
SME20UU
4
个
8
滚珠丝杆架座
LWGY-00026
2
个
9
X 防撞胶固定块
LWGY-00022
1
个
10
橡胶(NO DRAW)
—
2
个
11
X.Y 极限开关座
LWGY-00013
2
个
12
X 零位开关片
LWGY-00030
1
个
13
铁板起固定导线作用
LWGY-00029
1
个
14
Y 轴缓冲架座
LWGY-00023
1
个
15
Y 轴座
LWGY-00024
1
个
16
轴承
6200 ZZ
1
个
17
滚珠丝杆
SFTR2010T4DGC4-704LP1
1
个
18
轴承板盖
LWGY-00013
1
个
19
Y 轴座
LWGY-00025
1
个
20
XY 丝杆同步轮抱箍
LWGY-00015
1
个
21
XY 丝杆同步轮
LWGY-00010
1
个
22
工作台中层铝板后边压平铝条
LWGY-00019
1
个
23
脉冲型(400W)伺服马达
MHMD042P1U
1
个
24
XY 马达同步轮抱箍
LWGY-00016
1
个
25
XY 马达同步轮
LWGY-00011
1
个
26
Y 轴马达座
LWGY-00027
1
个
27
工作台中层铝板中间压平铝条
LWGY-00018
1
个
28
轴承
7202CYP4
2
个
29
X 零位开关片
LWGY-00030
1
个
30
螺母 M14X1
LWGY-00028
2
个

ZHX-A30C&D-AS(IN) 自动卧式联体插件机操作说明书
深圳市中禾旭精密机械有限公司 http:// www.zkdip.com
- 92 -
37
44
40
38
39
41
42
43
1
4
2
36
35
3446
31
32
29
25
26
27
48 24
21
14
12
13
17
16
10
19
30
6
5
7
9
8
45
18
11
3
20
15
23
22
28
47
33
49
50
工作台示意图