OM-1617-005w_GT-28x.pdf - 第210页
OM-1617 10-6 10. 电路 10.6 送料器控制电路图 (GD-12162) 091 1-001 -(M804WG---2001) Connection Confirmation Signal Lane 1 Feed Command Lane 2 Feed Command READY Signal Connection Confirmation Signal 7-Segment LED is turned ON (a) 7-…

OM-1617
10-5
10. 电路
10.5 送料器控制电路图 (GD-28081/GD-28083)
0911-001 -(M926WM---0001)
Drawer Connector
Lane 1 Servo Motor
Operation Panel
Lane 1 Feed Command
Lane 2 Feed Command
READY Signal
Connection Confirmation Signal
Connection Confirmation Signal
7-Segment LED is turned ON (a)
7-Segment LED is turned ON (b)
7-Segment LED is turned ON (c)
7-Segment LED is turned ON (d)
7-Segment LED is turned ON (e)
7-Segment LED is turned ON (f)
7-Segment LED is turned ON (g)
7-Segment LED is turned ON (D.P)
For Dynamic Light ON (first figure)
For Dynamic Light ON (second figure)
Cover Tape Take-up Key
Lane Selection Key
Forward Key
Backward Key
GND
GND
Motor Phase 1W
Motor Phase 1U
Motor Phase 1V
Encoder Phase 1A
/Encoder Phase 1A
Encoder Phase 1B
Power Supply (DC5V)
/Encoder Phase 1B
Feeder Control Amplifier
Lane 1 Joint Detection Sensor
Lane 2 Joint Detection Sensor
Lane 1 Tension Detection Sensor
Lane 2 Tension Detection Sensor
Lane 2 Sprocket Home Position
Detection Sensor
Lane 1 Sprocket Home Position
Detection Sensor
DC Motor 1
DC Motor 1 Power Supply
DC Motor 2
DC Motor 2 Power Supply
Motor Phase 2W
Motor Phase 2U
Motor Phase 2V
Encoder Phase 2A
/Encoder Phase 2A
Encoder Phase 2B
Power Supply (DC5V)
/Encoder Phase 2B
Reserve
Reserve
White
Brown
Blue
White
Brown
Blue
White
Brown
Blue
White
Brown
Blue
Blue
Black
Blue
Blue
Black
Blue
Blue
Black
Blue
Blue
Black
Blue
Blue
Black
Blue
Blue
Blue
Black
Blue
Black
Blue
Black
Blue
Black
Lane 2 Servo Motor
Lane 1 Take-up Motor
Lane 2 Take-up Motor

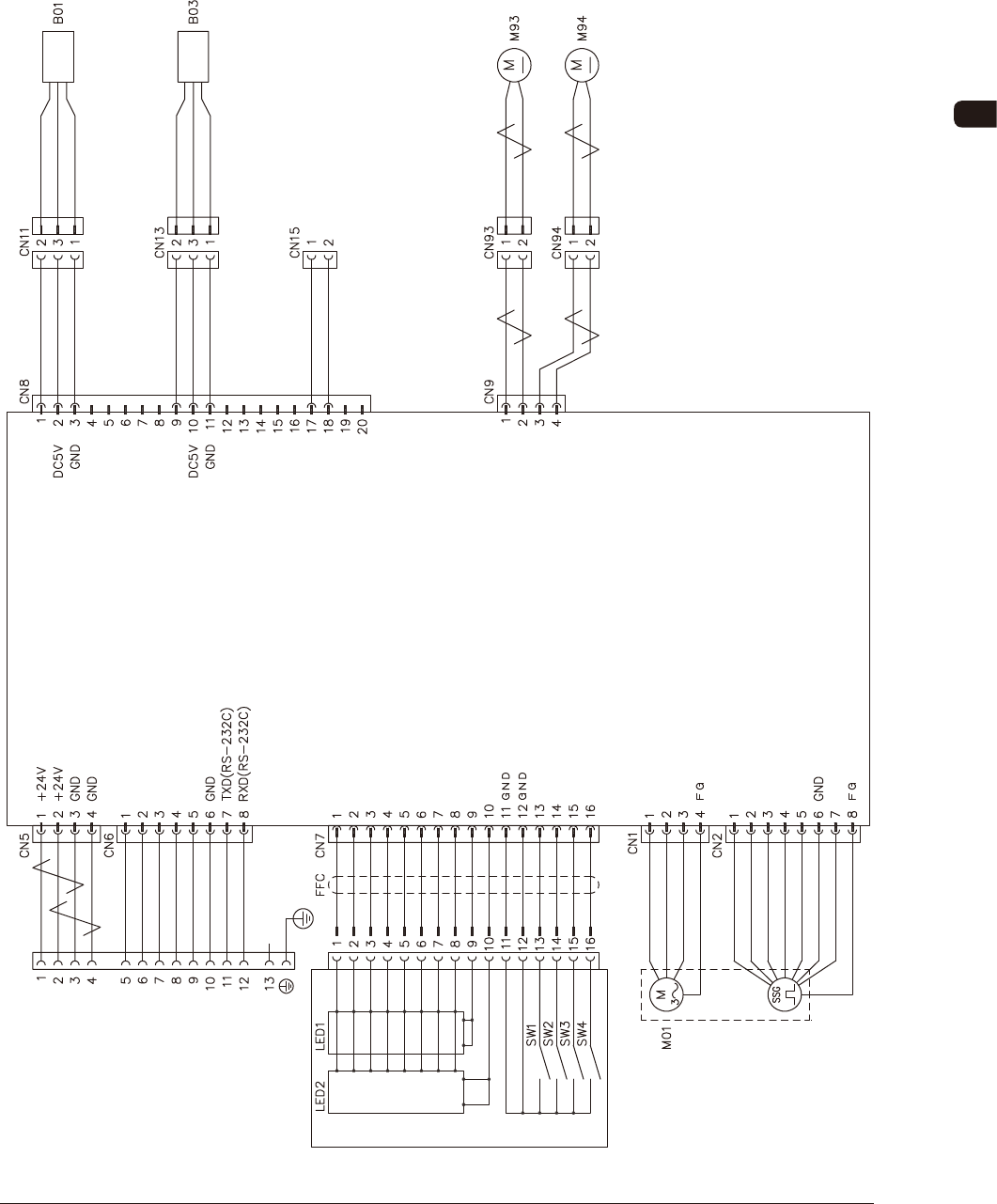
OM-1617
10-6
10. 电路
10.6 送料器控制电路图 (GD-12162)
0911-001 -(M804WG---2001)
Connection Confirmation Signal
Lane 1 Feed Command
Lane 2 Feed Command
READY Signal
Connection Confirmation Signal
7-Segment LED is turned ON (a)
7-Segment LED is turned ON (b)
7-Segment LED is turned ON (c)
7-Segment LED is turned ON (d)
7-Segment LED is turned ON (e)
7-Segment LED is turned ON (f)
7-Segment LED is turned ON (g)
7-Segment LED is turned ON (D.P)
For Dynamic Light ON (first figure)
For Dynamic Light ON (second figure)
Cover Tape Take-up Key
Lane Selection Key
Forward Key
Backward Key
Motor Phase W
Motor Phase U
Motor Phase V
Encoder Phase A
/Encoder Phase A
Encoder Phase B
Power Supply (DC5V)
/Encoder Phase B
Reserve
Feeder Control Amplifier
Lane Splicing Detection Sensor
Lane Tension Detection Sensor
DC Motor
DC Motor Power Supply
Drawer Connector
Operation Panel
Lane Servo Motor
Blue
Black
Blue
Blue
Black
Blue
Blue
Black
White
Brown
Blue
White
Brown
Blue
Blue
Black
Blue
Black
Lane Take-up Motor

OM-1617
10-7
10. 电路
10.7 送料器控制电路图
(GD-24322/GD-44562/GD-72002/GD-88002)
1111-002 -(M804WP---1001)
Drawer Connector
Connection Confirmation Signal
Lane 1 Feed Command
Lane 2 Feed Command
READY Signal
Connection Confirmation Signal
7-Segment LED is turned ON (a)
7-Segment LED is turned ON (b)
7-Segment LED is turned ON (c)
7-Segment LED is turned ON (d)
7-Segment LED is turned ON (e)
7-Segment LED is turned ON (f)
7-Segment LED is turned ON (g)
7-Segment LED is turned ON (D.P)
For Dynamic Light ON (first figure)
For Dynamic Light ON (second figure)
Cover Tape Take-up Key
Lane Selection Key
Forward Key
Backward Key
Motor Phase W
Motor Phase U
Motor Phase V
Encoder Phase A
/Encoder Phase A
Encoder Phase B
Power Supply (DC5V)
/Encoder Phase B
Lane Servo Motor
Reserve
Feeder Control Amplifier
Lane Splicing Detection Sensor
Lane Tension Detection Sensor
DC Motor
DC Motor Power Supply
DC Motor
DC Motor Power Supply
Blue
Black
Blue
Blue
Black
Blue
Blue
Black
Blue
Black
Blue
Black
Blue
Black
Blue
Black
White
Brown
Blue
White
Brown
Blue
Lane Take-up Motor
Lane Take-up Motor
Operation Panel