JX-200_MS参数.pdf - 第36页
Rev. 1.1 MS 参数 4-3 取得吸嘴旋转中心、各贴装头的轴旋转中心位置离激光传感器的偏离位置。 4-1-2 . 使用治具 · 508 或 508C 吸嘴 ·治具吸嘴 LNC 贴装头用( 40046647 ) 吸嘴旋转中心( L1 ~ L6 ) LNC60 贴装头

Rev. 1.1
MS 参数
4-2
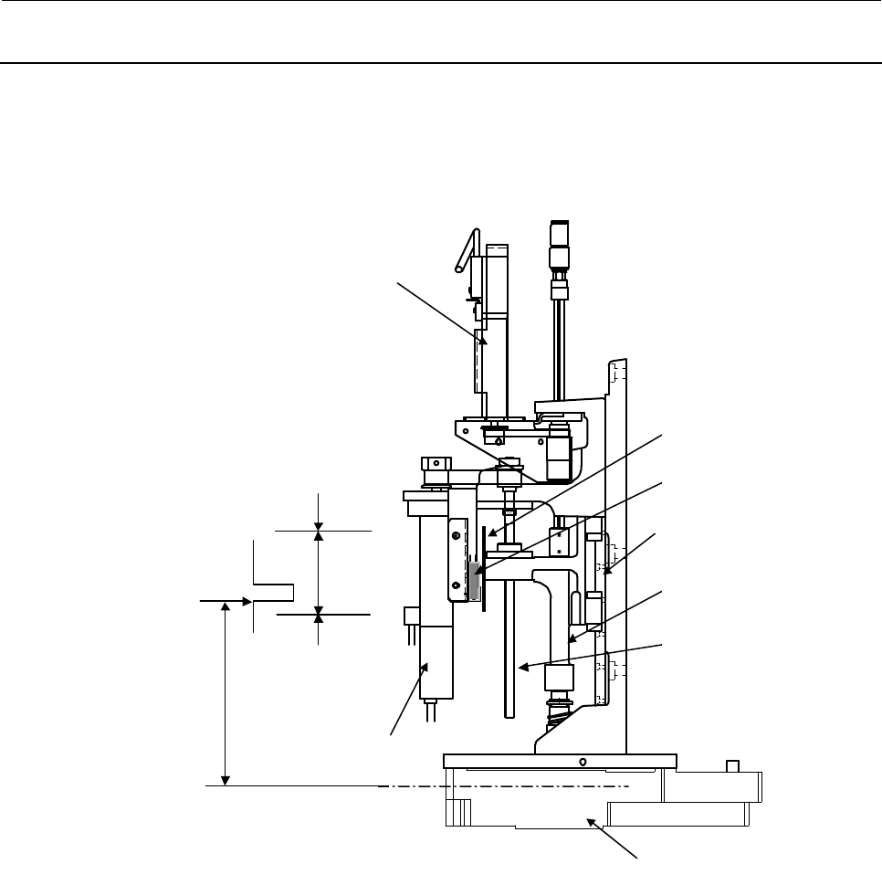
激光高度取得从各贴装头的 Z 轴原点位置到激光传感器的高度的尺寸。
θモータ
Zモータ
リニアガイド
Z軸スライドシャフト
ボールネジ
原点センサ
センサドグ
Z軸原点位置
原点センサ
ON領域
原点センサ
OFF領域
原点センサ
OFF領域
レーザ高さ
レーザセンサ
エンコーダ
Z相信号
θ马达
原点传感器
OFF 区域
原点传感器
ON 区域
编码器
Z 相信号
Z 轴原点位置
原点传感器
OFF 区域
传感器碰块
Z 马达
激光高度
原点传感器
直线导轨
Z 轴滑动轴
激光传感器
滚珠丝杠

Rev. 1.1
MS 参数
4-3
取得吸嘴旋转中心、各贴装头的轴旋转中心位置离激光传感器的偏离位置。
4-1-2.使用治具
·508 或 508C 吸嘴 ·治具吸嘴 LNC 贴装头用(40046647)
吸嘴旋转中心(L1~L6)
LNC60 贴装头

Rev. 1.1
MS 参数
4-4
4-1-3.操作
选择了[偏差设定(O)][激光偏差(L)][激光偏差(O)...]之后,显示出下面的激光偏差设定画面。
请选择设定对象贴装头。
※ 不影响机器设置的“使用装置”的设
定。没有检查(设定为不使用的)装
置也可以选择。
测定贴装头可以选择多个。
选择多个时,連续进行被选贴装头的测
定。
<操作・1/1 2>
从设定贴装头取下吸嘴。
准备完毕,请选择确定键。
选择确定键,检测吸嘴套的高度。
<操作・4/1 2>
请给所有设定贴装头安装 508 号吸嘴。
准备完毕,请选择确定键。
选择确定键之后,测定吸嘴长度。
<操作・5/1 2>
请选择确定键。设定贴装头移动到 CAL
部。
<操作・6/12>
通过演示确认测定的贴装头的 508 吸嘴
部分在校准台的平部(无孔的位置)上。
不需要调整时,不用演示。准备完毕,请
选择确定键。
选择确定之后,测定设定贴装头的基板上
面高度。