SI-F209_Manual(J)JPG_rev1.pdf - 第220页
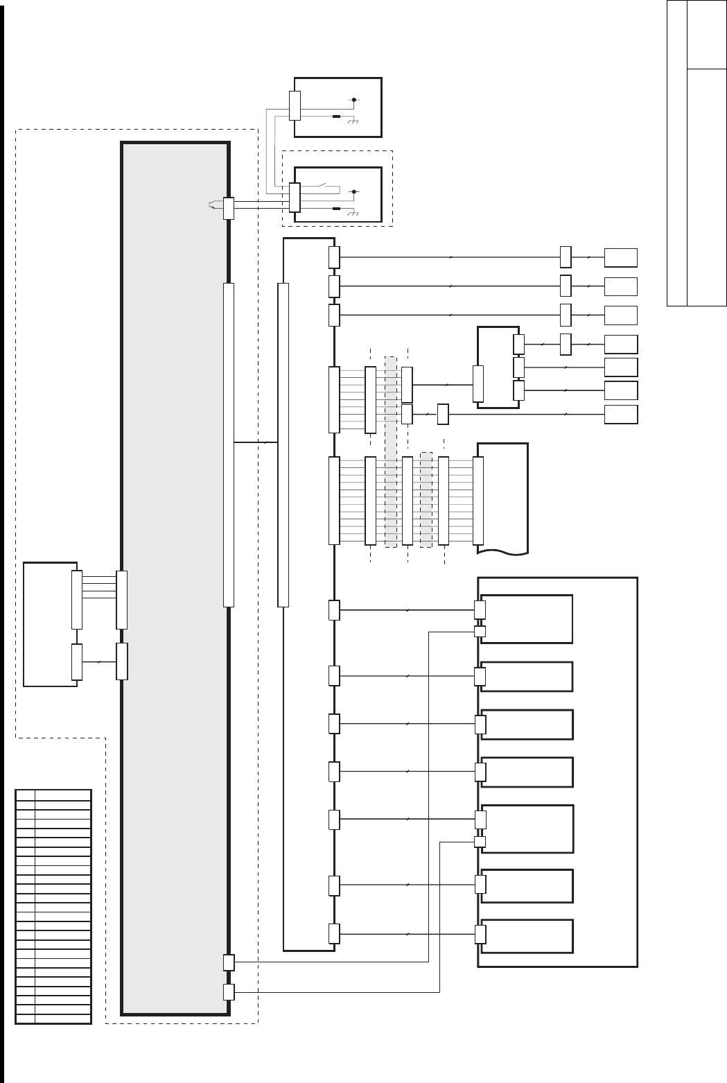
SY -EX 基板 周辺回路図 CDF-20501-01 SY -EX 基板 周辺回路図 SHEET 1/1 5 1 I 68 8 6 68 1 I 68 1 2 3 4 11 12 1 2 3 4 5 DRV-AD CONVEYOR ADJUST MOTOR DRIVER CN3 CN2 9 10 11 12 23 24 1 2 3 4 5 6 7 8 9 10 1 2 3 4 5 6 7 8 9 11 10 12 DRV-CE CO…

SW LINK 基板 周辺回路図
CDF-20405-01
SW LINK 基板 周辺回路図
SHEET
1/1
CN2 HCC-2
CN9 HCC-9
+5
CR1 CR2 CR3 CR4 CR5 CR8
CR1
CR2
CR3
CR4
I/O UNIT
SW LINK BOARD (OPTION)
LED CONTROL BOARD
(Refer:CDF-20403)
HANDY CONSOLE CONTROL
BOARD (Refer:CDF-20602)
EMG I/L BOARD
(Refer:CDF-20401)
TB2
+5
GND
SL-9 CN9
1
2
3
+5
G5
+5
SL-1 CN1
1
2
3
4
1
2
1
2
EL-110
EMG SW 10
(FRONT RIGHT)
EMG SW 11
(FRONT LEFT)
EMG SW 13
(REAR LEFT)
1
2
1
2
1
2
1
2
13
11
EL-4
EL-2
+5
+5
SL-2 CN2
SL-3 CN3
1
2
3
4
1
2
3
4
+5
+5
+5
SL-4 CN4
1
2
3
4
SL-5 CN5
1
2
3
4
1
2
EL-7
1
2
EL-6
1
2
1
2
CN5
CN12
1
I
16
1
I
16
11
12
11
12
1
I
16
1
I
16
HC-F
HC-R
FRONT HANDY
CONSOLE
(OPTION)
REAR HANDY
CONSOLE
(OPTION)
11
12
11
12
SL-8 CN8
1
2
3
4
1
2
EL-16
1
2
EXT-EMG
EXTERNAL
EMG
SL-7 CN7
SL-6 CN6
+5
+5
1
2
3
4
1
2
3
4
EL-14EMG-REMG-L
1
2
3
4
1
2
3
4
1
2
3
4
1
2
3
4
1
2
3
4
1
2
3
4
EL-15EMG-L
3
4
1
2
3
4
1
2
EMG-R
LEFT MACHINE
INTERNAL CIRCUIT
RIGHT MACHINE
INTERNAL CIRCUIT
EMG-R
EMG-L
RIGHT MACHINE
INTERNAL CIRCUIT
R-I/F R-I/FN
3
4
1
2
8
3
4
1
2
5
1
2
3
4
5
L-I/F L-I/FN
3
4
1
2
8
3
4
1
2
5
1
2
3
4
5
LEFT MACHINE
INTERNAL CIRCUIT
RIGHT MACHINE
INTERNAL CIRCUIT
LEFT MACHINE
INTERNAL CIRCUIT
R-I/F R-I/FN
L-I/F L-I/FN
1
2
3
4
8
1
2
3
4
5
1
2
3
4
8
1
2
3
4
5
PWB FLOW DETECTION
LEFT TO RIGHT
1
2
3
4
5
6
7
8
EL-30
1
2
3
4
5
6
7
8
EL-29
1
2
3
4
5
6
7
8
1
2
3
4
5
6
7
8
SL-12 CN12
SL-13 CN13
1
2
3
4
5
6
7
8
1
2
3
4
5
6
7
8
CN10 SL-10
CN11 SL-11
1
2
3
4
5
6
7
8
1
2
3
4
5
6
7
8
1
2
3
4
5
6
7
8
1
2
3
4
5
6
7
8
CN14 SL-14
CN15 SL-15
EL-29A CN29
EL-30A CN30
R6
LED6
CR6
V06C
R7
LED7
CR7
V06C
R9
LED9
CR9
V06C
G5
G5
G5
G5
G5
G5
G5
G5
G5
CR9 CR7
CR6CR9
CR8
CR7
CR6
+5V
R12
LED12
CR12
D12
CR12
+5V
R13
LED13
CR13
D13
CR13
G5
G5
G5
G5
CR5
EL-1A CN1
EL-2A CN2
+24V
CR1
+24V
CR2
1
2
3
4
1
2
3
4
EL-6A CN6
1
2
3
4
EL-4A CN4
+24V
CR4
+24V
CR6
1
2
3
4
EL-15A CN15
1
2
3
4
EL-14A CN14
1
2
3
4
EL-7A CN7
1
2
3
4
+24V
CR7
+24V
CR14
+24V
CR15
+24V
1
2
3
4
EL-16A CN16
CR16
+24V
+5V
R11
LED11
CR11
D11
CR11
+5V
R10
LED10
CR10
D10
CR10
CR8
R4
LED4
CR4
V06C
R5
LED5
CR5
V06C
R8
LED8
V06C
R3
LED3
CR3
V06C
R2
LED2
CR2
V06C
R1
LED1
CR1
V06C
A 1- -
REF
CABLE PARTS NO.
B
1-961-169
C
1-791-303
D
1-791-304
E
1-791-305
F
1-791-306
G
1-792-292
H
1-791-310
J
1-791-430
K
1-791-311
L
1-791-313
M
1-791-314
Q
1-961-172
R
1-792-154
S
1-792-156
T
1-961-173
U
1-792-155
V
1-961-170
W
1-791-323
X
1-791-324
Y
1-791-325
Z
1-961-171
AA
1-791-326
AB
1-791-327
P
AD
1-961-165
AE
1-961-166
1-961-167
1-961-168
AC
1-791-328
N
BCD
BEF
BG
B
J
B
K
H
BL
NPQ
RSQ
M
A
WV
AAZ
TUV
XYZ
AB
AC
AD
AE

SY-EX 基板 周辺回路図
CDF-20501-01
SY-EX 基板 周辺回路図
SHEET
1/1
5
1
I
68
8
6
68
1
I
68
1
2
3
4
11
12
1
2
3
4
5
DRV-AD
CONVEYOR ADJUST
MOTOR DRIVER
CN3 CN2
9
10
11
12
23
24
1
2
3
4
5
6
7
8
9
10
1
2
3
4
5
6
7
8
9
11
10
12
DRV-CE
CONVEYOR EJECTOR
MOTOR DRIVER
CN3 CN2
R24V
JOG
R0V
1
2
3
DRIVER UNIT
(Refer:CDF-20204)
1
2
3
4
5
6
7
DV-5
(DC POWER)
7
SY-IF2 BOARD
(Refer:CDF-20502)
1
2
3
4
5
6
7
8
1
I
68
1
I
68
68
CN6 SI-6
CN1 SI-1
DRIVER UNIT (Refer:CDF-20204)
DV-12 DV-12
DV-16 DV-16
6
2
1
DV-18
DV-17
1
2
3
4
5
6
1
2
3
4
5
6
DV-15 DV-15
1
2
3
4
5
6
PC UNIT
SY-MC BOARD
CN3 PC-SYMC
COGNEX BOARD
I/O PC-I/O
SERVO I/F UNIT
SY-EX BOARD
EX-1 CN1
EX-8 CN8
1
2
3
4
5
6
7
C
5
V
C
0
V
R
2
4
V
R
0V
A+
12V
G
N
D
A-
12V
(DC POWER)
EX-9 CN9
EX-2 CN2
1
2
3
4
5
6
7
8
C5V
C0V
R24V
R0V
A+12V
GND
A-12V
GND
1
2
3
EX-14 CN14
R24V
CAMTRG1
R0V
1
2
3
4
9
10
CN17 EX-17
R5V
CW1
R5V
CCW1
TIM1
R0V
1
2
3
CN16 EX-16
R24V
B.OUT
ROV
3
4
1
2
9
10
CN19 EX-19
R5V
CCW2
R5V
CW2
TIM2
R0V
5
1
3
4
2
CN18 EX-18
R0V
R24V
EL1+
EL1-
ORG1
1
2
3
4
5
ADLS-1 CN1
AD-LSB
1
2
3
1
2
3
1
2
3
1
2
3
1
2
3
1
2
3
CN2 ADLS-2
CN4 ADLS-4
CN3 ADLS-3
3
3
3
3
3
3
AD-CW
AD-CCW
AD-ORG
CONVEYOR ADJ.
LS CW
CONVEYOR ADJ.
LS CCW
CONVEYOR ADJ.
LS ORG
+24V
OUT
GND
+24V
OUT
GND
+24V
OUT
GND
5
1
3
4
2
CN20 EX-20
R0V
R24V
EL2+
EL2-
ORG2
1
2
3
4
5
CELS-1 CN1
CE-LSB
1
2
3
4
5
6
1
2
3
1
2
3
1
2
3
1
2
3
CN2 CELS-2
CN4 CELS-4
CN3 CELS-3
3
33
3
3
3
3
3
3
3
CE-CW1
EJS3
4
5
6
1
2
3
1
2
3
CE-CW2
EJS4
1
2
3
CES
CONVEYOR
EJECTOR LS CW
CONVEYOR
EJECTOR LS CCW
CONVEYOR
EJECTOR LS ORG
+24V
OUT
GND
+24V
OUT
GND
+24V
OUT
GND
CN22 EX-22
1
2
3
30EX
LS30
FRONT
DOOR SW
CABLE
CONDUIT
A
B
C
D
E
F
G
H
J
K
L
M
N
P
Q
R
S
T
U
V
W
X
Y
Z
AA
AB
AC
AD
AE
AF
1-791-347
1-829-599
1-829-445
- -
- -
1-792-299
1-829-600
1-829-601
1-792-311
1-792-290
1-792-310
1-791-312
1-829-452
1-829-547
1-791-359
1-791-360
1-791-361
1-791-362
1-829-482
1-829-449
1-829-498
1-829-483
1-829-480
1-829-497
1-829-481
1-829-545
1-792-312
1-792-313
1-792-281
1-792-282
REF CABLE PARTS NO.
A
B
C
D
E
N
AE
F
J
M
AF
P
Q
R
S
T
VW
Z
X
AAY
AB
U
AC
BKSW
1
2
4
5
3
AD
CN10 EX-10
4
17
5
1
14
15
3
2
7
8
20
9
R24V
F LS
R0V
R0V
R24V
NZ CT SEN
NZ POS
NZ RE SEN
R24V
VACUUM SELECT
R24V
BLOW ON
EX-
6
C
N6
A+
12V
A IN
1
G
N
D
9
5
4
F
G
EX-1
1
C
N11
1
2
3
R
2
4
V
S
I
G
R0V
CN13 EX-13
1
2
3
MCWDT+
MCWDT-
1st
CONNECTION
PANEL
2nd
CONNECTION
PANEL
3rd
CONNECTION
PANEL
X FLAT
RBT CABLE
FBLS FBLS-1
PH-FFB
NZS NZS-1 NZS-2
(N.C.)
+24V
OUT
GND
FEEDER-FF
BACKWARD
DETECT
16 INPUT LS BOARD
(Refer:CDF-20503)
CN17
20
18
11
12
13
1
2
3
1
2
3
1
2
3
1
2
3
4
5
1
2
3
4
5
1
2
3
4
5
VAMP
1
2
3
BRN
PNK
BLU
VAC
-AMP
VSEN-1
VACSV
1
2
3
4
1
2
3
4
VAC-1
5
6
7
8
9
1
2
3
4
5
6
7
8
9
1
2
3
4
Y CABLE
CONDUIT
VAC-2 VSV
AIR UNIT
1
2
3
4
VAC-S2
VAC-S1
VACUUM
SELECT
BLOW
ON
VSEN
1
2
3
4
ORG
BRN
BLU
GRY
VAC-SEN
+12V
GND
VACUUM
SENSOR
I/O UNIT
EMG I/L BOARD
(Refer:CDF-20401)
EL-8 CN8
CR38
3
4
1
2
CR8
CR2
SW1
G
G
G
G
H
H
K
K
L

SY-IF2 基板 周辺回路図
CDF-20502-01
SY-IF2 基板 周辺回路図
SHEET
1/1
+24V
OUT
GND
+24V
OUT
GND
+24V
OUT
GND
DV-EMG1
506
(+24V)
SERVO UNIT
(Refer:CDF-20203)
1
I
30
1
I
30
1
I
30
1
I
30
1
I
30
1
I
30
1
I
8
1
I
8
1
I
8
1
I
8
1
I
8
1
I
8
1
I
8
SERVO I/F UNIT
SY-IF2 BOARD
SY-EX BOARD
(Refer:CDF-20501)
1
2
3
4
5
6
7
8
1
2
3
4
5
6
7
8
1
I
68
1
I
68
68
CN9 EX-9
CN2 EX-2
SI-6 CN6
SI-1 CN1
C5V
C0V
R24V
R0V
A+12V
GND
A-12V
GND
DRIVER UNIT
(Refer:CDF-20204)
I/O UNIT
EMG I/L BOARD
(Refer:CDF-20401)
4
3
1
2
MC1
507
(G24V)
8
8
8
8
8
8
8
JEPMC-6002-04 (YASKAWA)
JEPMC-6002-04 (YASKAWA)
X-CW
X-CW
X-CCW
X-CCW
X-ORG
X-ORG
LB-2
LB-4
LB-3
3
3
3
33
3
1
2
3
1
2
3
1
2
3
1
2
3
1
2
3
1
2
3
SERVO ALARM
1
2
3
CN2 SI-2
CN4 SI-4
+24V
ALM1+
ALM1-
/COIN1+
/COIN1-
G24
+24V
ALM2+
ALM2-
/COIN2+
/COIN2-
G24
+24V
ALM3+
ALM3-
/COIN3+
/COIN3-
G24
+24V
ALM4+
ALM4-
/COIN4+
/COIN4-
+24V
+24V
+24V
ALM5+
ALM5-
/COIN5+
/COIN5-
G24
+24V
ALM6+
ALM6-
/COIN6+
/COIN6-
G24
+24V
ALM7+
ALM7-
/COIN7+
/COIN7-
G24
+24V
ALM8+
ALM8-
/COIN8+
/COIN8-
G24
G24
1
2
3
4
5
6
7
8
9
10
11
12
13
14
15
16
17
18
19
20
21
22
23
24
25
26
27
28
29
30
31
32
33
34
35
36
37
38
39
40
41
42
43
44
45
46
47
48
49
50
1
2
3
4
5
6
7
8
9
10
11
12
13
14
15
16
17
18
19
20
21
22
23
24
25
26
27
28
29
30
31
32
33
34
35
36
37
38
39
40
41
42
43
44
45
46
47
48
49
50
IF2 LS BOARD
LB-1 CN1
CN2
CN3
CN4
CN8 LB-8 HLS-3 YS
1
2
3
4
5
6
7
8
9
1
2
3
4
5
6
7
8
9
1
2
3
4
5
1
2
3
FFS
3
1
2
3
FF-ORG
5
3
1
2
3
4
5
YLS-1 CN1
Y-LS B
CN3
CN2
CN4
1
2
3
1
2
3
1
2
3
YLS-2
YLS-3
YLS-4
3
3
33
1
2
3
1
2
3
4
5
6
7
8
9
10
17
19
IB-17 CN17
16 INPUT LS BOARD
(Refer:CDF-20503)
CN9 LB-9 HLS-4
1
2
3
4
5
6
7
8
9
10
11
12
HLS-5
1
2
3
4
5
6
7
8
9
10
11
12
HLS-6
1
2
3
4
5
6
7
8
9
10
11
12
1
2
3
4
5
6
7
8
9
10
11
12
X FLAT
RBT CABLE
Y CABLE
CONDUIT
Y-CW
+24V
OUT
GND
Y-CCW
+24V
OUT
GND
Y-CW
+24V
OUT
GND
Y-OR G
+24V
OUT
GND
FF-ORG
1
I
30
CN8 SI-8
CN7 SI-7
CN10 LB-10
CN14 LB-14
CN11 LB-11
CN12 LB-12
CN13 LB-13
CN15 LB-15
CN16 LB-16
1
2
3
4
50
CR9
CN9
CR38
SV-R1
SV-M1
SV-X1
SV-X6A
SV-NS6A
SV-Y1
SV-NS1
SV-FF1
SV-H1
(Refer:CDF-20504)
(Refer:CDF-20505)
(Refer:CDF-20509)
(Refer:CDF-20508)
(Refer:CDF-20507)
(Refer:CDF-20506)
(Refer:CDF-20510)
DRV-X
SGDS-15A12A
DRV-Y
SGDS-08A12A
DRV-H
SGDS-02A12A
DRV-FF
SGDS-04A12A
DRV-NS
SGDS-01A12A
DRV-R
SGDS-A5A12A
DRV-M
SGDS-01A12A
1st
CONNECTION
PANEL
2nd
CONNECTION
PANEL
3rd
CONNECTION
PANEL
A
B
C
D
E
F
G
HJ
K
M
L
QPN
R
S
T
U
V
W
X
A
B
C
D
E
F
G
H
J
K
L
M
N
P
Q
R
S
T
U
V
W
X
Y
Z
- -
- -
1-829-455
1-829-484
1-829-485
1-829-486
1-829-487
1-829-632
1-829-600
1-792-305
1-792-307
1-792-306
1-829-633
1-829-601
1-792-308
1-829-664
1-829-658
1-829-659
1-829-660
1-829-661
1-829-662
1-829-663
1-829-474
1-829-475
REF
CABLE PARTS NO.
J